Запчасти Doosan Daewoo SUPPORT(1) BODY PARTS

7
2
6
6
6
7
7
1
5
6
7
4
3
7
6
6
7
6
7
FIT
1:1
100%

Артикул

Название

Примечание

Количество

-

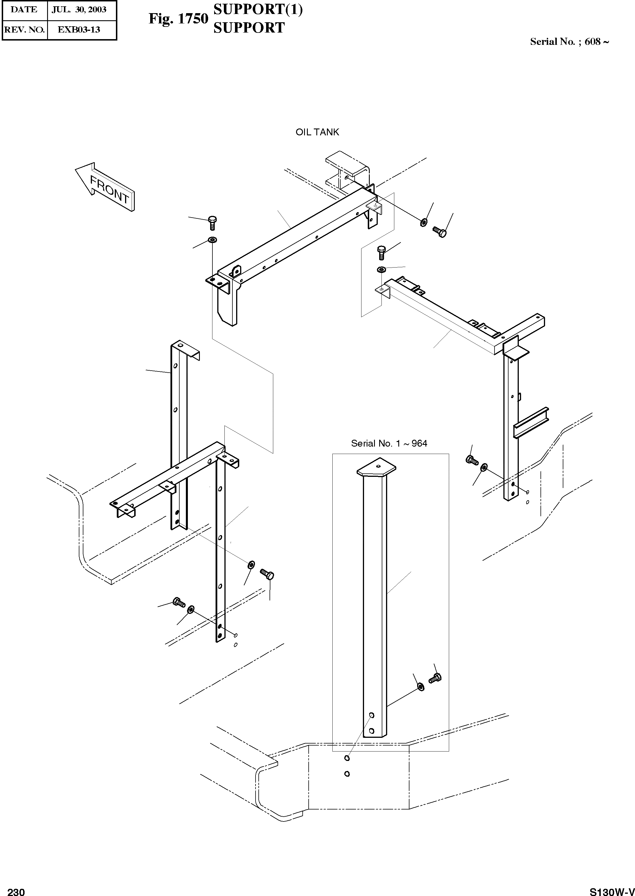
2197-2138

SUPPORT ASS'Y

SERIAL: 608

-2шт.

1

2197-2143

SUPPORT

SERIAL: 608-970

1шт.

1

2197-2143A

SUPPORT

SERIAL: 971

1шт.

2

2197-2140

SUPPORT

desc: SUPPORT

1шт.

3

2197-1441A

SUPPORT

SERIAL: 608-964

1шт.

4

2197-2141

SUPPORT

SERIAL: 608-3384

1шт.

4

2197-2141A

SUPPORT

SERIAL: 3385-3483

1шт.

4

2197-2141B

SUPPORT

SERIAL: 3484

1шт.

5

2197-2139

SUPPORT

desc: SUPPORT

1шт.

6

S0515253

BOLT M12X1.75X30

SERIAL: 608-964

12шт.

6

S0515253

BOLT M12X1.75X30

SERIAL: 965

10шт.

7

2114-1058D30

WASHER;PLAIN

SERIAL: 608-964

12шт.

7

2114-1058D30

WASHER;PLAIN

SERIAL: 965

10шт.

Выбрано товаров: 13