Качественные детали и логистика
Оригинальные и аналоговые запчасти с доставкой по России, Казахстану и Беларуси
©2022 PartSell ООО "Система" ИНН 2463123282 ОГРН 1212400004838
Центральный офис: г. Красноярск, Академика Киренского, д.87, пом.4
Телефон: 8 (800) 777-65-74 Email: zakaz@partsell.ru
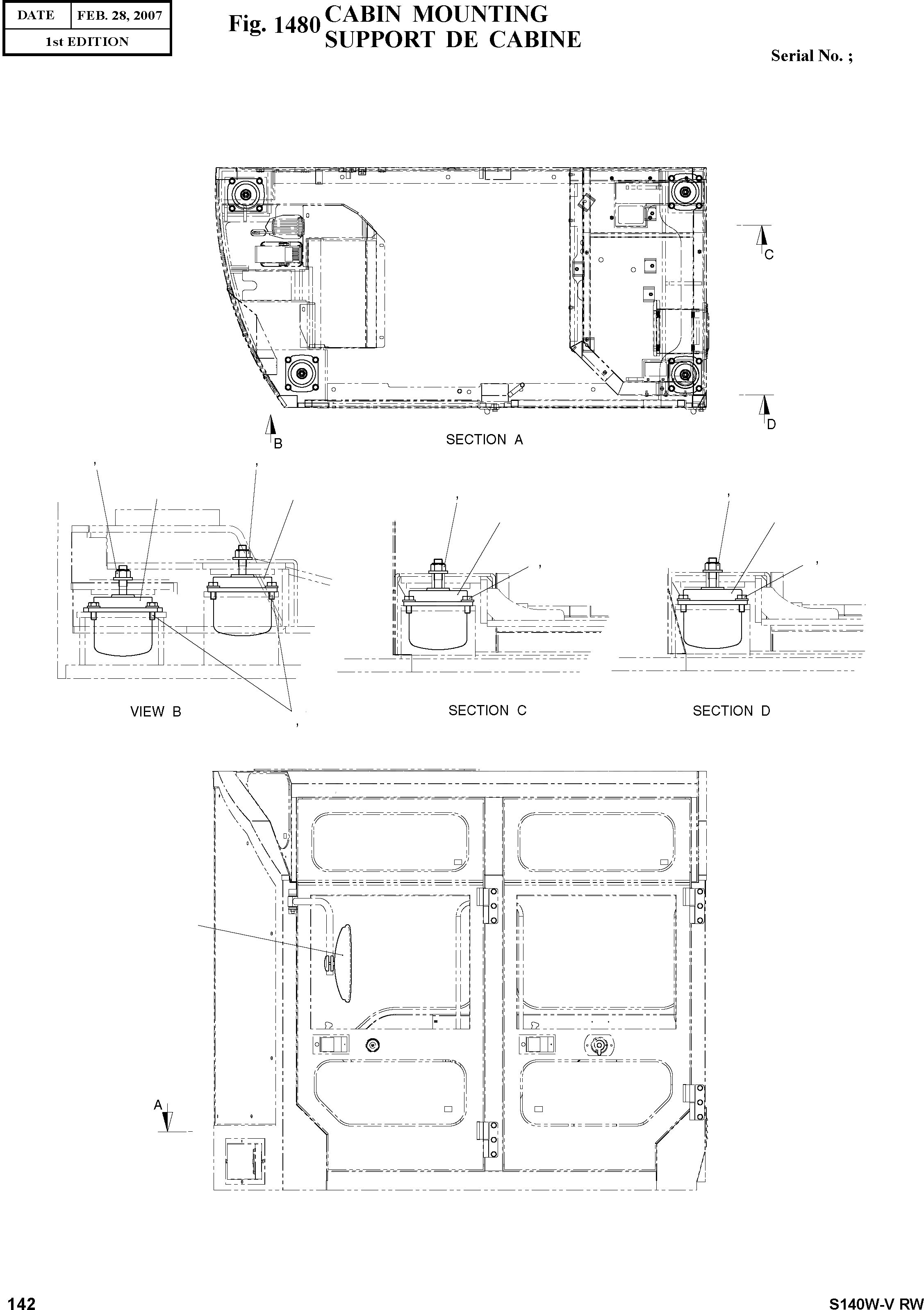
CABIN MOUNTING
№
Артикул
Название
Примечание
Количество
-
9622-1008
SC: D
-2шт.
1
161-00010
desc: MONTAGE DE CABINE
4шт.
2
2121-9007
NUT
desc: ECROU
3
2114-1058D2
WASHER
desc: RONDELLE
4
2120-2166D2
BOLT
desc: BOULON
16шт.
5
2114-1898D1
6
903-00068
MIRROR;MAIN
desc: MIROIR
1шт.
Выбрано товаров: 0