Качественные детали и логистика
Оригинальные и аналоговые запчасти с доставкой по России, Казахстану и Беларуси
©2022 PartSell ООО "Система" ИНН 2463123282 ОГРН 1212400004838
Центральный офис: г. Красноярск, Академика Киренского, д.87, пом.4
Телефон: 8 (800) 777-65-74 Email: zakaz@partsell.ru
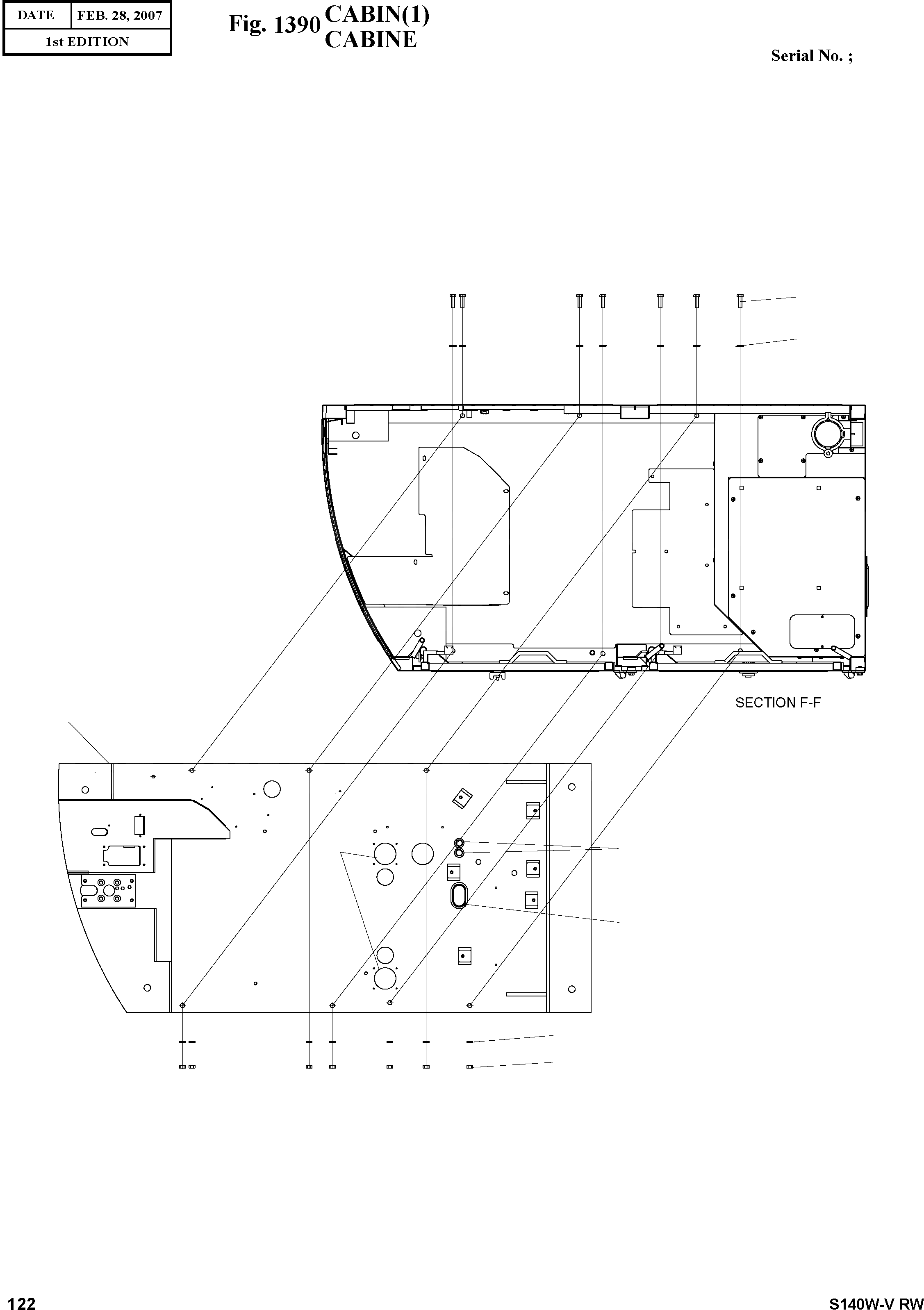
CABIN(1)
№
Артикул
Название
Примечание
Количество
-
9622-1009
CABIN ASS'Y
SC: D
-2шт.
26
9621-1069
PLATE;FLOOR
desc: PLAQUE
1шт.
28
160-00030
BOOT
desc: INITIALISATION
2шт.
29
2160-1308
BUSHING;RUBBER
desc: DOUILLE EN CAOUTCHOUC
30
2160-1004D48
31
S0515353
BOLT
desc: BOULON
7шт.
32
S4012733
NUT
desc: ECROU
33
S5102703
WASHER;SPRING
desc: RONDELLE ELASTIQUE
34
S5010713
WASHER;PLAIN
desc: RONDELLE
Выбрано товаров: 0