Качественные детали и логистика
Оригинальные и аналоговые запчасти с доставкой по России, Казахстану и Беларуси
©2022 PartSell ООО "Система" ИНН 2463123282 ОГРН 1212400004838
Центральный офис: г. Красноярск, Академика Киренского, д.87, пом.4
Телефон: 8 (800) 777-65-74 Email: zakaz@partsell.ru
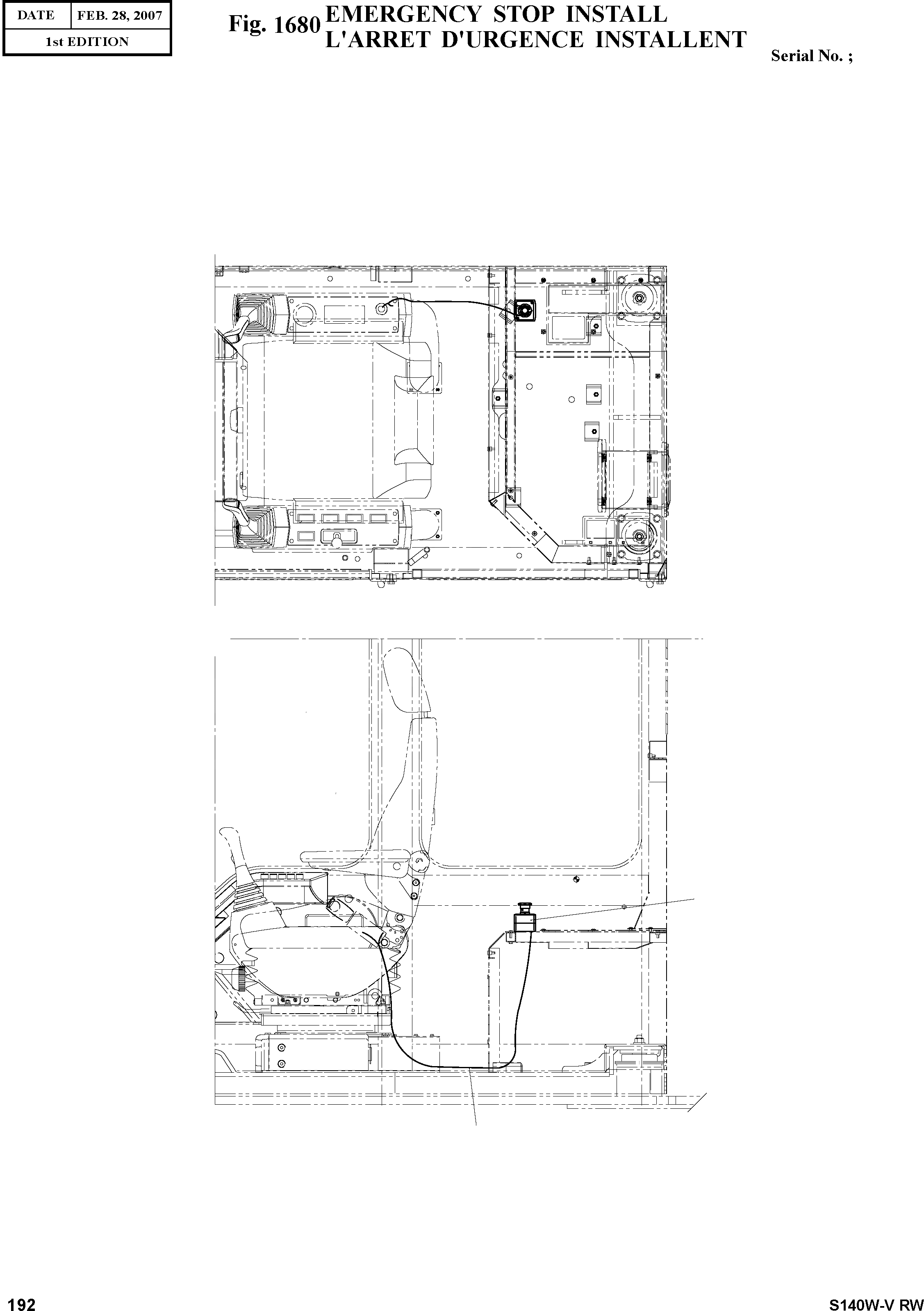
EMERGENCY STOP INSTALL
№
Артикул
Название
Примечание
Количество
-
9530-1077
EMERGENCY;STOP INSTALL
SC: D
-2шт.
1
9549-6006
EMERGENCY;STOP
desc: L'ARRET D'URGENCE INSTALLENT
1шт.
2
9530-1077-02
HARNESS;EMER. STOP
desc: HARNAIS
Выбрано товаров: 0