Запчасти Doosan Daewoo HARNESS LORRIES BODY PARTS

13
11
9
10
2
3
4
3
4
1
5
7
8
6
7
8
5
7
8
4
18
19
20
12
14
15
17
16
14
15
FIT
1:1
100%

Артикул

Название

Примечание

Количество

-

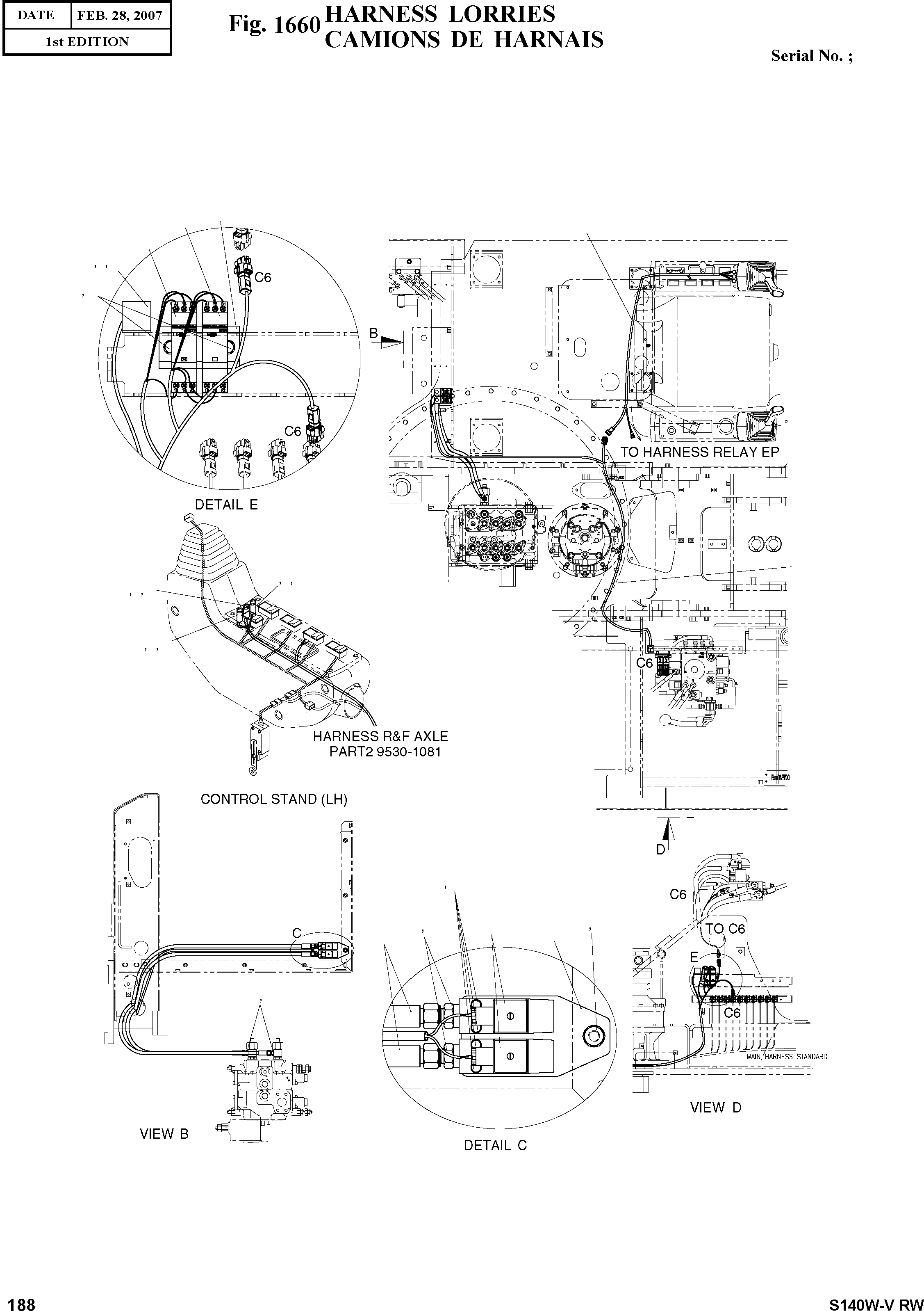
9530-1074A

HARNESS;INSTALL

SC: D

-2шт.

1

9530-1080

HARNESS;AXLE P1

desc: HARNAIS

1шт.

2

2544-9033

RELAY

desc: RELAIS

1шт.

3

S3450823

SCREW

desc: VIS

3шт.

4

S5100203

WASHER;SPRING

desc: RONDELLE ELASTIQUE

7шт.

5

9534-6005

LAMP

desc: LAMPE

2шт.

6

9534-6006

LAMP

desc: LAMPE

1шт.

7

9621-6011

PLATE

desc: PLAQUE

3шт.

8

9121-6007

NUT

desc: ECROU

3шт.

9

9530-1081

HARNESS;AXLE P2

desc: HARNAIS

1шт.

10

9544-6001

RELAY;TEMPORIZED

desc: RELAIS

1шт.

11

9544-6003

RELAY;TEMPORIZED

desc: RELAIS

1шт.

12

9549-6008

SWITCH;PRESSURE

desc: COMMUTATEUR

2шт.

13

9195-6042

BRACKET

desc: SUPPORT

1шт.

14

2181-1126D14

ADAPTER

desc: ADAPTEUR

4шт.

15

S8000111

O-RING

desc: JOINT TORIQUE

4шт.

16

9184-1010D157

HOSE

desc: TUYAU FLEXIBLE

2шт.

17

9195-1368

BRACKET;S/P

desc: SUPPORT

1шт.

18

S0552553

BOLT

desc: BOULON

4шт.

19

S0511853

BOLT

desc: BOULON

1шт.

20

S5100603

WASHER;SPRING

desc: RONDELLE ELASTIQUE

1шт.

Выбрано товаров: 21