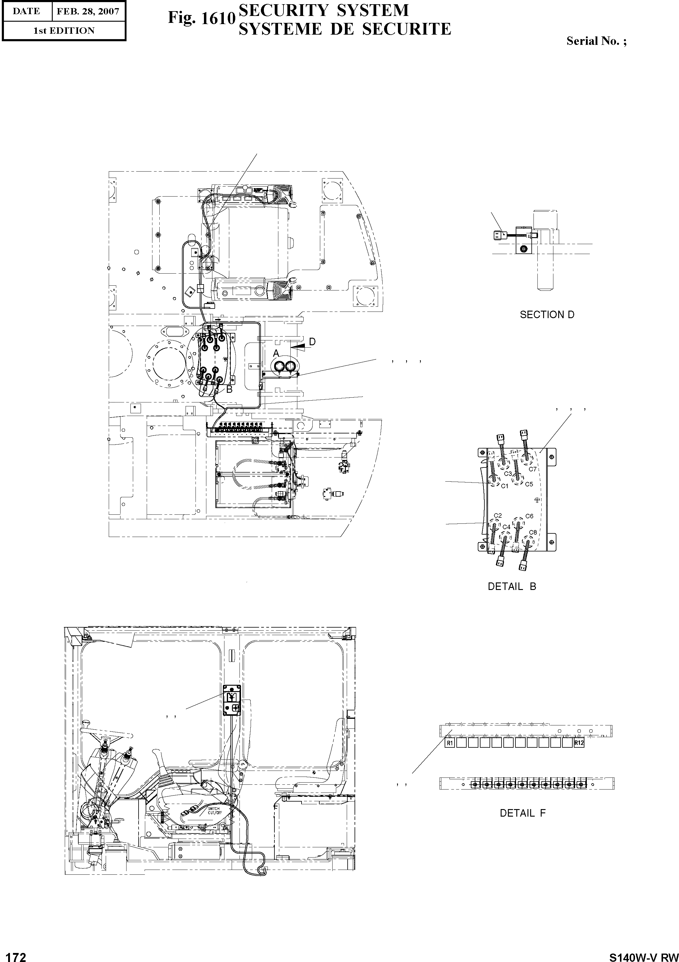
Запчасти Doosan Daewoo SECURITY SYSTEM BODY PARTS

16
9
3
14
15
8
14
15
11
10
5
6
7
1
2
4
17
12
13
FIT
1:1
100%

Артикул

Название

Примечание

Количество

-

9530-1064

SECURITY SYSTEM

SC: D

-2шт.

1

2544-9033

RELAY

desc: RELAIS

12шт.

2

S3450823

SCREW

desc: VIS

12шт.

3

9549-6003

SWITCH;PROXIMITY

desc: COMMUTATEUR

2шт.

4

S5100203

WASHER;SPRING

desc: RONDELLE ELASTIQUE

12шт.

5

9512-9002B

BOX;SWITCH

desc: COMMUTEZ LA BOITE

1шт.

6

9120-9002

SCREW

desc: VIS

4шт.

7

S5010313

WASHER;PLAIN

desc: RONDELLE

4шт.

8

9530-1065A

HARNESS;RELAY

desc: HARNAIS

1шт.

9

9530-1067A

HARNESS;COMMANDE

desc: HARNAIS

1шт.

10

9621-1093A

PLATE;COVER

desc: PLAQUE

1шт.

11

4549-1148

SWITCH;PROXIMITY

desc: COMMUTATEUR

8шт.

12

9621-1098

COVER

desc: COUVERCLE

1шт.

13

S0509153

BOLT

desc: BOULON

4шт.

14

S5102503

WASHER;SPRING

desc: RONDELLE ELASTIQUE

6шт.

15

S5010513

WASHER;PLAIN

desc: RONDELLE

6шт.

16

S0508653

BOLT

desc: BOULON

2шт.

17

9195-1330

PLATE

desc: PLAQUE

1шт.

Выбрано товаров: 18