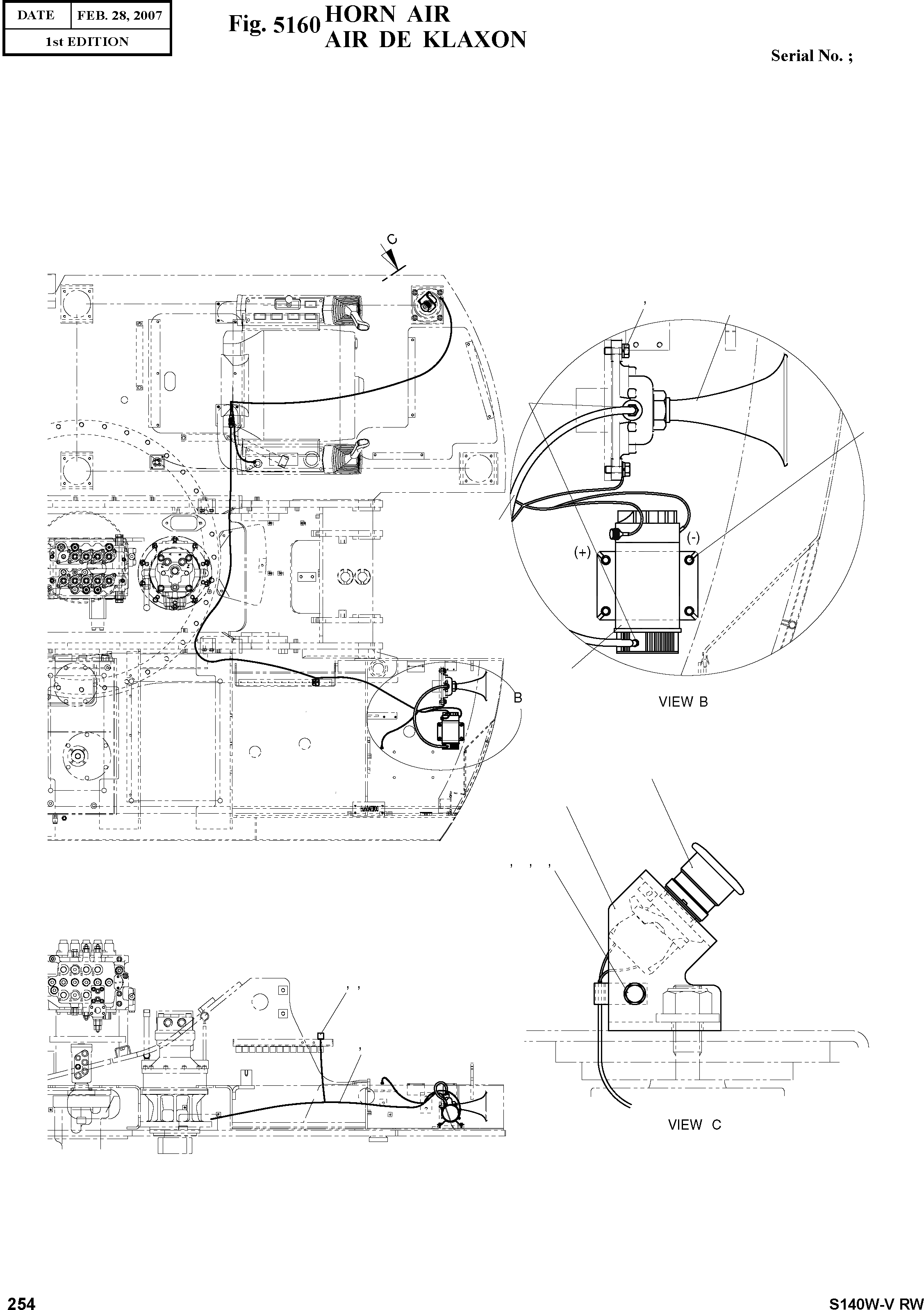
Запчасти Doosan Daewoo HORN AIR OTHER PARTS

14
5
6
2
13
9
12
1
11
10
16
17
3
7
8
4
18
15
FIT
1:1
100%

Артикул

Название

Примечание

Количество

-

9516-1012

HORN AIR INSTALL

SC: D

-2шт.

1

9208-6001

COMPRESSOR

desc: COMPRESSEUR

1шт.

2

9516-6004

HORN AIR

desc: AIR DE KLAXON

1шт.

3

9544-6002

RELAY

desc: RELAIS

1шт.

4

9530-1079

HARNESS;HORN AIR

desc: HARNAIS

1шт.

5

S0508853

BOLT

desc: BOULON

2шт.

6

S5110513

WASHER;SPRING

desc: RONDELLE ELASTIQUE

2шт.

7

S3450823

SCREW

desc: VIS

1шт.

8

S5100203

WASHER;PLAIN

desc: RONDELLE

1шт.

9

S0150953

BOLT

desc: BOULON

4шт.

10

9195-1363

BRACKET

desc: SUPPORT

1шт.

11

9549-6009

SWITCH;HORN AIR

desc: COMMUTATEUR

1шт.

12

2185-1247D119

HOSE

desc: TUYAU FLEXIBLE

1шт.

13

S8450012

CLAMP;HOSE

desc: COLLIER DE LA CONDUITE

2шт.

14

2124-1352D1

CLIP;HARNESS

desc: AGRAFE

1шт.

15

S0504653

BOLT

desc: BOULON

1шт.

16

S4012333

NUT

desc: ECROU

1шт.

17

S5102303

WASHER;SPRING

desc: RONDELLE ELASTIQUE

1шт.

18

9527-6001

FUSE MAXI 30A

desc: FUSIBLE

1шт.

Выбрано товаров: 19