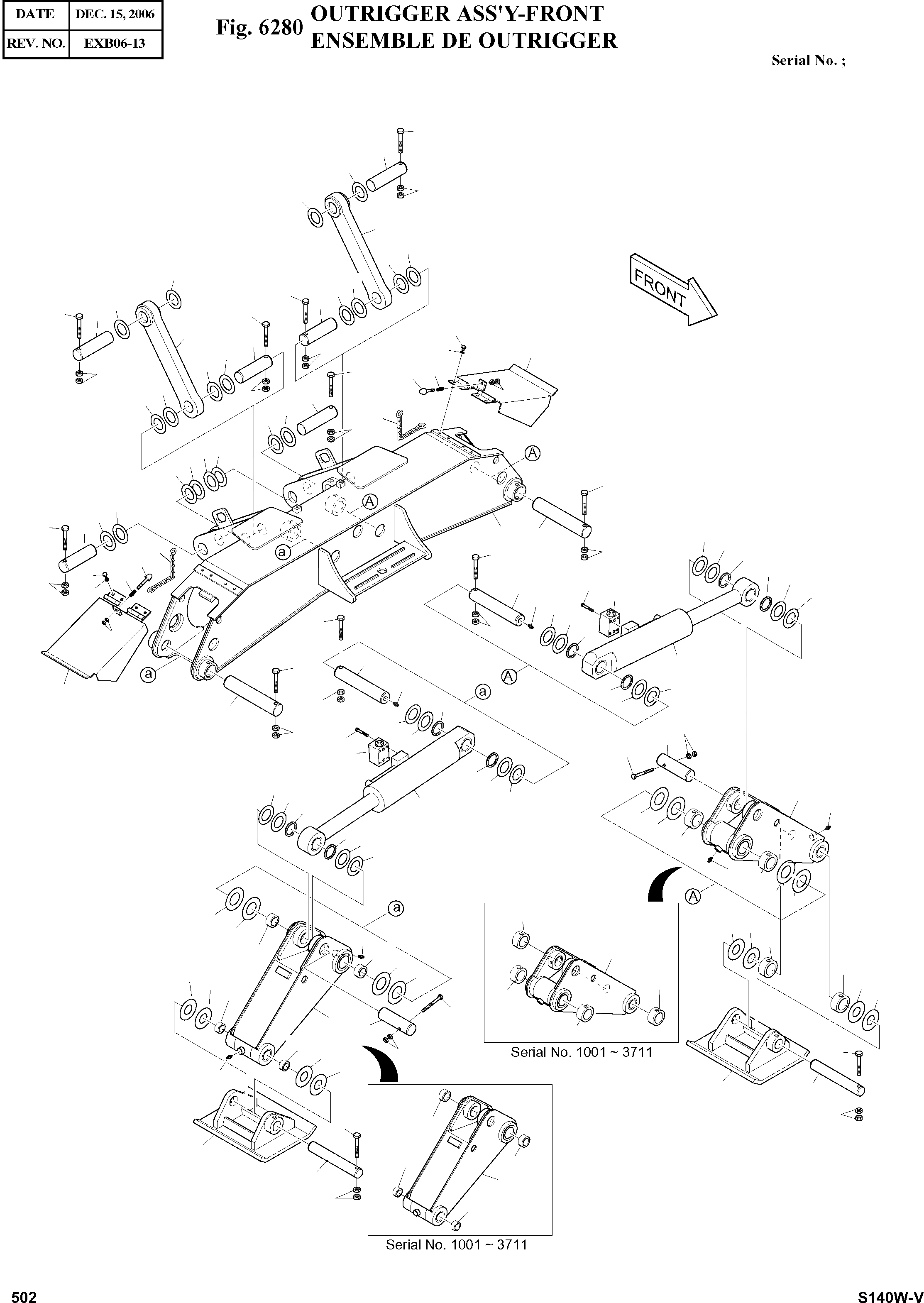
Запчасти Doosan Daewoo OUTRIGGER ASSY-FRONT OPTION PARTS

42A
42A
42B
42B
3B
3B
3B
3B
3A
3A
3A
3A
41B
41B
41A
41A
8
25
31
9
31
26
31
24
31
24
31
8
31
20
8
25
8
29
26
20
30
33
31
9
24
35
34
8
9
24
36
9
25
31
31
40
24
9
24
31
31
24
8
24
31
25
8
31
1
11
24
40
9
37
8
34
37
35
29
24
9
39
10
30
38
31
15
31
24
8
9
37
36
10
4
8
15
31
32
37
9
24
37
11
31
7
5
9
24
39
6
38
37
24
31
41
24
31
4
15
37
19
18
37
24
31
15
18
19
19
17
16
18
15
3
18
17
19
16
16
17
6
42
5
8
16
7
17
15
13
12
9
8
14
12
3
9
FIT
1:1
100%

Артикул

Название

Примечание

Количество

-

626-00001C

OUTRIGGER ASSY-FRONT

SC: D

-2шт.

1

626-00042A

FRAME;OUTRIGGER

SERIAL: 1001-1734

1шт.

1

626-00042B

FRAME;OUTRIGGER

SERIAL: 1735-2611

1шт.

1

626-00042C

FRAME;OUTRIGGER

SERIAL: 2612-3711

1шт.

1

626-00042E

FRAME;OUTRIGGER

SERIAL: 3712

1шт.

3

626-00041A

LEG;OUTRIGGER

SERIAL: 1001-1734

2шт.

3

626-00041B

LEG;OUTRIGGER

SERIAL: 1735-3711

2шт.

3A

2408-1018

BUSH

desc: . MANCHON

2шт.

3B

2408-1012

BUSH

desc: . MANCHON

2шт.

4

440-00077B

CYLINDER;OUTRIGGER

SERIAL: 1001-3319

2шт.

4

K1010372

CYLINDER;OUTRIGGER

SERIAL: 3320

2шт.

5

2123-4004

PIN

desc: GOUPILLE

2шт.

6

S0562353

BOLT M12X1.75X130

desc: BOULON A 6PANS

2шт.

7

S4012733

NUT M12X1.75

desc: ECROU

2шт.

8

S0566666

BOLT M16X2.0X120

desc: BOULON A 6PANS

12шт.

9

S4012933

NUT M16X2.0

desc: ECROU

24шт.

10

2123-4005

PIN

desc: GOUPILLE

2шт.

11

123-00026

PIN

desc: GOUPILLE

2шт.

12

2123-4006A

PIN

desc: GOUPILLE

2шт.

13

195-01785A

FOOT;R.H

SERIAL: 1001-3711

1шт.

13

195-01785B

FOOT;R.H

SERIAL: 3712

1шт.

14

195-01786A

FOOT;L.H

SERIAL: 1001-3711

1шт.

14

195-01786B

FOOT;L.H

SERIAL: 3712

1шт.

15

S6710043

NIPPLE

desc: GRAISSEUR

6шт.

16

2114-1058D18

WASHER

desc: RONDELLE

4шт.

17

2114-1058D19

WASHER

desc: RONDELLE

4шт.

18

2114-1058D12

WASHER

desc: CALE

4шт.

19

2114-1058D13

WASHER

desc: CALE

4шт.

20

2123-2312A

PIN

desc: GOUPILLE

2шт.

24

2114-1059D7

SHIM

desc: CALE

14шт.

25

2123-1833A

PIN

desc: GOUPILLE

4шт.

26

155-00040A

LINK

desc: LIEN

2шт.

29

S0511553

BOLT M10X1.5X14

desc: BOULON A 6PANS

8шт.

30

S5102603

WASHER;SPRING M10

desc: RONDELLE ELASTIQUE

8шт.

31

2114-1059D74

SHIM

desc: CALE

20шт.

32

2627-1314C

COVER

desc: COUVERCLE

1шт.

33

2627-1308C

COVER

desc: COUVERCLE

1шт.

34

161-00465

STOPPER

desc: TAQUET

2шт.

35

129-00145

SPRING;COIL

desc: RESSORT

2шт.

36

S4012733

NUT

desc: ECROU

4шт.

37

2180-1106D9

SEAL;DUST

desc: JOINT DE LA POUSSIERE

8шт.

38

2426-9023B

VALVE:PILOT CHECK

desc: VANNE

2шт.

39

S2212966

BOLT;SOCKET M10X1.5X65

desc: BOULON A 6 PANS CREUX

8шт.

40

K1014452A

CHAIN

SERIAL: 3712

2шт.

41

K1026232

LEG;OUTRIGGER

SERIAL: 3712

1шт.

41A

2408-1018

BUSH

desc: . MANCHON

2шт.

41B

2408-1012

BUSH

desc: . MANCHON

2шт.

42

K1026233

LEG;OUTRIGGER

SERIAL: 3712

1шт.

42A

2408-1018

BUSH

desc: . MANCHON

2шт.

42B

2408-1012

BUSH

desc: . MANCHON

2шт.

Выбрано товаров: 50