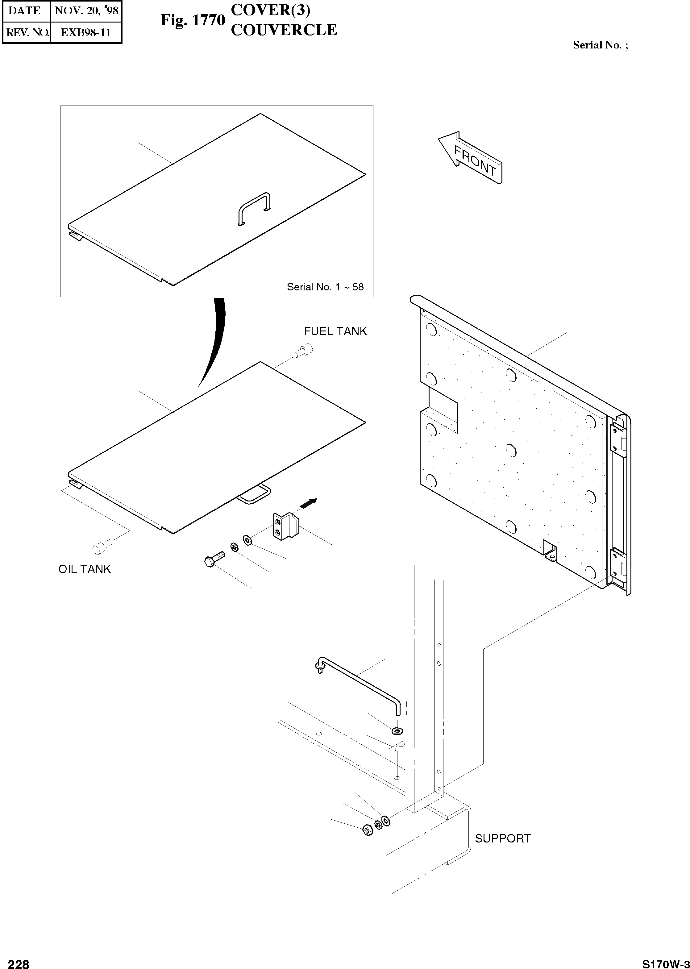
Запчасти Doosan Daewoo COVER(3) BODY PARTS

2
6
2
26
24
25
16
11
15
13
15
17
18
FIT
1:1
100%

Артикул

Название

Примечание

Количество

-

2621-4371

UPPER COVER ASS'Y

desc: ENSEMBLE COUVERCLE

1шт.

2

2621-4368

COVER

SERIAL: 1-10

1шт.

2

2621-4368A

COVER

SERIAL: 11-58

1шт.

2

2621-4368B

COVER

SERIAL: 59

1шт.

6

2621-4370

COVER;SIDE(R.H)

SERIAL: 1-10

1шт.

6

2621-4370A

COVER;SIDE(R.H)

SERIAL: 11-191

1шт.

6

2621-4370B

COVER;SIDE(R.H)

SERIAL: 192

1шт.

11

2145-1014A

STAY

SERIAL: 1-10

1шт.

13

2705-9002

PIN;LOCK

desc: GOUJON DE BLOCAGE

1шт.

15

S5010713

WASHER;PLAIN M12

SERIAL: 1-92

1шт.

15

S5010713

WASHER;PLAIN M12

SERIAL: 93

5шт.

16

S0512053

BOLT M10X1.5X25

SERIAL: 1-10

2шт.

17

S5102703

WASHER;SPRING M12

desc: RONDELLE ELASTIQUE

4шт.

18

S4012733

NUT M12X1.75

desc: ECROU

4шт.

24

S5010613

WASHER;PLAIN M10

desc: RONDELLE PLATE M10

2шт.

25

S5102603

WASHER;SPRING M10

desc: RONDELLE ELASTIQUE

2шт.

26

2116-4017

PLATE

desc: PLAQUE

1шт.

Выбрано товаров: 17