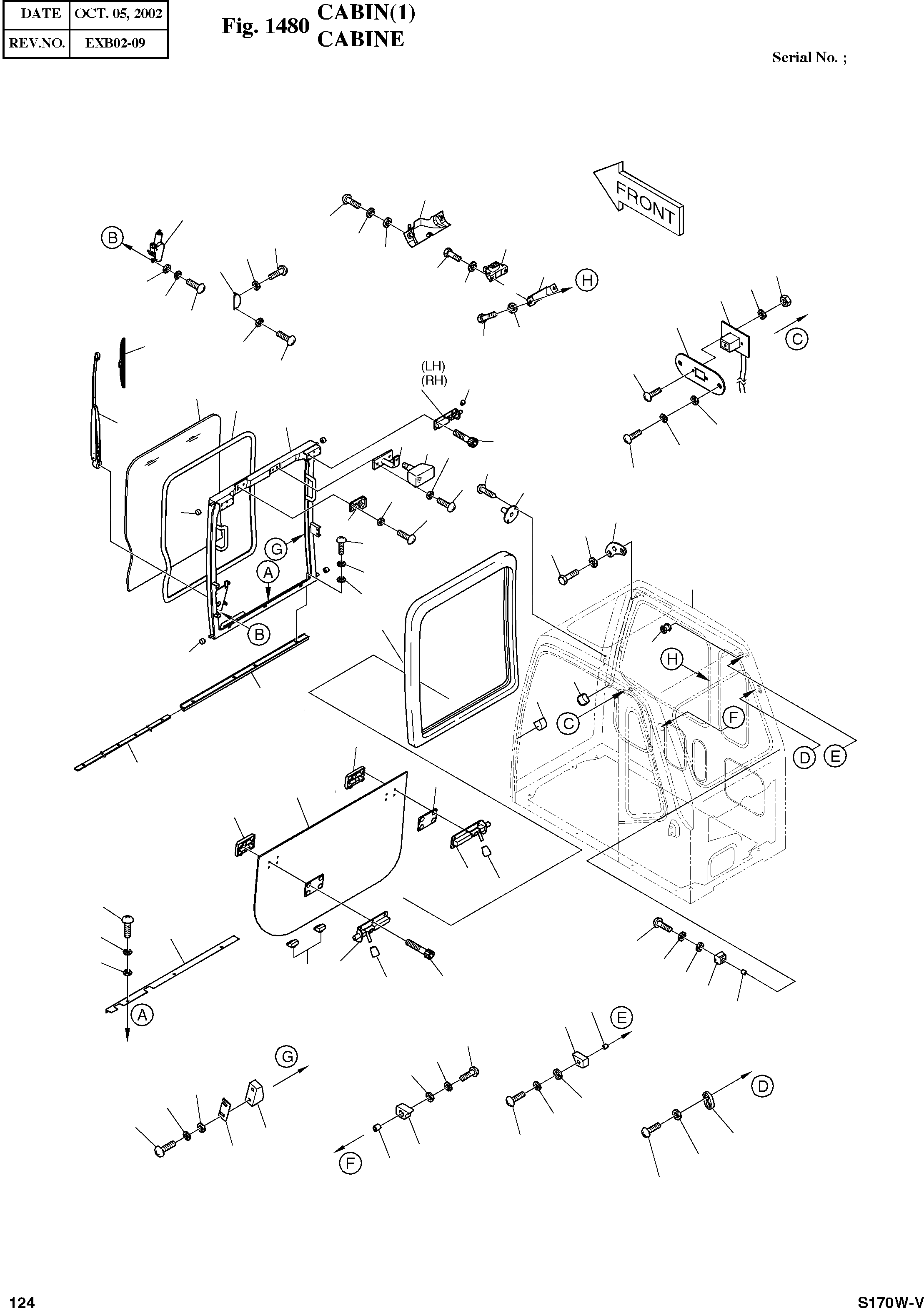
Запчасти Doosan Daewoo CABIN(1) BODY PARTS

49
56
37
39
47
55
38
38
131
45
78
41
77
58
149
74
59
57
75
150
46
61
38
142
55
76
143
120
4
13
2
60
38
64
146
65
39
150
103
37
41
102
52
3
51
31
50
33
37
32
39
1
38
22
133
3
95
53
96
5-2
5-1
54
5-2
5-4
5-6
5-5
5-3
120
55
141
39
86
38
39
84
93
120
121
91
91
90
86
39
93
38
39
93
39
37
62
87
86
94
63
38
91
37
FIT
1:1
100%

Артикул

Название

Примечание

Количество

-

2622-1429L

CABIN ASS'Y

SERIAL: 1001-1029

1шт.

-

2622-1429N

CABIN ASS'Y

SERIAL: 1030-1066

1шт.

-

2622-1429Q

CABIN ASS'Y

SERIAL: 1067-1142

1шт.

-

2622-1429R

CABIN ASS'Y

SERIAL: 1143

1шт.

1

-

BODY;CABIN

SC: D

1шт.

2

2622-1529

PANEL ASM;FRONT

SERIAL: 1001-1029

1шт.

2

2622-1529A

PANEL ASM;FRONT

SERIAL: 1030-1066

1шт.

2

2622-1529B

PANEL ASM;FRONT

SERIAL: 1067

1шт.

3

2154-1033

ROLLER

desc: GALET

4шт.

4

2903-1208

GLASS;FRONT WINDOW

desc: VITRE

1шт.

5

2903-1215B

GLASS;FRONT LOWER

desc: VITRE

1шт.

5-1

2903-1209

GLASS 5T

desc: . VITRE

1шт.

5-2

2229-1048

RETAINER

desc: . BAGUE

1шт.

5-3

2125-9059

LATCH;SLIDE

desc: . LOQUET(DROIT)

2шт.

5-4

2125-9058

LATCH;SLIDE

desc: . LOQUET(GAUCHE)

1шт.

5-5

2180-1266

PACKING

desc: . JOINT

1шт.

5-6

S2203061

BOLT;SOCKET M5X0.8X14

desc: . BOULON A 6 PANS CREUX

4шт.

13

2198-1053

H-RUBBER;FRONT

desc: CAOUTCHOUC

1шт.

22

2162-1063

STRIP;WEATHER

desc: TAMPON

1шт.

31

2131-1131

HOLDER;LATCH ASM

desc: HOLDEUR

2шт.

32

2120-2150D3

BOLT M6X1.0X16

desc: BOULON A 6 PANS

4шт.

33

S5210303

WASHER;TOOTHED LOCK

desc: RONDELLE ELASTIQUE

4шт.

37

S3450973

SCREW M6X1.0X16

desc: VIS

13шт.

38

S5010313

WASHER;PLAIN M6

desc: RONDELLE

20шт.

39

S5102303

WASHER;SPRING M6

desc: RONDELLE ELASTIQUE

18шт.

41

2120-2166D5

BOLT M8X1.25X20

desc: BOULON A 6 PANS

4шт.

45

2197-1711

BRACKET ASM;AUTO LOCK

desc: SUPPORT

1шт.

46

2120-2166D4

BOLT M10X1.5X20

desc: BOULON A 6 PANS

2шт.

47

2125-9056

CATCH;AUTO LOCK

desc: PORTE

1шт.

49

2621-3739

COVER;AUTO LOCK

desc: COUVERCLE

1шт.

50

2142-9004

STRIKER

desc: FRAPPER

1шт.

51

S3453103

SCREW M8X1.25X16

desc: VIS

3шт.

52

S5210503

WASHER;TOOTHED LOCK

desc: RONDELLE ELASTIQUE

3шт.

53

2161-2221A

SEAL;RUBBER

desc: JOINT

1шт.

54

2159-1171

PLATE ASM;FRONT

desc: PLAQUE

1шт.

55

S3450953

SCREW M6X1.0X12

desc: VIS

7шт.

56

2538-9013

WIPER;MOTOR

SERIAL: 1001-1029

1шт.

56

2538-9013A

WIPER;MOTOR

SERIAL: 1030

1шт.

57

S3450833

SCREW M5X0.8X12

desc: VIS

3шт.

58

S5010213

WASHER;PLAIN M5

desc: RONDELLE

3шт.

59

S5102203

WASHER;SPRING M5

desc: RONDELLE ELASTIQUE

3шт.

60

2541-6020

WIPER ARM ASS'Y

desc: BRAS D'ESSUIE-GLACE

1шт.

61

2507-6004

BLADE;WIPER

desc: BALAI D'ESSUIE-GLACE

1шт.

62

2116-1518

STOPPER;FRONT WINDOW

desc: TAQUET D'ARRET

1шт.

63

2114-1854

SHIM;STOPPER T=1.2

desc: CALE

1шт.

64

2197-1712

BRACKET;MIRROR

desc: SUPPORT

1шт.

65

2903-6006

MIRROR;ROOM

desc: RETROVISEUR INTERIEUR

1шт.

74

2530-1605A

HARNESS

SERIAL: 1001-1029

1шт.

74

2530-1605B

HARNESS

SERIAL: 1030

1шт.

75

2891-1323

PLATE;CONNECTOR

desc: PLAQUE

1шт.

76

S3450343

SCREW M3X0.5X10

desc: VIS

2шт.

77

S5020013

WASHER;PLAIN M3

desc: RONDELLE

2шт.

78

S4010003

NUT M3X0.5

desc: ECROU

2шт.

84

2161-2211

STOPPER;RUBBER

desc: ARRET

2шт.

86

S3450993

SCREW M6X1.0X25

desc: VIS

4шт.

87

2514-1013

HOLDER;GLASS

desc: POSSESSEUR

2шт.

90

2161-2208

STOPPER;RUBBER(R.H.)

desc: ARRET

1шт.

91

2140-1338

PIPE;SPACER

desc: TUYAU

4шт.

93

2114-1058D52

WASHER M6

desc: RONDELLE

4шт.

94

2161-2207

STOPPER;RUBBER(L.H.)

desc: ARRET

1шт.

95

2161-2210

STOPPER;RUBBER(R.H.)

desc: ARRET

1шт.

96

2161-2209

STOPPER;RUBBER(L.H.)

desc: ARRET

1шт.

102

2114-1855

WASHER

desc: RONDELLE

1шт.

103

S3643359

TAPPING;SCREW M4X12

desc: VIS

2шт.

120

2160-1307

CAP

desc: BOUCHON

4шт.

121

2161-2212

STOPPER;RUBBER

desc: ARRET

2шт.

131

2403-1072

COVER;WIPER MOTOR

desc: COUVERCLE

1шт.

133

2160-1004D50

BUSHING;RUBBER

desc: GARNISSAGE CAOUTCHOUC

2шт.

141

2621-3886B

COVER

desc: COUVERCLE

1шт.

142

2125-9058

LATCH;SLIDE(L.H.)

desc: LOQUET(GAUCHE)

1шт.

143

2125-9059

LATCH;SLIDE(R.H.)

desc: LOQUET(DROIT)

1шт.

146

S2203061

BOLT;SOCKET M5X0.8X14

desc: BOULON A 6 PANS CREUX

12шт.

149

2114-1898D2

WASHER M8

desc: RONDELLE

4шт.

150

2114-1058D5

WASHER M10

desc: RONDELLE

2шт.

Выбрано товаров: 74