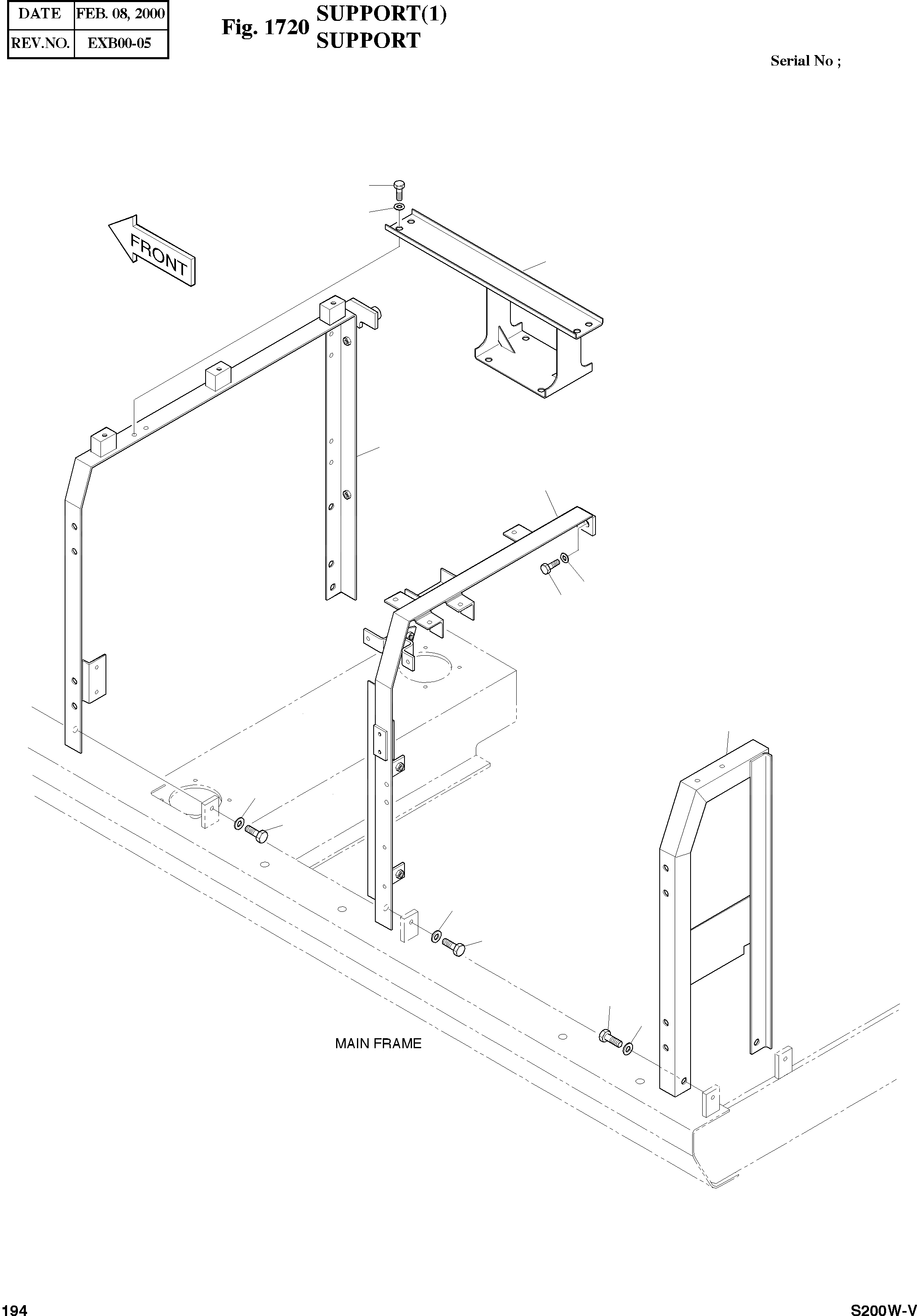
Запчасти Doosan Daewoo SUPPORT(1) BODY PARTS

7
8
11
5
4
8
7
2
10
9
10
9
9
10
FIT
1:1
100%

Артикул

Название

Примечание

Количество

-

2197-2014A

SUPPORT ASS'Y

SC: D

-2шт.

2

2197-2019B

SUPPORT

desc: SUPPORT

1шт.

4

2197-2021B

SUPPORT

desc: SUPPORT

1шт.

5

2197-2022A

SUPPORT

desc: SUPPORT

1шт.

7

S0512053

BOLT M10X1.5X25

desc: BOULON A 6 PANS

5шт.

8

2114-1058D10

WASHER

desc: RONDELLE

5шт.

9

S0515053

BOLT M12X1.75X25

desc: BOULON A 6 PANS

5шт.

10

2114-1058D30

WASHER

desc: RONDELLE

5шт.

11

2197-2025

SUPPORT

desc: SUPPORT

1шт.

Выбрано товаров: 9