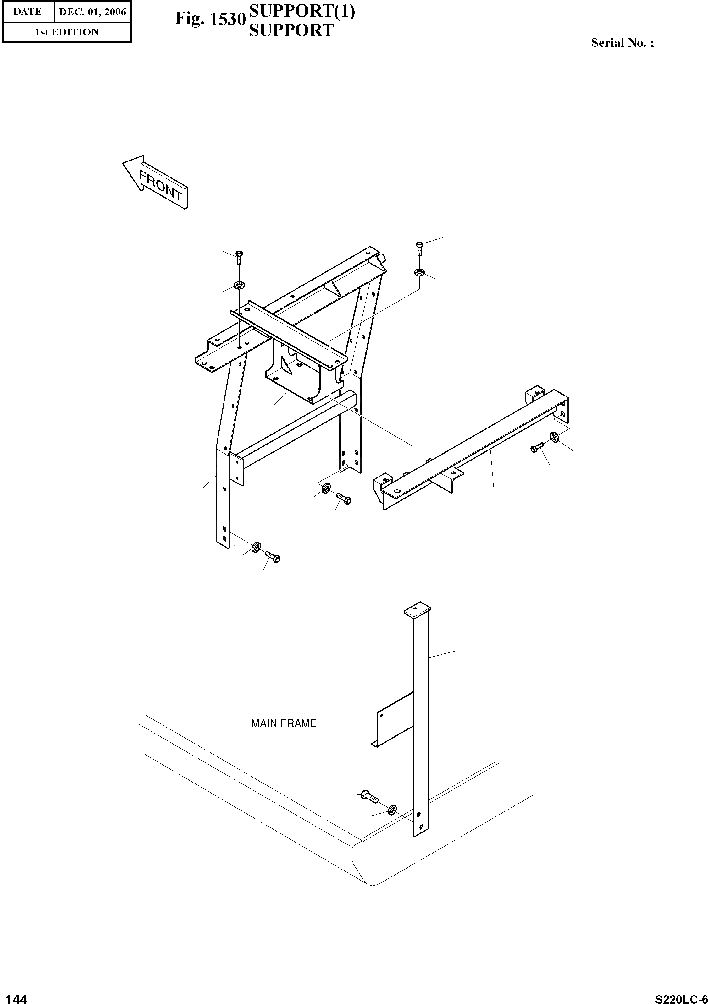
Запчасти Doosan Daewoo SUPPORT(1) BODY PARTS

8
8
10
13
10
8
12
5
11
9
11
9
4
9
11
10
FIT
1:1
100%

Артикул

Название

Примечание

Количество

-

2197-1423A

SUPPORT ASS'Y

SC: D

-2шт.

4

2197-1387B

SUPPORT

desc: SUPPORT

1шт.

5

2197-1394A

SUPPORT

desc: SUPPORT

1шт.

8

S0512053

BOLT M10X1.5X25

desc: BOULON

6шт.

9

S0515253

BOLT M12X1.75X30

desc: BOULON A 6PANS

6шт.

10

2114-1058D10

WASHER

desc: RONDELLE

6шт.

11

2114-1058D30

WASHER

desc: RONDELLE

6шт.

12

2197M1804A-A

SUPPORT

desc: SUPPORT

1шт.

13

2197-1805

SUPPORT

desc: SUPPORT

1шт.

Выбрано товаров: 9