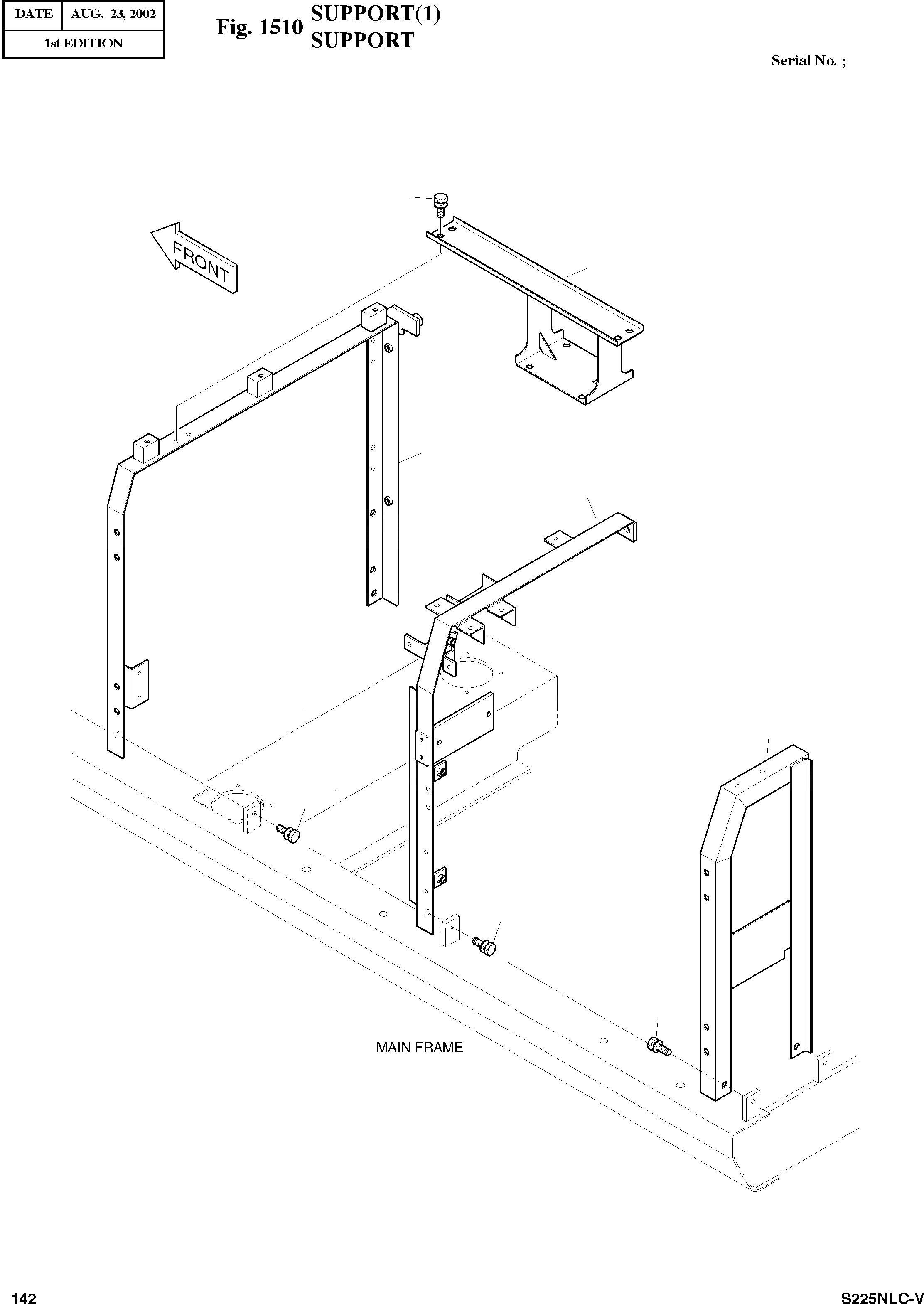
Запчасти Doosan Daewoo SUPPORT(1) BODY PARTS

7
5
9
9
7
2
4
11
FIT
1:1
100%

Артикул

Название

Примечание

Количество

-

195-02334

SUPPORT ASS'Y

SC: D

-2шт.

2

195-02355

SUPPORT

desc: SUPPORT

1шт.

4

195-02354

SUPPORT

desc: SUPPORT

1шт.

5

2197-2022A

SUPPORT

desc: SUPPORT

1шт.

7

2120-2196D3

BOLT M10X1.5X25

desc: BOULON A 6 PANS

5шт.

9

2120-2196D7

BOLT M12X1.75X30

desc: BOULON A 6 PANS

7шт.

11

2197-2025

SUPPORT

desc: SUPPORT

1шт.

Выбрано товаров: 7