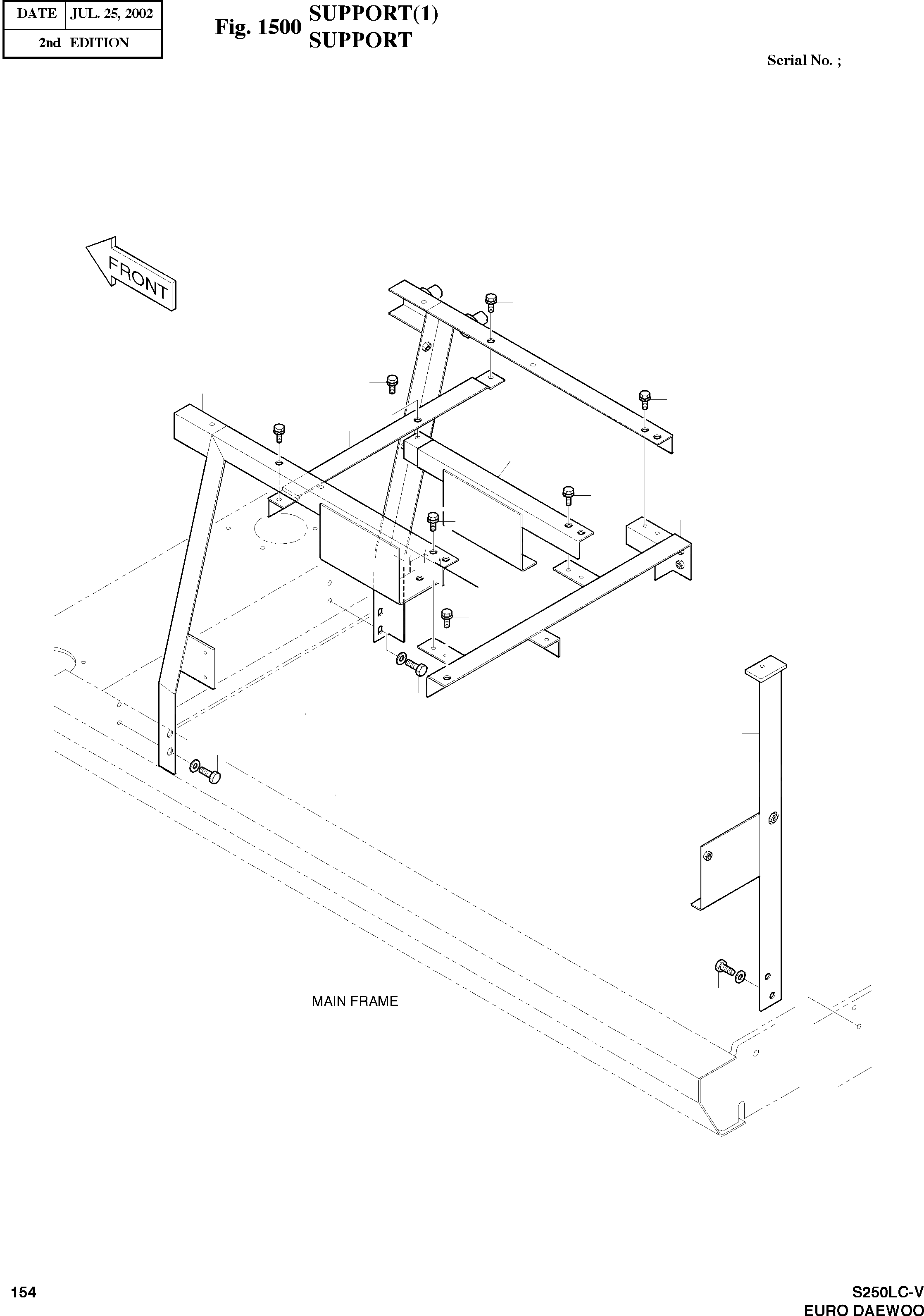
Запчасти Doosan Daewoo SUPPORT(1) BODY PARTS

11
7
11
6
11
8
11
1
11
4
11
11
10
9
10
3
9
9
10
FIT
1:1
100%

Артикул

Название

Примечание

Количество

-

195-00014A

SUPPORT ASS'Y

SC: D

-2шт.

1

195-00015A

SUPPORT

desc: SUPPORT

1шт.

3

2197-1451

SUPPORT

desc: SUPPORT

1шт.

4

195-00017B

SUPPORT

desc: SUPPORT

1шт.

6

195-00019A

SUPPORT

desc: SUPPORT

1шт.

7

195-00020

SUPPORT

desc: SUPPORT

1шт.

8

195-00308

SUPPORT

desc: SUPPORT

1шт.

9

S0515253

BOLT M12X1.75X30

desc: BOULON A 6 PANS

6шт.

10

2114-1058D30

WASHER

desc: RONDELLE

6шт.

11

2120-2196D3

BOLT;SET M10X1.5X25

desc: BOULON A 6 PANS

6шт.

Выбрано товаров: 10