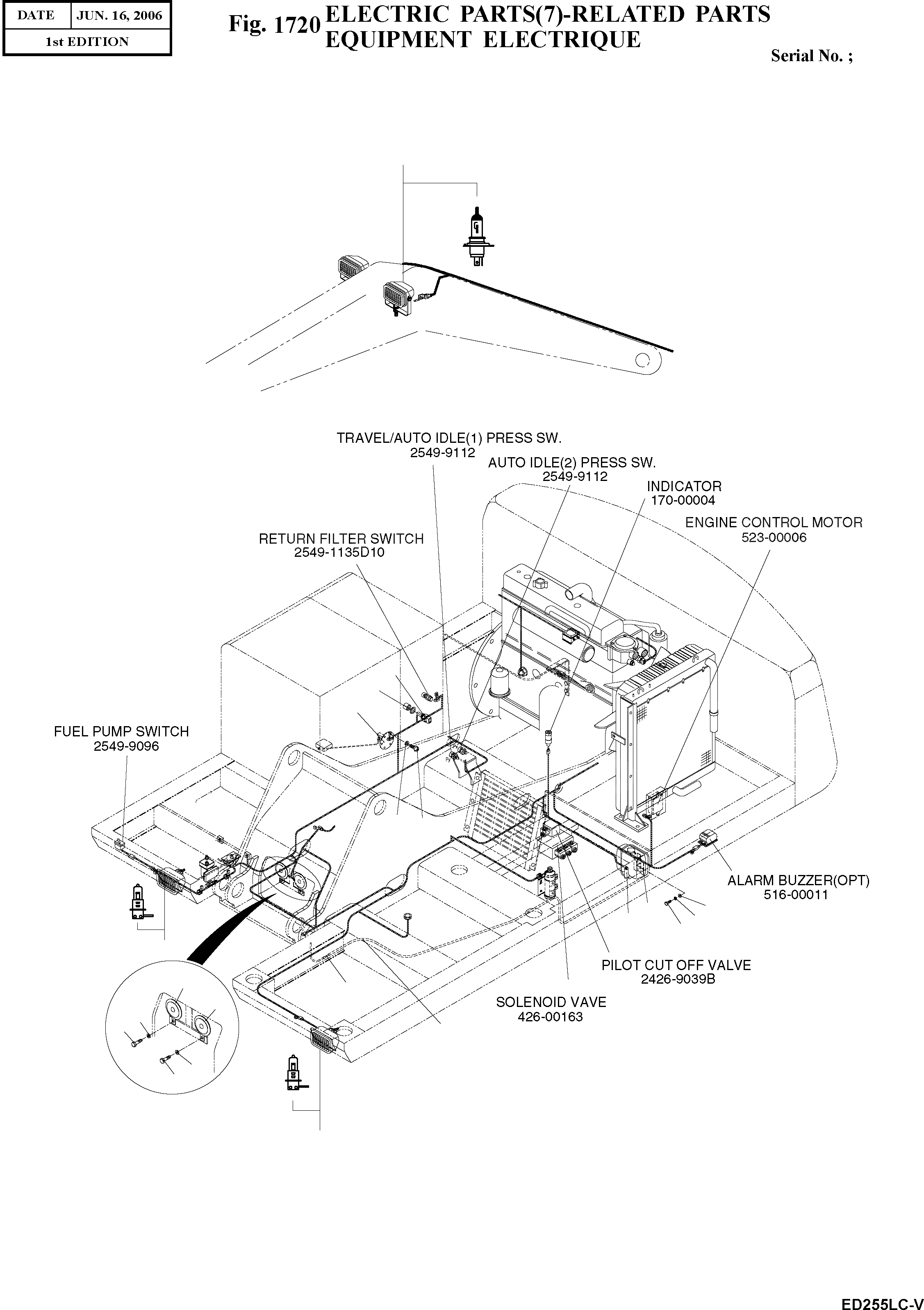
Запчасти Doosan Daewoo ELECTRIC PARTS(7)-RELATED PARTS UPPER STRUCTURE

34
33A
33A
53
54
41
43
42
30
27
26
29
28
33
36
31
35
38
37
32
38
37
33
34A
FIT
1:1
100%

Артикул

Название

Примечание

Количество

-

500-00138

ELECTRIC PARTS(7)

SC: D

-2шт.

26

2554-9005A

WASHER;WINDOW

desc: RONDELLE PLATE

1шт.

27

2195-1534

BRACKET

desc: SUPPORT

1шт.

28

S0504453

BOLT M6X1.0X12

desc: BOULON A 6 PANS

2шт.

29

S5102303

WASHER;SPRING M6

desc: RONDELLE ELASTIQUE

2шт.

30

S5010313

WASHER;PLAIN M6

desc: RONDELLE PLATE

2шт.

31

2415-1018

ADAPTER;HOSE

desc: RACCORD ADAPTEUR

1шт.

32

2185-1681D4

TUBE;CORRUGATE

desc: TUYAU FLEXIBLE

1шт.

33

534-00063

LAMP;HEAD 24V 70W

desc: LAMPE

2шт.

33A

2515-1016D4

BULB;HALOGEN H3 24V 70W

desc: . AMPOULE

1шт.

34

534-00064

LAMP;WORKING 24V 75/70W

desc: LAMPE

2шт.

34A

2515-1022D1

BULB;HALOGEN H4 24V 75/70W

desc: . AMPOULE

1шт.

35

516-00014

HORN;HIGH

desc: AVERTISSEUR

1шт.

36

516-00015

HORN;LOW

desc: AVERTISSEUR

1шт.

37

S0508653

BOLT M8X1.25X16

desc: BOULON A 6 PANS

2шт.

38

S5102503

WASHER;SPRING M8

desc: RONDELLE ELASTIQUE

2шт.

41

2547-9035A

SENSOR;FUEL

desc: TRANSMETTEUR GAZOLE

1шт.

42

S3450833

BOLT M5X0.8X12

desc: BOULON A 6 PANS

6шт.

43

S5100203

WASHER;SPRING M5

desc: RONDELLE ELASTIQUE

6шт.

53

2547-9038B

SENSOR;OIL TEMP

desc: CAPTEUR

1шт.

54

S8180251

PACKING

desc: EMBALLAGE

1шт.

Выбрано товаров: 21