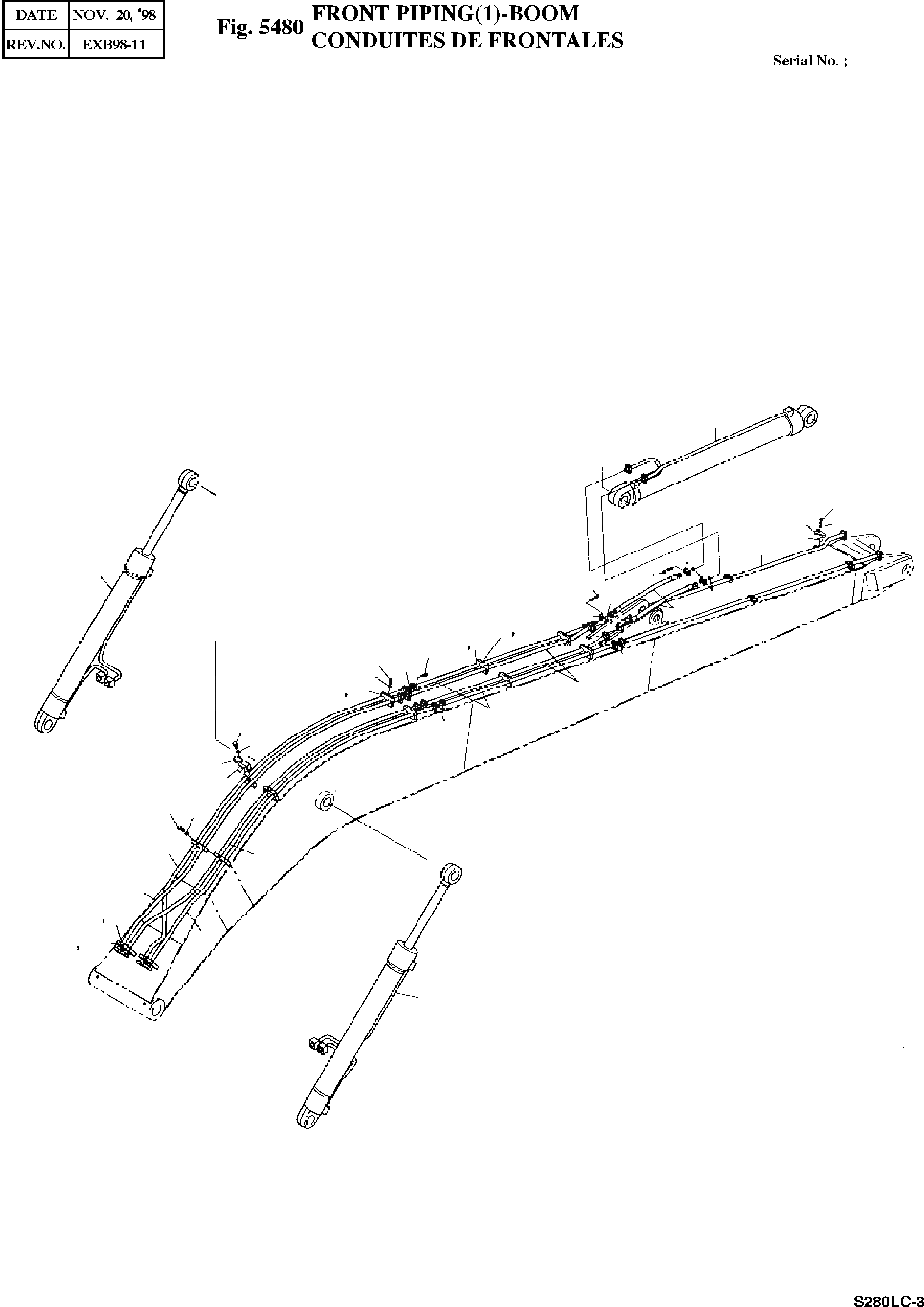
Запчасти Doosan Daewoo FRONT PIPING(1)-BOOM OPTION PARTS

13
3
18
16
17
11
20
1
21
21
13
10
19
15
16
14
17
12
15
13
13
16
9
14
17
8
15
13
16
14
17
15
16
5
6
7
15
16
4
14
17
2
20
15
FIT
1:1
100%

Артикул

Название

Примечание

Количество

-

2400-1874

FRONT PIPING SUPER LONG BOOM

SC: D

-2шт.

1

2440-9136B

CYLINDER;BOOM(L.H)

desc: VERIN DE FLECHE

1шт.

2

2440-9137B

CYLINDER;BOOM(R.H)

desc: VERIN DE FLECHE

1шт.

3

2440-9138B

CYLINDER;ARM

SERIAL: 5001-6245

1шт.

3

2440-9138C

CYLINDER;ARM

SERIAL: 6246

1шт.

4

2140-1395

PIPE

SERIAL: 5001-6224

1шт.

4

2140-1395A

PIPE

SERIAL: 6225

1шт.

5

2140-1396

PIPE

SERIAL: 5001-6224

1шт.

5

2140-1396A

PIPE

SERIAL: 6225

1шт.

6

2140-1397

PIPE

SERIAL: 5001-6224

1шт.

6

2140-1397A

PIPE

SERIAL: 6225

1шт.

7

2140-1398

PIPE

SERIAL: 5001-6224

1шт.

7

2140-1398A

PIPE

SERIAL: 6225

1шт.

8

2140-1399

PIPE

desc: TUYAU

2шт.

9

2140-1400

PIPE

desc: TUYAU

2шт.

10

2140-1401

PIPE

desc: TUYAU

1шт.

11

2140-1402

PIPE

desc: TUYAU

1шт.

12

S2212461

BOLT;SOCKET M10X1.5X40

desc: BOULON A 6 PANS CREUX

24шт.

13

2180-1026D19

O-RING

desc: JOINT TORIQUE

10шт.

14

2124-1587

CLAMP;PIPE

desc: ATTACHE DE TUYAU

12шт.

15

S0565461

BOLT M16X1.5X60

desc: BOULON A 6 PANS

16шт.

16

S5102901

WASHER;SPRING

desc: RONDELLE ELASTIQUE

16шт.

17

2161-2131

RUBBER

desc: CAOUTCHOUC

56шт.

18

2124-1586A

CLAMP;PIPE

desc: ATTACHE DE TUYAU

4шт.

19

2184-1081D111

HOSE 2-1"5000PSI

desc: TUYAU FLEXIBLE

2шт.

20

2181-9078

FLANGE;SPLIT

desc: COLLIER A BRIDE(1")

8шт.

21

S2212261

BOLT;SOCKET M10X1.5X30

desc: BOULON A 6 PANS CREUX

16шт.

Выбрано товаров: 27