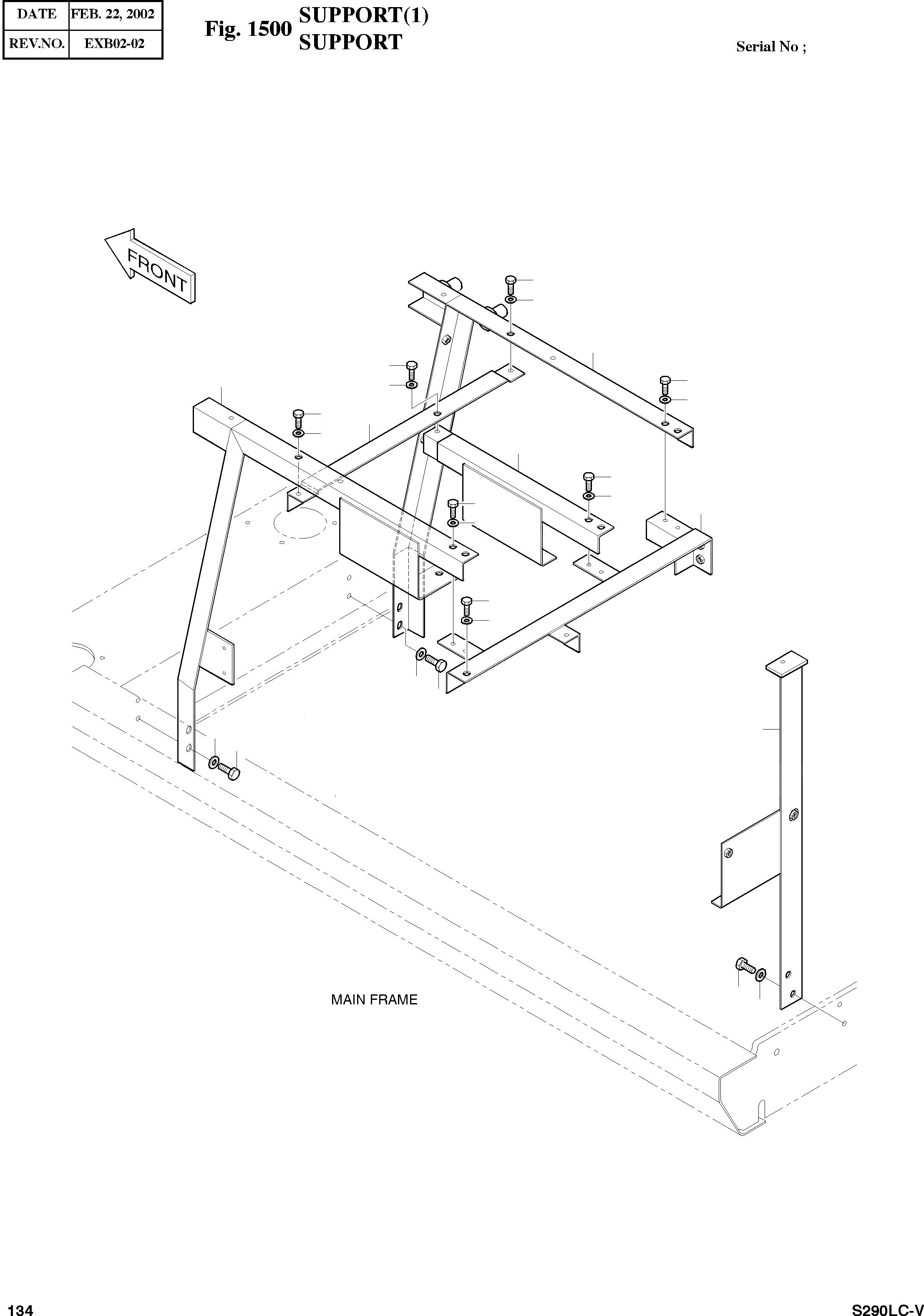
Запчасти Doosan Daewoo SUPPORT(1) BODY PARTS

13
14
9
13
13
8
14
14
13
10
14
3
13
14
13
6
14
13
14
12
11
5
12
11
11
12
FIT
1:1
100%

Артикул

Название

Примечание

Количество

-

2197-1570A

SUPPORT ASS'Y

SC: D

-2шт.

3

2197-1827B

SUPPORT

desc: SUPPORT

1шт.

5

2197-1451

SUPPORT

desc: SUPPORT

1шт.

6

2197-1449A

SUPPORT

SERIAL: 1-249

1шт.

6

2197-1449B

SUPPORT

SERIAL: 250-1540

1шт.

6

2197-1449C

SUPPORT

SERIAL: 1541

1шт.

8

2197-1605B

SUPPORT

SERIAL: 1-249

1шт.

8

2197-1605C

SUPPORT

SERIAL: 250

1шт.

9

2197-1606C

SUPPORT

SERIAL: 1-249

1шт.

9

2197-1606E

SUPPORT

SERIAL: 250-1540

1шт.

9

2197-1606G

SUPPORT

SERIAL: 1541

1шт.

10

2197-1607A

SUPPORT

desc: SUPPORT

1шт.

11

S0515253

BOLT M12X1.75X30

desc: BOULON A 6 PANS

6шт.

12

2114-1058D30

WASHER

desc: RONDELLE

6шт.

13

S0512053

BOLT M10X1.5X25

desc: BOULON A 6 PANS

4шт.

14

2114-1058D10

WASHER

desc: RONDELLE PLATE

4шт.

Выбрано товаров: 16