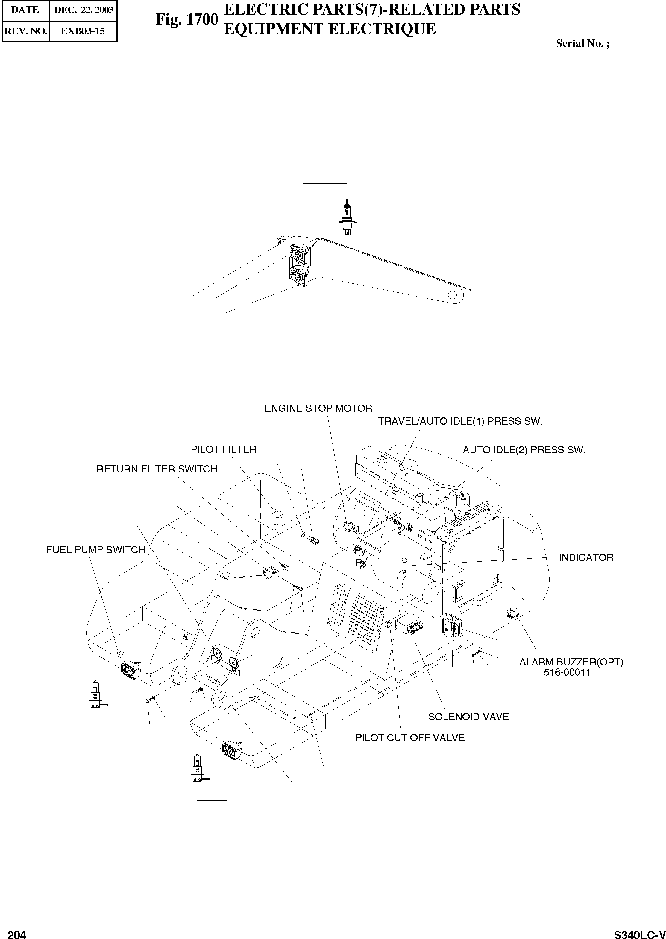
Запчасти Doosan Daewoo ELECTRIC PARTS(7)-RELATED PARTS BODY PARTS

31
43
42
38
33
39
40
32
35
34
35
34
30
30A
30A
30
28
29
31A
24
27
26
25
23
FIT
1:1
100%

Артикул

Название

Примечание

Количество

-

500-00140

ELECTRIC PARTS(7)

SC: D

-2шт.

23

2554-9005A

WINDOW-WASHER

desc: RONDELLE

1шт.

24

2195-1534

BRACKET

desc: SUPPORT

1шт.

25

S0504453

BOLT M6X1.0X12

desc: BOULON A 6 PANS

2шт.

26

S5102303

WASHER;SPRING

desc: RONDELLE ELASTIQUE

2шт.

27

S5010313

WASHER;PLAIN

desc: RONDELLE

2шт.

28

2415-1018

ADAPTER;HOSE

desc: ADAPTEUR

1шт.

29

2185-1681D4

TUBE;CORRUGATE

desc: TUYAU FLEXIBLE

1шт.

30

534-00063

LAMP;HEAD 24V 70W

desc: PROJECTEUR DE FLENCHE

2шт.

30A

2515-1016D4

BULB;HALOGEN H3 24V 70W

desc: . LAMPE

1шт.

31

534-00064

LAMP;WORKING 24V 75/70W

desc: PROJECTEUR DE FLENCHE

2шт.

31A

2515-1022D1

BULB;HALOGEN H4 24V 75/70W

desc: . AMPOULE

1шт.

32

516-00014

HORN;HIGH

desc: AVERTISSEUR

1шт.

33

516-00015

HORN;LOW

desc: AVERTISSEUR

1шт.

34

S0508653

BOLT M8X1.25X16

desc: BOULON A 6 PANS

2шт.

35

S5102503

WASHER;SPRING

desc: RONDELLE ELASTIQUE

2шт.

38

2547-9035

SENSOR;FUEL

SERIAL: 1001-1217

1шт.

38

2547-9035A

SENSOR;FUEL

SERIAL: 1218

1шт.

39

S3450833

BOLT M5X0.8X12

desc: BOULON A 6 PANS

6шт.

40

S5100203

WASHER;SPRING

desc: RONDELLE ELASTIQUE

6шт.

42

2547-9038B

SENSOR;OIL TEMP

desc: CAPTEUR

1шт.

43

S8180251

PACKING

desc: RONDELLE D'ETANCHEITE

1шт.

Выбрано товаров: 22