Запчасти Doosan Daewoo HEATER PIPING BODY PARTS

30
37
28
27
34
29
28
29
FIT
1:1
100%

Артикул

Название

Примечание

Количество

|$1

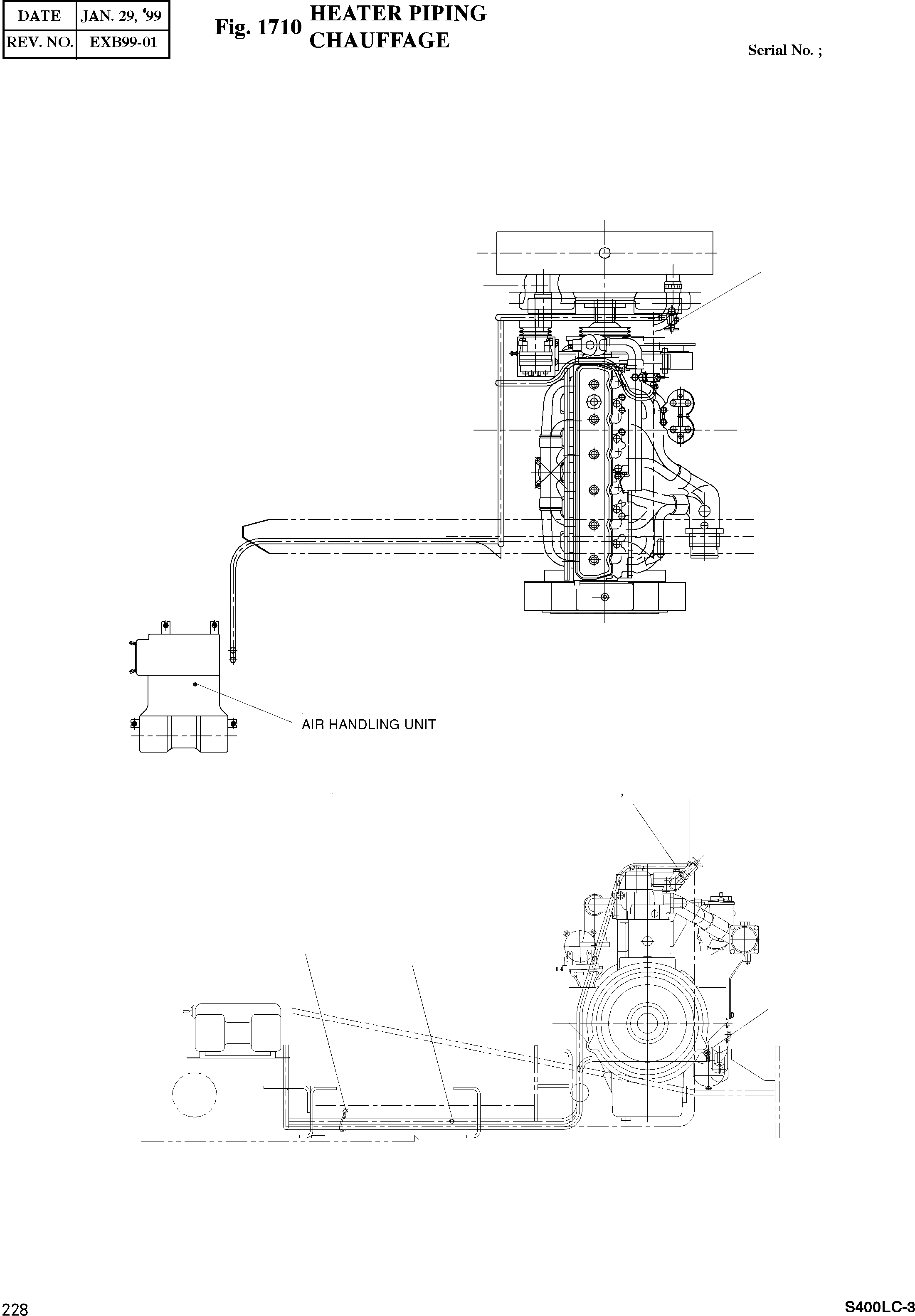
2920-1042

AIRCONDITIONER

desc: REFRIGERATION

-2шт.

27

2185-1308D14

HOSE;RUBBER Ґх13-L5200

desc: TUYAU FLEXIBLE

2шт.

28

2186-9005

COCK

desc: ROBINET

2шт.

29

2124-1024D3

CLAMP;HOSE

desc: COLLIER

4шт.

30

2181-1913D21

REDUCER PF3/4XPT1/2

desc: REDUCTEUR

1шт.

34

2124-1084D3

CLIP;BAND L250

desc: CLIP

20шт.

37

S8180451

RING;SEAL

desc: BAGUE D'ETANCHEITE

1шт.

Выбрано товаров: 7