Запчасти Doosan Daewoo ELECTRIC WIRING(1)-RELATED PARTS BODY PARTS

4
29
34
30
34
31
34
32
34
33
34
38
37
36
1
5
19
15
16
17
18
29
2
20
21
19
22
25
24
22
34
23
34
FIT
1:1
100%

Артикул

Название

Примечание

Количество

-

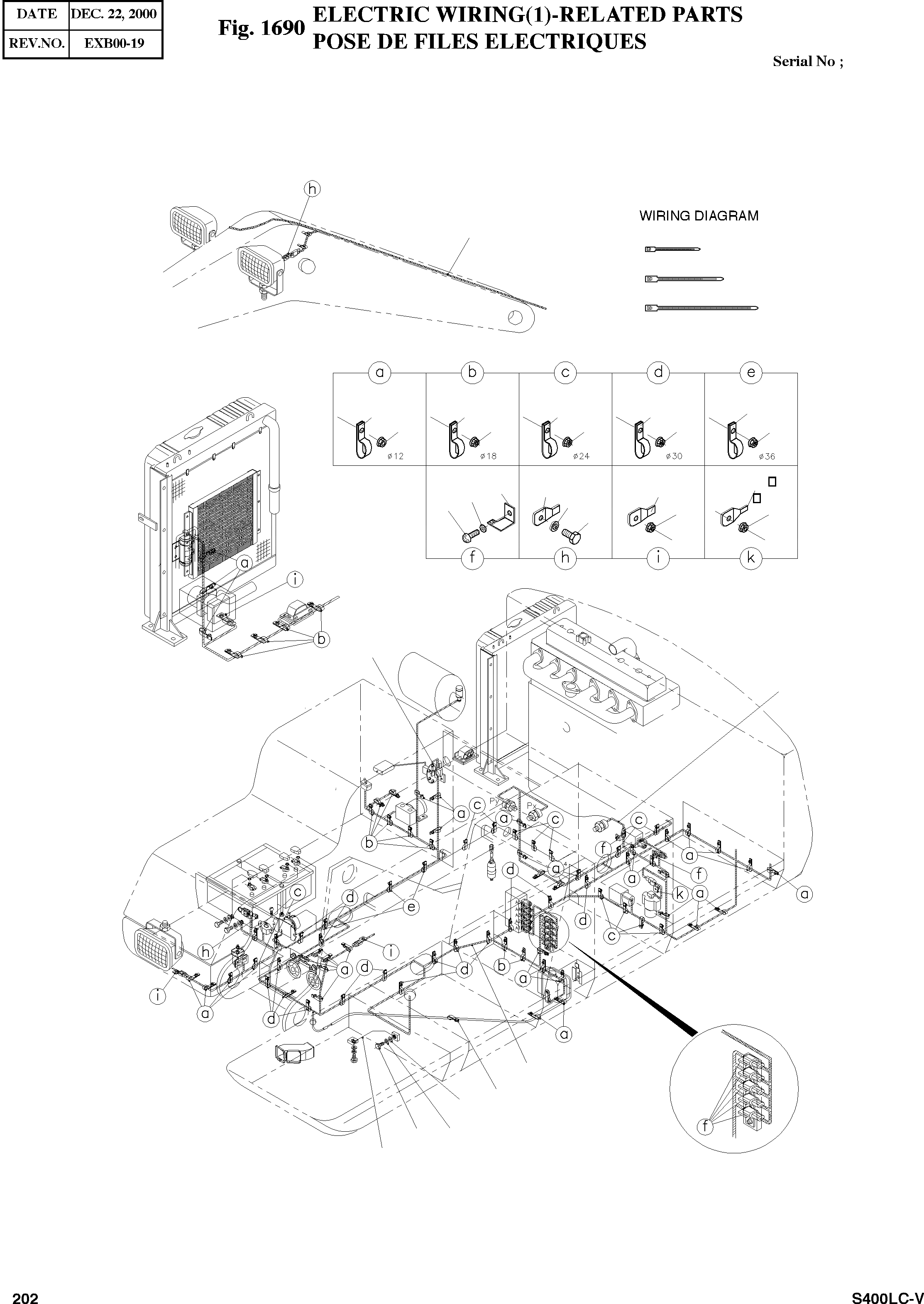
2500-1215

ELECTRIC WIRING(1)-RELATED PARTS

SC: D

-2шт.

1

2599-1133

WIRING DIAGRAM

SERIAL: 1001-1116

1шт.

1

2599-1133A

WIRING DIAGRAM

SERIAL: 1117

1шт.

2

2530-1689A

HARNESS;MAIN

desc: FAISCEAU

1шт.

4

2530-1609D7

HARNESS;WORKING LAMP

desc: FAISCEAU

1шт.

5

2530-1400

HARNESS;PRESS SWITCH

SERIAL: 1001-1126

1шт.

15

2553-1275D1

CABLE;FL PLATE-EARTH

desc: CABLE

1шт.

16

S0511653

BOLT M10X1.5X16

desc: BOULON A 6 PANS

2шт.

17

S5102603

WASHER;SPRING M10

desc: RONDELLE ELASTIQUE

2шт.

18

S5010613

WASHER;PLAIN M10

desc: RONDELLE

2шт.

19

2195-3500

BRACKET;HOUSING

SERIAL: 1001-1126

8шт.

19

2195-3500

BRACKET;HOUSING

SERIAL: 1127

7шт.

20

S3450953

SCREW M6X1.0X12

SERIAL: 1001-1126

7шт.

20

S3450953

SCREW M6X1.0X12

SERIAL: 1127

6шт.

21

S5102303

WASHER;SPRING M6

SERIAL: 1001-1126

7шт.

21

S5102303

WASHER;SPRING M6

SERIAL: 1127

6шт.

22

2197-1660

BRACKET;HOUSING

desc: SUPPORT

6шт.

23

2197-1661

BRACKET;HOUSING

desc: SUPPORT

1шт.

24

S0508653

BOLT M8X1.25X16

desc: BOULON A 6 PANS

3шт.

25

S5102503

WASHER;SPRING M8

desc: RONDELLE ELASTIQUE

3шт.

29

2124-1509D1

CLIP d12/M8

desc: ATTACHE

37шт.

30

2124-1509D2

CLIP d18/M8

desc: ATTACHE

12шт.

31

2124-1509D3

CLIP d24/M8

desc: ATTACHE

13шт.

32

2124-1509D4

CLIP d30/M8

desc: ATTACHE

15шт.

33

2124-1509D5

CLIP d36/M8

desc: ATTACHE DE TUYAU

3шт.

34

2121-1305

NUT M8X1.25

desc: ECROU

83шт.

36

2124-1622D1

CLIP;BAND 150L

desc: ATTACHE

11шт.

37

2124-1622D2

CLIP;BAND 200L

desc: ATTACHE

30шт.

38

2124-1622D3

CLIP;BAND 280L

desc: ATTACHE

10шт.

Выбрано товаров: 29