Запчасти Doosan Daewoo ELECTRIC WIRING BODY PARTS

18
19
4
33
3
15
26
6
8
10
14
20
21
7
9
37
21
13
18
19
20
5
16
32
38
17
18
19
20
24
29
30
36
25
29
30
21
22
23
26
29
30
2
27
29
30
28
29
30
21
22
23
1
30
34
31
11
12
35
FIT
1:1
100%

Артикул

Название

Примечание

Количество

-

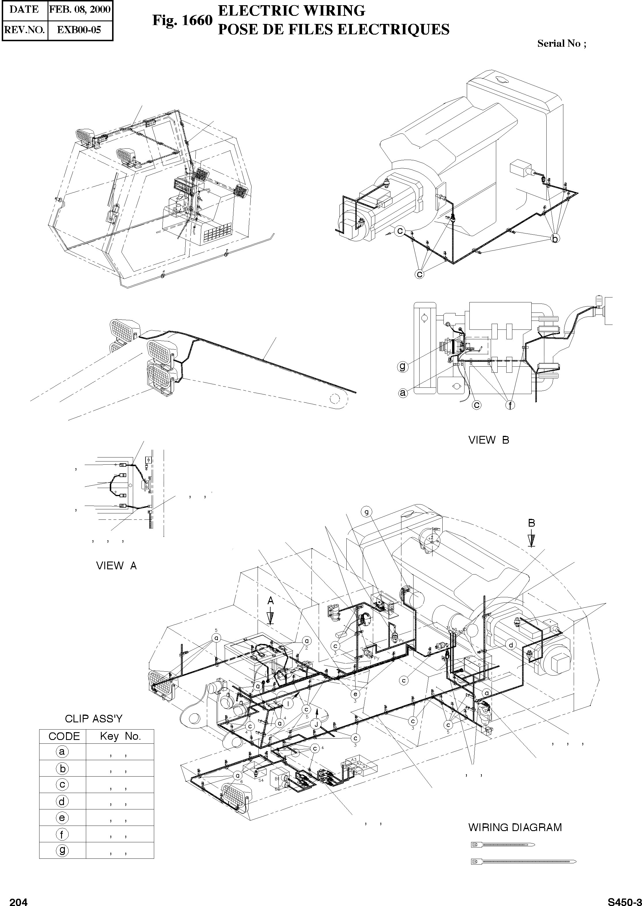
2500-1140

ELECTRIC PARTS

SC: D

-2шт.

1

2599-1110

WIRING;DIAGRAM

desc: DAIGRAMME DE CIRCUIT

1шт.

1

2599-1110A

WIRING;DIAGRAM

desc: DAIGRAMME DE CIRCUIT

1шт.

1

2599-1110B

WIRING;DIAGRAM

SERIAL: 49

1шт.

2

2530-1543

HARNESS;MAIN

SERIAL: 1-282

1шт.

2

2530-1543A

HARNESS;MAIN

SERIAL: 283

1шт.

3

2530-1444D1

HARNESS;WORKING LAMP

desc: FAISCEAU

1шт.

4

2530-1513

HARNESS;CABIN LAMP

desc: FAISCEAU

1шт.

5

2530-1400

HARNESS;PRESS SWITCH

SERIAL: 1-8

3шт.

5

2530-1400

HARNESS;PRESS SWITCH

SERIAL: 9

1шт.

6

1550-1004

TERMINAL;BATERY(+)

SERIAL: 1-236

2шт.

6

2550-1014D1

TERMINAL;BATERY(+)

SERIAL: 237

2шт.

7

1550-1003

TERMINAL;BATERY(-)

SERIAL: 1-236

2шт.

7

2550-1014D2

TERMINAL;BATERY(-)

SERIAL: 237

2шт.

8

2160-1212

CAP;BATT TERMINAL(+) RED

desc: CHAPEAU DO COSSE DE BATTERIE

2шт.

9

2160-1213

CAP;BATT TERMINAL(-) BLACK

desc: CHAPEAU DO COSSE DE BATTERIE

2шт.

10

S0508853

BOLT M8X1.25X20

desc: BOULON A 6 PANS

3шт.

11

S0511853

BOLT M10X1.5X20

desc: BOULON A 6 PANS

2шт.

12

S5102603

WASHER;SPRING M10

desc: RONDELLE ELASTIQUE

2шт.

13

2553-1275D1

CABLE;BATT-EARTH 85B-L300

desc: CABLE BATTERIE

1шт.

14

2553-1275D2

CABLE;BATT-BATT 85R-L300

desc: CABLE BATTERIE A BATTERIE

1шт.

15

2553-1275D3

CABLE;BATT-BATT RELAY 85R-L200

desc: CABLE

1шт.

16

2553-1275D4

CABLE;BATT-BATTERY-STARTER 85R-L3100

desc: CABLE

1шт.

17

2553-1261D27

CABLE;ENGINE-EARTH 85B-L800

desc: CABLE BATTERIE

1шт.

18

S0511653

BOLT M10X1.5X16

desc: BOULON A 6 PANS

3шт.

19

S5102603

WASHER;SPRING M10

desc: RONDELLE ELASTIQUE

3шт.

20

S5010613

WASHER;PLAIN M10

desc: RONDELLE PLATE

3шт.

21

2195-3500

BRACKET;HOUSING

desc: SUPPORT

9шт.

22

S3450953

SCREW M6X1.0X12

desc: VIS

7шт.

23

S5102303

WASHER;SPRING M6

desc: RONDELLE ELASTIQUE

7шт.

24

2124-1509D1

CLIP Ґх12/M8

desc: ATTACHE

23шт.

25

2124-1509D2

CLIP Ґх18/M8

desc: ATTACHE

6шт.

26

2124-1509D3

CLIP Ґх24/M8

desc: ATTACHE

36шт.

27

2124-1509D4

CLIP Ґх30/M8

desc: ATTACHE

1шт.

28

2124-1509D5

CLIP Ґх36/M8

desc: ATTACHE

3шт.

29

S4012533

NUT M8X1.25

desc: ECROU

66шт.

30

S5102503

WASHER;SPRING M8

desc: RONDELLE ELASTIQUE

69шт.

31

2124-1353D1

CLIP Ґх10/M10

desc: ATTACHE

2шт.

32

2124-1353D7

CLIP Ґх31/M10

desc: ATTACHE

1шт.

33

2128-1206D1

CLAMP;METAL

SERIAL: 1-48

14шт.

33

2128-1209D1

CLAMP;METAL

SERIAL: 49

14шт.

34

2124-1084D2

CLIP;BAND

desc: ATTACHE

30шт.

35

2124-1084D3

CLIP;BAND

desc: ATTACHE

15шт.

36

2530-1544

HARNESS;PILOT FILTER SW

desc: FAISCEAU

1шт.

37

2530-1592

HARNESS;PRESURE SW

SERIAL: 9

2шт.

38

2530-1679

HARNESS;PRESSURE SENSOR

SERIAL: 124-282

2шт.

Выбрано товаров: 46