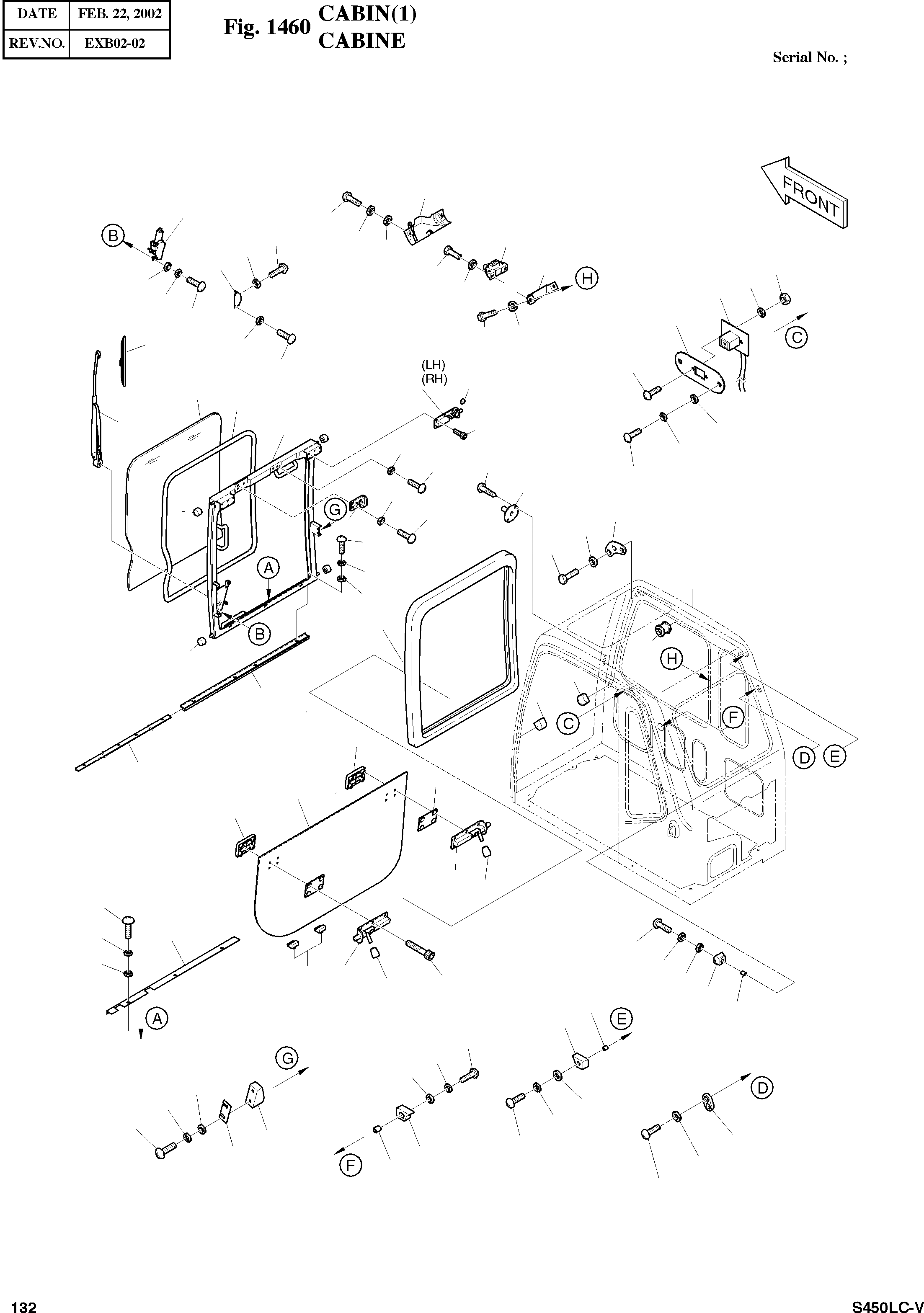
Запчасти Doosan Daewoo CABIN(1) BODY PARTS

49
56
37
39
47
55
38
38
131
78
5-1
45
5-2
41
77
5-5
58
149
74
59
57
75
150
61
46
38
76
142
55
143
120
4
13
146
2
60
38
149
39
41
103
5-2
37
102
52
3
51
31
5-3
33
50
37
32
39
1
38
22
133
3
95
53
96
5-4
5-6
54
120
55
141
39
86
38
39
84
93
120
121
91
91
90
86
39
93
38
39
93
37
39
62
87
86
94
63
38
91
37
FIT
1:1
100%

Артикул

Название

Примечание

Количество

-

622-00080C

CABIN ASS'Y

SERIAL: 1001-1037

1шт.

-

622-00080E

CABIN ASS'Y

SERIAL: 1038-1052

1шт.

-

622-00080H

CABIN ASS'Y

SERIAL: 1053

1шт.

1

622-00079A

CABIN BODY

SC: D

-2шт.

2

2622-1529A

PANEL;FRONT

SERIAL: 1001-1052

1шт.

2

2622-1529B

PANEL;FRONT

SERIAL: 1053

1шт.

3

2154-1033

ROLLER

desc: GALET

4шт.

4

2903-1216

GLASS;FRONT WINDOW

desc: VITRE

1шт.

5

2903-1215B

GLASS;FRONT LOWER

desc: VITRE

1шт.

5-1

2903-1209

GLASS 5T

desc: . VITRE

1шт.

5-2

2229-1048

RETAINER

desc: . BAGUE

2шт.

5-3

2125-9059

LATCH;SLIDE

desc: . LOQUET

1шт.

5-4

2125-9058

LATCH;SLIDE

desc: . LOQUET

1шт.

5-5

2180-1266

PACKING

desc: . JOINT

2шт.

5-6

S2203061

BOLT;SOCKET M5X0.8X14

desc: . BOULON A 6 PANS CREUX

8шт.

13

2198-1059

H-RUBBER

desc: CAOUTCHOUC

1шт.

22

2162-1063

STRIP;WEATHER

desc: TAMPON

1шт.

31

2131-1131

HOLDER;LATCH

desc: HOLDEUR

2шт.

32

2120-2150D3

BOLT M6X1.0X16

desc: BOULON A 6 PANS

4шт.

33

S5210303

TOOTHED LOCK WASHER

desc: RONDELLE ELASTIQUE

4шт.

37

S3450973

SCREW M6X1.0X16

desc: VIS

13шт.

38

S5010313

WASHER;PLAIN M6

desc: RONDELLE

20шт.

39

S5102303

WASHER;SPRING M6

desc: RONDELLE ELASTIQUE

18шт.

41

2120-2166D5

BOLT M8X1.25X20

desc: BOULON A 6 PANS

4шт.

45

2197-1711

BRACKET ASM;AUTO LOCK

desc: SUPPORT

1шт.

46

2120-2166D4

BOLT M10X1.5X20

desc: BOULON A 6PANS

2шт.

47

2125-9056

LOCK;AUTO CATCH

desc: VERROU

1шт.

49

2621-3739

COVER;AUTO LOCK

desc: COUVERCLE

1шт.

50

2142-9004

STRIKER

desc: FRAPPER

1шт.

51

S3453103

SCREW M8X1.25X16

desc: VIS

3шт.

52

S5210503

TOOTHED LOCK WASHER

desc: RONDELLE ELASTIQUE

3шт.

53

2161-2221A

SEAL;RUBBER

desc: JOINT

1шт.

54

2159-1171

PLATE ASM;FRONT

desc: PLAQUE

1шт.

55

S3450953

SCREW M6X1.0X12

desc: VIS

7шт.

56

2538-9013A

WIPER;MOTOR

desc: MOTEUR

1шт.

57

S3450833

SCREW M5X0.8X12

desc: VIS

3шт.

58

S5010213

WASHER;PLAIN M5

desc: RONDELLE

3шт.

59

S5102203

WASHER;SPRING

desc: RONDELLE ELASTIQUE

3шт.

60

2541-6020

WIPER ARM ASS'Y

desc: BRAS D'ESSUIE-GLACE

1шт.

61

2507-6004

BLADE;WIPER

desc: BALAI D'ESSUIE-GLACE

1шт.

62

2116-1518

STOPPER;FRONT WINDOW

desc: TAQUET D'ARRET

1шт.

63

2114-1854

SHIM;STOPPER 1.2T

desc: CALE

1шт.

74

2530-1605B

HARNESS

desc: FAISCEAU

1шт.

75

2891-1323

PLATE;CONNECTOR

desc: PLAQUE

1шт.

76

S3450343

SCREW M3X0.5X10

desc: VIS

2шт.

77

S5020013

WASHER;PLAIN M3

desc: RONDELLE

2шт.

78

S4010003

NUT M3X0.5

desc: ECROU

2шт.

84

2161-2211

STOPPER;RUBBER

desc: ARRET

2шт.

86

S3450993

SCREW M6X1.0X25

desc: VIS

4шт.

87

2514-1013

HOLDER;GLASS

desc: POSSESSEUR

2шт.

90

2161-2208

STOPPER;RUBBER(R.H)

desc: ARRET

1шт.

91

2140-1338

PIPE;SPACER

desc: TUYAU

4шт.

93

2114-1058D52

WASHER M6

desc: RONDELLE

4шт.

94

2161-2207

STOPPER;RUBBER(L.H)

desc: ARRET

1шт.

95

2161-2210

STOPPER;RUBBER(R.H)

desc: ARRET

1шт.

96

2161-2209

STOPPER;RUBBER(L.H)

desc: ARRET

1шт.

102

2114-1855

NOZZLE ASS'Y

desc: RONDELLE

1шт.

103

S3643359

SCREW;TAPPING M4X12

desc: VIS

2шт.

120

2160-1307

CAP

desc: BOUCHON

4шт.

121

2161-2212

STOPPER;RUBBER

desc: ARRET

2шт.

131

2403-1072

COVER;WIPER MOTOR

desc: COUVERCLE

1шт.

133

2160-1004D50

BUSHING;RUBBER

desc: GARNISSAGE CAOUTCHOUC

2шт.

141

2621-3886B

COVER

desc: COUVERCLE

1шт.

142

2125-9058

LATCH(L.H)

desc: LOQUET

1шт.

143

2125-9059

LATCH(R.H)

desc: LOQUET

1шт.

146

S2203061

BOLT;SOCKET M5X0.8X14

desc: BOULON A 6 PANS CREUX

12шт.

149

2114-1898D2

WASHER M8

desc: RONDELLE

4шт.

150

2114-1058D45

WASHER

desc: RONDELLE

2шт.

Выбрано товаров: 68