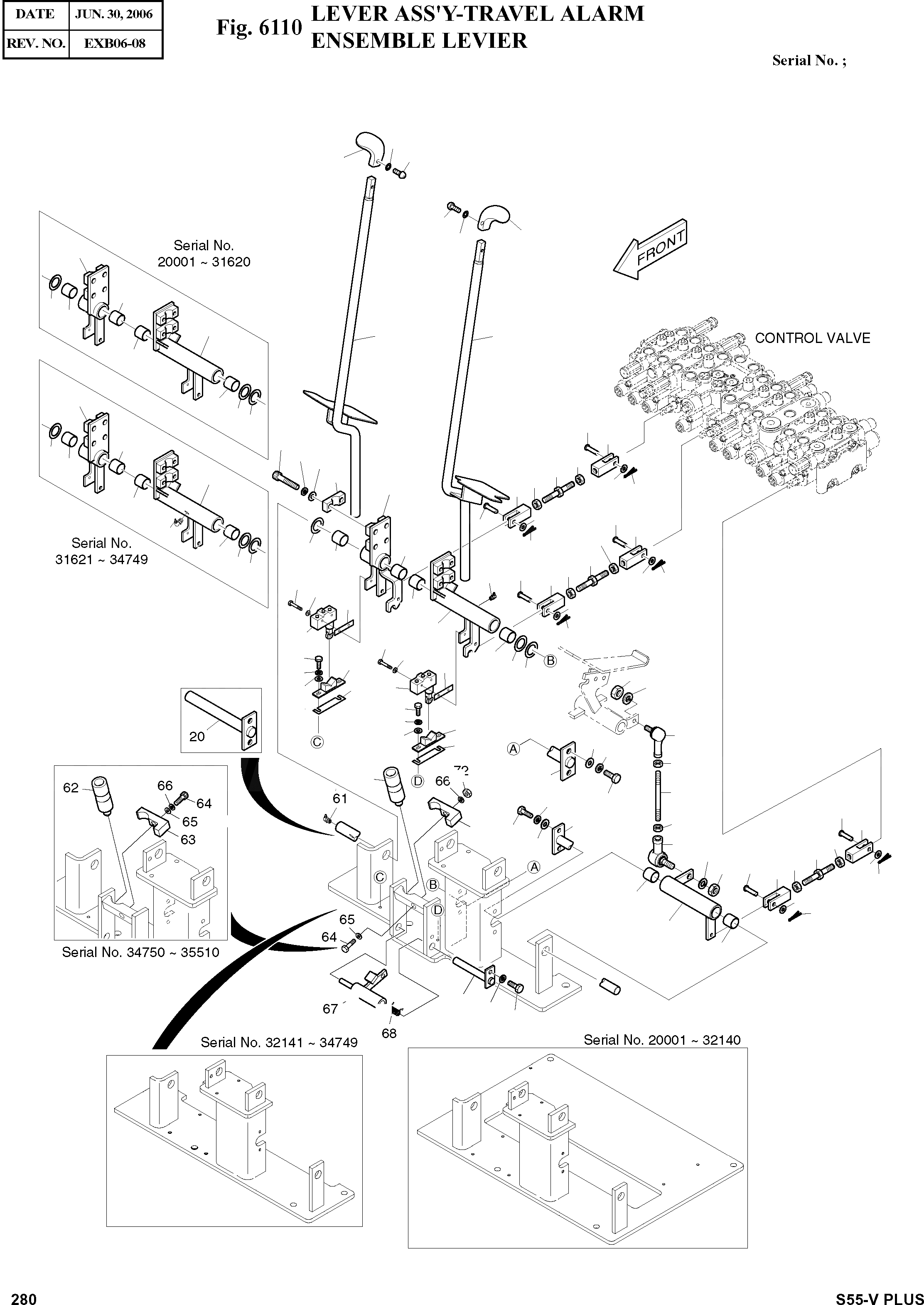
Запчасти Doosan Daewoo LEVER ASSY-TRAVEL ALARM OPTION PARTS

43A
43A
44A
44A
43B
43B
43B
43B
44B
44B
44B
44B
40A
40A
7
6
5
6
4
7
43
41
44
3
2
43
41
42
21
8
46
19
41
12
14
11
45
44
10
43
22
9
23
22
21
21
8
61
12
41
23
11
41
10
42
21
61
9
22
23
54
55
53
22
44
52
23
54
55
57
56
53
41
58
34
42
60
52
33
59
57
58
56
32
59
14
60
29
36
66
20
62
37
64
29
13
21
65
20
39
38
8
63
13
12
35
14
61
11
33
10
21
34
9
22
23
22
23
40
67
69
68
71
70
FIT
1:1
100%

Артикул

Название

Примечание

Количество

-

133-00160A

LEVER ASSY

SC: D

-2шт.

2

133-00108G

LEVER;TRAVEL

desc: LEVIER

1шт.

3

133-00109G

LEVER;TRAVEL

desc: LEVIER

1шт.

4

2132-1133B

GRIP;LEVER(L.H)

desc: POIGNEE

1шт.

5

2132-1134B

GRIP;LEVER(R.H)

desc: POIGNEE

1шт.

6

S2201766

BOLT M4X0.7X14

desc: BOULON A 6 PANS

2шт.

7

S5000113

WASHER;PLAIN

desc: RONDELLE PLATE

2шт.

8

2135-1136

YORK(R)

desc: ETRIER

3шт.

9

2135-1137

YORK(L)

desc: ETRIER

3шт.

10

2121-4004

NUT

desc: ECROU

3шт.

11

2136-1349D2

ROD

desc: TIGE

3шт.

12

S4012533

NUT

desc: ECROU

5шт.

13

S0508853

BOLT M8X1.25X20

desc: BOULON A 6PANS

4шт.

14

S5010513

WASHER;PLAIN

desc: RONDELLE

12шт.

19

S5102503

WASHER;SPRING M8

desc: RONDELLE ELASTIQUE

8шт.

20

123-00023

PIN

SERIAL: 20001-31620

1шт.

20

123-00023A

PIN

SERIAL: 31621

1шт.

21

2123-2258

PIN

desc: BROCHE

6шт.

22

S5000313

WASHER;PLAIN

desc: RONDELLE PLATE

6шт.

23

S5735051

PIN;SPLIT

desc: GOUPILLE FENDUE

6шт.

29

S5102503

WASHER;SPIRNG M8

desc: RONDELLE ELASTIQUE

4шт.

32

2138-9018

BALL;LINK

desc: BILLE

1шт.

33

S5102603

WASHER;SPRING M10

desc: RONDELLE ELASTIQUE

2шт.

34

S4012633

NUT

desc: ECROU

2шт.

35

2138-9017

BALL;LINK

desc: BILLE

1шт.

36

2121-1298

NUT

desc: ECROU

1шт.

37

2413-1007A

ROD

desc: TIGE

1шт.

38

S4012633

NUT

desc: ECROU

1шт.

39

123-00279

PIN;SWING

desc: GOUPILIE

1шт.

40

137-00061

LINK;BSW

desc: ARTICULATION

1шт.

40A

2110-1184D38

BUSH;DU

desc: . COUSSINET

2шт.

41

2114-1059D31

SHIM

desc: CALE

2шт.

42

2114-1059D265

SHIM

desc: CALE

1шт.

43

505-00014

BAR;DRIVE

SERIAL: 20001-31620

1шт.

43

505-00014A

BAR;DRIVE

SERIAL: 31621-34749

1шт.

43

505-00014B

BAR;DRIVE

SERIAL: 34750

1шт.

43A

2110-1184D38

BUSH;DU

SERIAL: 20001-31620

2шт.

43B

2109-9019

BEARING;NEDDLE

SERIAL: 31621

2шт.

44

505-00015

BAR;DRIVE

SERIAL: 20001-31620

1шт.

44

505-00015A

BAR;DRIVE

SERIAL: 31621-34749

1шт.

44

505-00015B

BAR;DRIVE

SERIAL: 34750

1шт.

44A

2110-1184D38

BUSH;DU

SERIAL: 20001-31620

2шт.

44B

2109-9019

BEARING;NEDDLE

SERIAL: 31621

2шт.

45

124-00229

CLAMP

desc: ATTACHE

4шт.

46

S2209261

BOLT M8X1.25X30

desc: BOULON A 6PANS

8шт.

52

549-00006

SWITCH;MICRO

desc: INTERRUPTEUR

2шт.

53

2191-3314

PLATE

desc: PLAQUE

2шт.

54

2120-2166D21

BOLT M4X0.7X25

desc: BOULON A 6PANS

4шт.

55

2114-1898D13

WASHER

desc: RONDELLE PLATE

4шт.

56

195-01859

BRACKET

desc: SUPPORT

2шт.

57

S0504853

BOLT M6X1.0X20

desc: BOULON A 6PANS

4шт.

58

S5102303

WASHER;SPRING M6

desc: RONDELLE ELASTIQUE

4шт.

59

S5010313

WASHER;PLAIN M6

desc: RONDELLE

4шт.

60

2114-1700D9

SHIM

desc: CALE

4шт.

61

S6710042

NIPPLE;GREASE

SERIAL: 31621

2шт.

62

2440-9149

CYLINDER

SERIAL: 34750

1шт.

63

2124-1288A

CLAMP

SERIAL: 34750-35510

1шт.

63

K1015150

CLAMP

SERIAL: 35511

1шт.

64

S2215766

BOLT;SOCKET M12X1.75X55

SERIAL: 34750-35510

1шт.

64

S0516066

BOLT M12X1.75X70

SERIAL: 35511

1шт.

65

S5010713

WASHER M12

SERIAL: 34750

1шт.

66

S5102703

WASHER;SPRING M12

SERIAL: 34750

1шт.

67

K1004353A

LEVER

SERIAL: 34750

1шт.

68

K1004352

SPRING;TORSION

SERIAL: 34750

1шт.

69

K1004358A

PIN

SERIAL: 34750

1шт.

70

S0508653

BOLT M8X1.25X16

SERIAL: 34750

1шт.

71

S5102503

WASHER;SPRING M8

SERIAL: 34750

1шт.

72

S4012733

NUT

SERIAL: 35511

1шт.

Выбрано товаров: 68