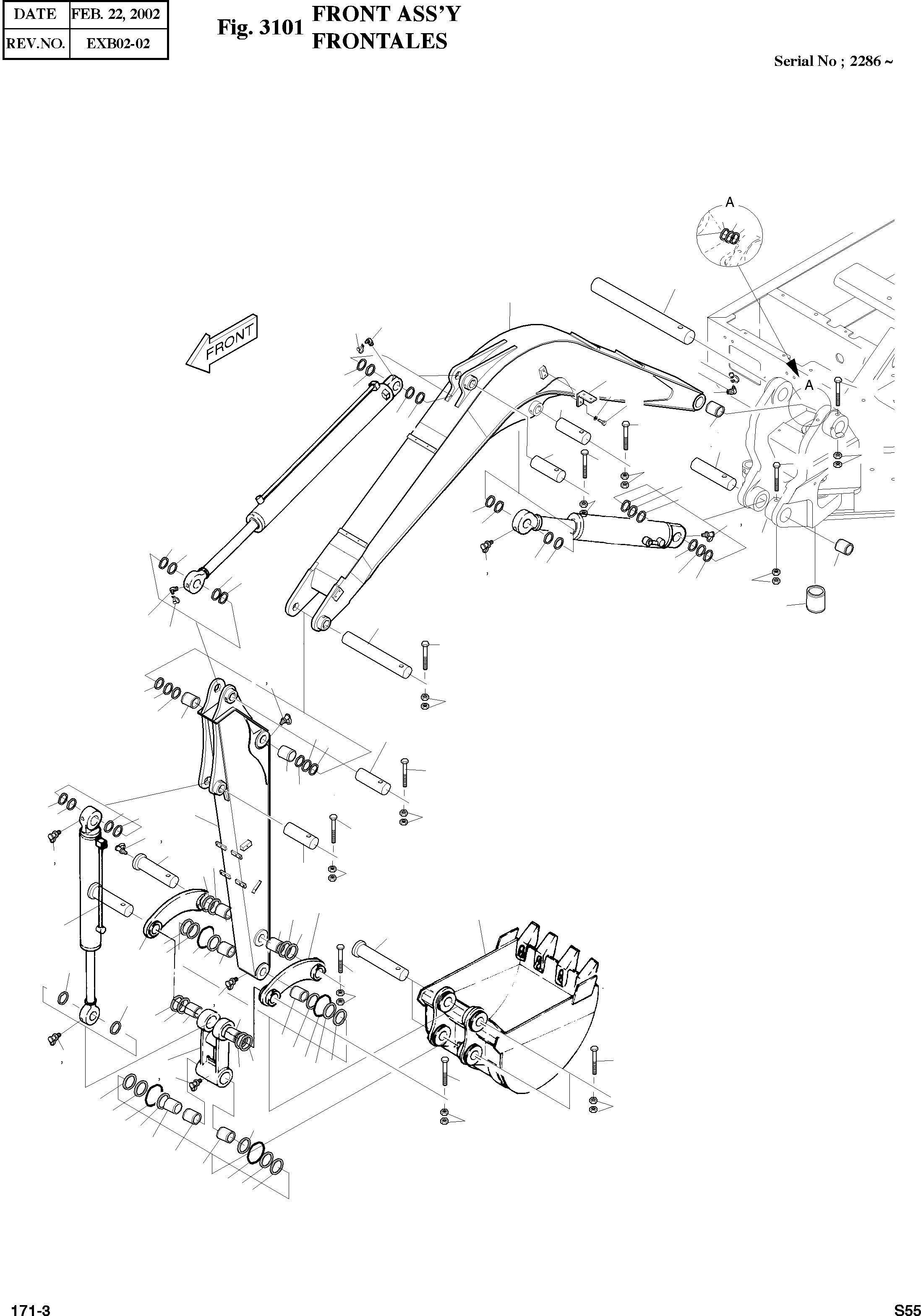
Запчасти Doosan Daewoo FRONT ASSY FRONT ATTACHMENTS

36
37
35
15
6
26
42
42
25
30
39
22
32
38
31
14
38
39
21
16
12
24
22
21
23
38
39
29
23
39
19
42
38
33
39
38
29
38
19
42
38
39
39
24
38
39
13
26
42
20
19
42
39
23
38
27
12
38
39
20
27
38
39
5
39
23
38
20
19
42
10
19
42
41
40
12
23
3
1
41
40
34
11
40
17
41
4
28
29
21
23
29
19
42
39
28
19
42
2
20
17
40
39
41
38
19
42
21
40
23
41
23
17
28
28
17
41
40
5B
5B
5A
5A
5A
5A
2A
2A
2B
2B
2C
38
6A
33B
33A
FIT
1:1
100%

Артикул

Название

Примечание

Количество

-

2700-1080A

FRONT ASS'Y-BOOM SWING

SC: D

-2шт.

1

2704-1483E

BUCKET ASS'Y-0.15§©

desc: ENSEMBLE DE GODET

1шт.

2

2155-1362C

LINK;PUSH

desc: COUTEAU LATERAL DROIT

1шт.

2A

2110-1397A

BUSHING

desc: . DOUILLE

2шт.

2B

2110-1398A

BUSHING

desc: . DOUILLE

2шт.

3

2155-1226A

LINK 3

SERIAL: 2286-2345

1шт.

3

2155-1226C

LINK 3

SERIAL: 2346

1шт.

4

2155-1225

LINK 2

SERIAL: 2286-2345

1шт.

4

2155-1225A

LINK 2

SERIAL: 2346

1шт.

5

2738-1002L

ARM ASS'Y

SERIAL: 2286-2475

1шт.

5

2738-1002M

ARM ASS'Y

SERIAL: 2476

1шт.

5A

2110-1398A

BUSH

desc: . DOUILLE

4шт.

5B

110-00010A

BUSH

desc: . DOUILLE

2шт.

6

2702-1006K

BOOM ASS'Y

desc: ENSEMBLE DE FLECH

1шт.

6A

2110-1395

BUSH(BOOM FOOT)

desc: . DOUILLE

2шт.

6B

2180-1106BD10

SEAL;DUST

desc: . PARE-POUSSIERES

2шт.

10

2123-1730

PIN 5

SERIAL: 2286-2475

1шт.

10

2123-1730A

PIN 5

SERIAL: 2476

1шт.

11

2123-1738

PIN 13

SERIAL: 2286-2475

1шт.

11

2123-1738A

PIN 13

SERIAL: 2476

1шт.

12

2123-2250

PIN(ARM CYL.BOOM CYL)

SERIAL: 2286-2475

3шт.

12

2123-2250A

PIN(ARM CYL.BOOM CYL)

SERIAL: 2476

3шт.

13

2123-2252

PIN(BOOM & ARM)

SERIAL: 2286-2475

1шт.

13

2123-2252A

PIN(BOOM & ARM)

SERIAL: 2476

1шт.

14

2123-2251B

PIN(BOOM CYL. ROD)

SERIAL: 2286-2475

1шт.

14

2123-2251C

PIN(BOOM CYL. ROD)

SERIAL: 2476

1шт.

15

2123-1728A

PIN

desc: BROCHE

1шт.

16

2123-2337A

PIN

desc: BROCHE

1шт.

17

180-00077D1

O-RING

desc: JOINT TORIQUE

4шт.

19

S6710040

NIPPLE;GREASE

desc: GRAISSEUR

9шт.

20

S0561453

BOLT M12X85

desc: BOULON A 6 PANS

4шт.

21

S0561853

BOLT M12X105

desc: BOULON A 6 PANS

5шт.

22

S0564353

BOLT M14X120

desc: BOULON A 6 PANS

2шт.

23

S4012733

NUT

desc: ECROU

18шт.

24

S4012833

NUT

desc: ECROU

4шт.

25

S6710100

NIPPLE;GREASE PT1/8 45

desc: GRAISSEUR

1шт.

26

S6710150

NIPPLE;GREASE PT1/8 90

desc: GRAISSEUR

2шт.

27

2180-1106BD1

SEAL;DUST

desc: PARE-POUSSIERES

2шт.

28

2180-1106BD11

SEAL;DUST

desc: PARE-POUSSIERES

6шт.

29

2180-1106BD12

SEAL;DUST

desc: PARE-POUSSIERES

4шт.

30

2195-3691A

BRACKET;LAMP

desc: SUPPORT

1шт.

31

S0508613

BOLT M8X1.25X16

desc: BOULON A 6 PANS

2шт.

32

S5102503

WASHER;SPRING

desc: RONDELLE ELASTIQUE

2шт.

33

2195-3098J

SWING BRACKET

SERIAL: 2286-2470

1шт.

33

2195-3098K

SWING BRACKET

SERIAL: 2471

1шт.

33A

2110-1193B

BUSH

desc: . DOUILLE

2шт.

33B

2110-1194A

BUSH

desc: . DOUILLE

1шт.

34

2123-2391

PIN

SERIAL: 2286-2475

2шт.

34

2123-2391A

PIN

SERIAL: 2476

2шт.

35

2180-1106BD10

SEAL;DUST

desc: PARE-POUSSIERES

2шт.

36

2114-1059D143

SHIM

desc: CALE

2шт.

37

2114-1059D144

SHIM

desc: CALE

2шт.

38

2114-1059D263

SHIM

desc: CALE

16шт.

39

2114-1059D264

SHIM

desc: CALE

16шт.

40

2114-1059D160

SHIM

desc: CALE

6шт.

41

2114-1059D161

SHIM

desc: CALE

6шт.

42

160-00020

CAP;GREASE NIPPLE

SERIAL: 2476

12шт.

Выбрано товаров: 57