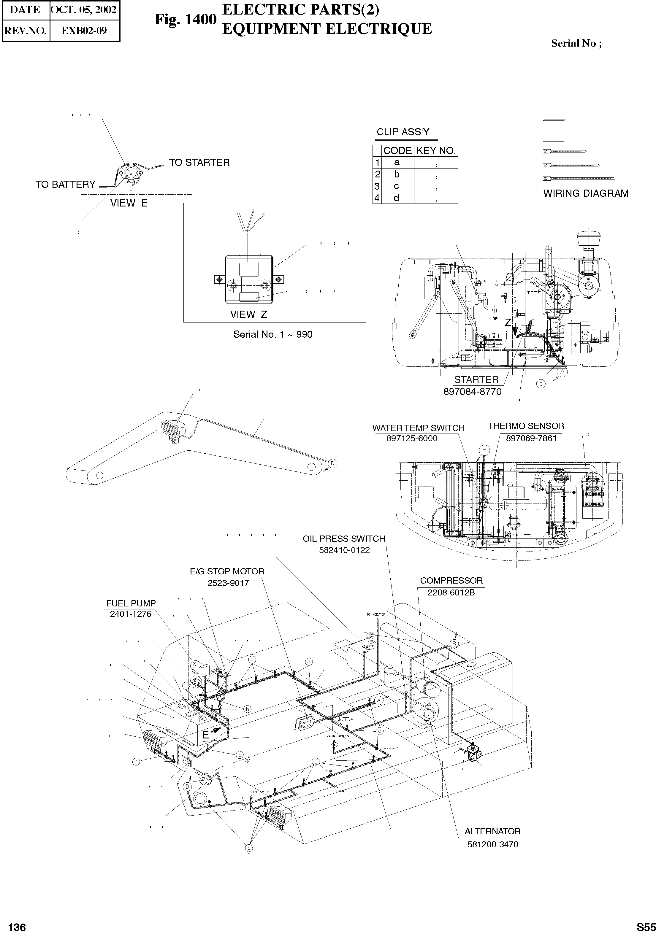
Запчасти Doosan Daewoo ELECTRIC PARTS(2) UPPER STRUCTURE

4A
5
6
7
8
69
53
48
52
54
49
52
31
55
50
52
18
61
52
51
77
78
27
28
29
30
62
63
64
65
19
21
4
45
46
33
47
73
56
57
58
59
60
9
1
70
72
20
22
71
35
36
34
37
43
2
41
38
39
40
48
2
41
3
42
75
3A
74
76
15
39
40
32
10
11
12
13
14
16
17
FIT
1:1
100%

Артикул

Название

Примечание

Количество

-

2500-1222

ELECTRIC ASS'Y

SC: D

-2шт.

1

2506-1104

BATTERY 12V 100AH

desc: BATTERIE

1шт.

2

2161-1061

CUSHION

desc: COUSSIN

3шт.

3

2534-9048

LAMP;HEAD

desc: LAMPE 24V 55W

2шт.

3A

2515-1016D2

BULB

desc: . AMPOULE

2шт.

4

2534-9048

LAMP;WORKING

desc: LAMPE 24V 55W

1шт.

4A

2515-1016D2

BULB

desc: . AMPOULE

1шт.

5

2544-9025

RELAY;BATTERY

desc: RELAIS BATTERIE

1шт.

6

S0509053

BOLT M8X1.25X25

desc: BOULON A 6 PANS

2шт.

7

S5102503

WASHER;SPRING M8

desc: RONDELLE ELASTIQUE

2шт.

8

S5010513

WASHER;PLAIN M8

desc: RONDELLE

2шт.

9

2527-9004

BREAKER;CIRCUIT 60A

desc: COUPE-CIRCUIT

1шт.

10

2120-1354

SCREW

desc: VIS

2шт.

11

2527-1023A

FUSIBLE LINK 0.55Q 7A

desc: FUSIBLE

1шт.

12

2197-1660

BRACKET

desc: SUPPORT

1шт.

13

S0508653

BOLT M8X1.25X16

desc: BOULON A 6 PANS

1шт.

14

S5102503

WASHER;SPRING M8

desc: RONDELLE ELASTIQUE

1шт.

15

1516-1519

HORN

SERIAL: 1-317

1шт.

15

2516-1121

HORN

SERIAL: 318

1шт.

16

S0509053

BOLT M8X1.25X10

desc: BOULON A 6 PANS

1шт.

17

S5102503

WASHER;SPRING M8

desc: RONDELLE ELASTIQUE

1шт.

18

2547-6028

SENSOR;WATER TEMP

desc: TRANSMETTEUR

1шт.

19

40901-04060

SENDER;FUEL

SERIAL: 1-2220

1шт.

19

547-00015

SENDER;FUEL

SERIAL: 2221

1шт.

20

40901-02310

PACKING

SERIAL: 1-2220

1шт.

21

S0502853

BOLT M5X0.8X10

desc: BOULON A 6 PANS

5шт.

22

S5100203

WASHER;SPRING M5

desc: RONDELLE ELASTIQUE

5шт.

27

2403-1073

COVER;STARTER RELAY

SERIAL: 1-990

1шт.

28

2160-1004D10

BUSHING;RUBBER d35

SERIAL: 1-990

1шт.

29

S0504453

BOLT M6X1.0X12

SERIAL: 1-990

2шт.

30

S5102303

WASHER;SPRING M6

SERIAL: 1-990

2шт.

31

2599-1124A

DIAGRAM;WIRING

SERIAL: 1-317

1шт.

31

2599-1124B

DIAGRAM;WIRING

SERIAL: 318-552

1шт.

31

2599-1124C

DIAGRAM;WIRING

SERIAL: 553-990

1шт.

31

2599-1124E

DIAGRAM;WIRING

SERIAL: 991

1шт.

32

2530-1701A

HARNESS;MAIN

SERIAL: 1-317

1шт.

32

2530-1701B

HARNESS;MAIN

SERIAL: 318-552

1шт.

32

2530-1701C

HARNESS;MAIN

SERIAL: 553-990

1шт.

32

2530-1701E

HARNESS;MAIN

SERIAL: 991-1510

1шт.

32

2530-1701G

HARNESS;MAIN

SERIAL: 1511-1585

1шт.

32

2530-1701H

HARNESS;MAIN

SERIAL: 1586-1914

1шт.

32

2530-1701I

HARNESS;MAIN

SERIAL: 1915-2220

1шт.

32

2530-1701J

HARNESS;MAIN

SERIAL: 2221-2968

1шт.

32

2530-1701K

HARNESS;MAIN

SERIAL: 2969

1шт.

33

2530-1653

HARNESS;WORKING LAMP

desc: FAISCEAU

1шт.

34

1550-1003

TERMINAL;BATTERY(-)

SERIAL: 1-726

1шт.

34

2550-1014D2

TERMINAL;BATTERY(-)

SERIAL: 727

1шт.

35

1550-1004

TERMINAL;BATTERY(+)

SERIAL: 1-726

1шт.

35

2550-1014D1

TERMINAL;BATTERY(+)

SERIAL: 727

1шт.

36

2160-1212

CAP;BATT.TERMINAL(+)

desc: CHAPEAU DE CAOUTCHOUC

1шт.

37

2160-1213

CAP;BATT.TERMINAL(-)

desc: BOUCHON

1шт.

38

2553-1261D4

CABLE;BATT-EARTH L450

desc: FIXATION DE POMPE

1шт.

39

S0508653

BOLT M8X1.25X16

desc: BOULON A 6 PANS

2шт.

40

S5102503

WASHER;SPRING M8

desc: RONDELLE ELASTIQUE

2шт.

41

S5010513

WASHER;PLAIN M8

desc: RONDELLE

2шт.

42

2553-1275D29

CABLE;BATT-RELAY L300

desc: CABLE

1шт.

43

2553-1275D33

CABLE;RELAY-STARTER L4000

SERIAL: 1-287

1шт.

43

2553-1275D44

CABLE;RELAY-STARTER L4000

SERIAL: 288

1шт.

45

S0711353

BOLT M10X1.25X10

desc: BOULON A 6 PANS

1шт.

46

S5102603

WASHER;SPRING M10

desc: RONDELLE ELASTIQUE

1шт.

47

2170-9008

INDICATOR

SERIAL: 1-1000

1шт.

47

2170-1003

INDICATOR

SERIAL: 1001

1шт.

48

2124-1509D1

CLIP d12/M8

SERIAL: 1-1585

6шт.

48

2124-1509D1

CLIP d12/M8

SERIAL: 1586

7шт.

49

2124-1509D2

CLIP d18/M8

desc: ATTACHE

8шт.

50

2124-1509D3

CLIP d24/M8

desc: ATTACHE

4шт.

51

2124-1509D5

CLIPd36/M8

desc: ATTACHE DE TUYAU

7шт.

52

2121-1305

NUT M8X1.25

desc: ECROU

25шт.

53

2124-1622D1

CLIP;BAND L150

desc: ATTACHE

10шт.

54

2124-1622D2

CLIP;BAND L250

SERIAL: 1-287

10шт.

54

2124-1622D2

CLIP;BAND L250

SERIAL: 288

12шт.

55

2124-1622D3

CLIP;BAND L280

desc: ATTACHE

10шт.

56

2197-1884A

BRACKET;HOUSING

SERIAL: 1-525

1шт.

57

S0508653

BOLT M8X1.25X16

SERIAL: 1-525

1шт.

58

S5102503

WASHER;SPRING M8

SERIAL: 1-525

1шт.

59

2195-3500

BRACKET;HOUSING

SERIAL: 1-525

2шт.

60

S0504453

BOLT M6X1.0X12

SERIAL: 1-525

2шт.

61

S5102503

WASHER;SPRING M6

SERIAL: 1-525

2шт.

62

2544-6021

RELAY;STARTER

SERIAL: 1-990

1шт.

63

S0508653

BOLT M8X1.25X16

SERIAL: 1-990

2шт.

64

S5102503

WASHER;SPRING M8

SERIAL: 1-990

2шт.

65

S5010513

WASHER;PLAIN M8

SERIAL: 1-990

2шт.

69

2161-2302

PLATE;RUBBER

desc: PROFILE CAOUTCHOUC

1шт.

70

2549-9096

SWITCH;TOGGLE

SERIAL: 288-647

1шт.

71

2114-1683

WASHER

SERIAL: 288-647

1шт.

72

2530-1723

HARNESS;TOGGLE

SERIAL: 288-647

1шт.

73

2181-2690

ADAPTER;FILTER

SERIAL: 1001

1шт.

74

2544-1023

RELAY;GLOW

SERIAL: 1511

1шт.

75

S0504453

BOLT

SERIAL: 1511

2шт.

76

S5102303

WASHER;SPRING

SERIAL: 1511

2шт.

77

S3450823

SCREW M5X0.8X10

SERIAL: 1915

1шт.

78

S5100203

WASHER;SPRING

SERIAL: 1915

1шт.

Выбрано товаров: 92