Запчасти Doosan Daewoo ELECTRIC WIRING BODY PARTS

21
3
26
18
22
23
19
22
23
20
22
23
23
1
24
20
25
8
15
12
13
14
11
15
16
17
27
4
6
8
12
13
14
9
5
7
12
13
14
10
15
16
17
15
16
17
2
22
FIT
1:1
100%

Артикул

Название

Примечание

Количество

-

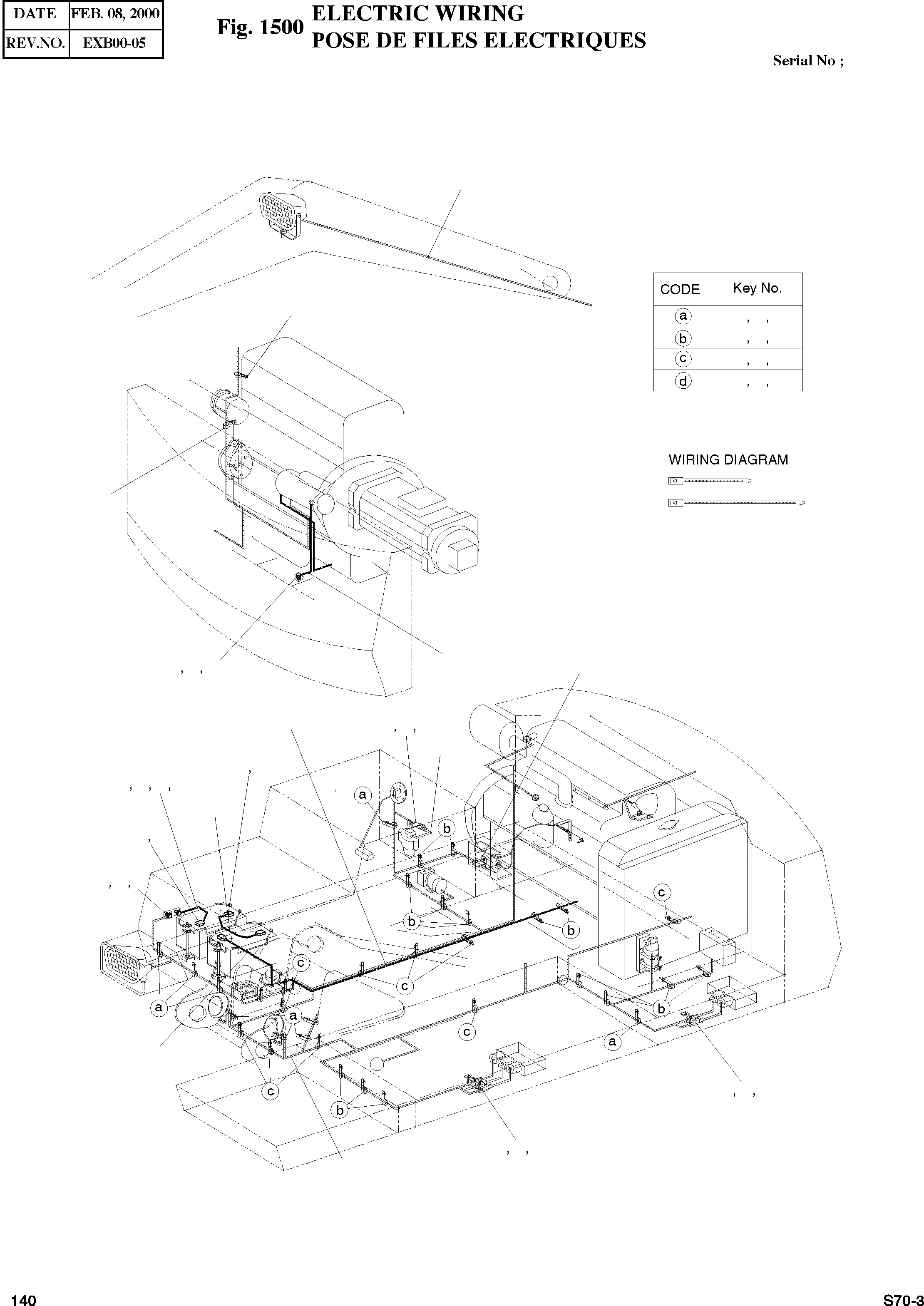
2500-1146

ELECTRIC PARTS

SC: D

-2шт.

1

2599-1113

WIRING DIAGRAM

SERIAL: 1-8

1шт.

1

2599-1113A

WIRING DIAGRAM

SERIAL: 9

1шт.

2

2530-1567A

HARNESS;MAIN

SERIAL: 1-8

1шт.

2

2530-1567B

HARNESS;MAIN

SERIAL: 9-272

1шт.

2

2530-1567C

HARNESS;MAIN

SERIAL: 273

1шт.

3

2530-1435

HARNESS;WORKING LAMP

desc: FAISCEAU

1шт.

4

1550-1004

TERMINAL;BATTERY(+)

SERIAL: 1-252

2шт.

4

2550-1014D1

TERMINAL;BATTERY(+)

SERIAL: 253

2шт.

5

1550-1003

TERMINAL;BATTERY(-)

SERIAL: 1-252

2шт.

5

2550-1014D2

TERMINAL;BATTERY(-)

SERIAL: 253

2шт.

6

2160-1212

CAP;BATT.TERMINAL(+) RED

desc: CHAPEAU DO COSSE DE BATTERIE

2шт.

7

2160-1213

CAP;BATT.TERMINAL(-) BLACK

desc: CHAPEAU DO COSSE DE BATTERIE

2шт.

8

2553-1275D12

CABLE;BATT-EARTH 30B-L400

desc: CABLE

1шт.

9

2553-1275D13

CABLE;BATT-BATT 30R-L200

desc: CABLE

1шт.

10

2553-1275D14

CABLE;BATT-BATT RELAY 30R-L400

desc: CABLE BATTERIE A BATTERIE

1шт.

11

2553-1275D20

CABLE;BATT RY-STARTER 30R-L2100

desc: CABLE

1шт.

12

S0511653

BOLT M10X1.5X16

desc: BOULON A 6 PANS

3шт.

13

S5102603

WASHER;SPRING M10

desc: RONDELLE ELASTIQUE

3шт.

14

S5010613

WASHER;PLAIN M10

desc: RONDELLE PLATE

3шт.

15

2195-3500

BRACKET;HOUSING

SERIAL: 1-8

7шт.

15

2195-3500

BRACKET;HOUSING

SERIAL: 9

5шт.

16

S3450953

SCREW M6X1.0X12

SERIAL: 1-8

6шт.

16

S3450953

SCREW M6X1.0X12

SERIAL: 9

4шт.

17

S5102303

WASHER;SPRING M6

SERIAL: 1-8

6шт.

17

S5102303

WASHER;SPRING M6

SERIAL: 9

4шт.

18

2124-1509D1

CLIP Ґх12 M8

SERIAL: 1-8

9шт.

18

2124-1509D1

CLIP Ґх12 M8

SERIAL: 9

8шт.

19

2124-1509D2

CLIP Ґх18 M8

desc: ATTACHE

14шт.

20

2124-1509D3

CLIP Ґх24 M8

desc: ATTACHE

9шт.

21

2124-1509D4

CLIP Ґх30 M8

desc: ATTACHE

3шт.

22

S4012533

NUT M8X1.25

desc: ECROU

34шт.

22

S4012533

NUT M8X1.25

desc: ECROU

33шт.

23

S5102503

WASHER;SPRING M8

desc: RONDELLE ELASTIQUE

34шт.

23

S5102503

WASHER;SPRING M8

desc: RONDELLE ELASTIQUE

33шт.

24

2124-1084D2

CLIP;BAND L150

desc: ATTACHE

30шт.

25

2124-1084D3

CLIP;BAND L250

desc: ATTACHE

15шт.

26

2124-1353D3

CLIP Ґх16 M10

desc: ATTACHE

1шт.

27

2530-1544

HARNESS;PILOT FILTER SW

desc: FAISCEAU

1шт.

Выбрано товаров: 39