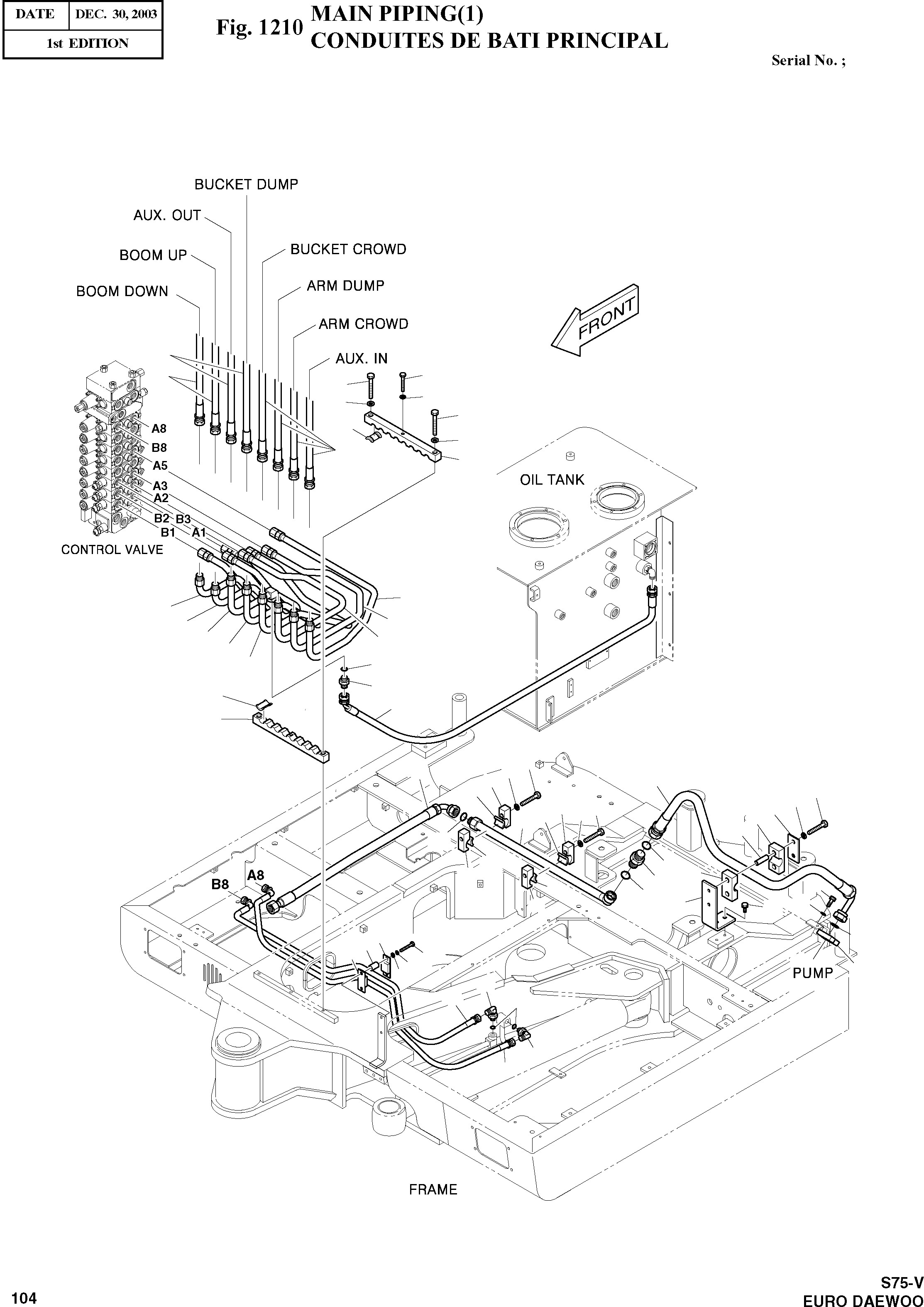
Запчасти Doosan Daewoo MAIN PIPING(1) BODY PARTS

55
45
84
81
46
82
81
87
82
55
77
16
10
12
11
17
13
15
37
14
38
87
56
18
19
50
4
47
20
21
30
4
27
20
19
4
21
28
9
29
49
49
21
28
20
61
43
21
62
44
63
20
64
22
42
23
24
22
25
48
26
65
68
40
65
57
FIT
1:1
100%

Артикул

Название

Примечание

Количество

-

400-01026A

MAIN PIPING

SC: D

-2шт.

4

S5102703

WASHER;SPRING M12

desc: RONDELLE ELASTIQUE

4шт.

9

140-01268C

PIPE

desc: TUYAU

1шт.

10

140-01257E

PIPE(BM DOWN)

desc: TUYAU

1шт.

11

140-01258E

PIPE(BM UP)

desc: TUYAU

1шт.

12

140-01259C

PIPE(AM CR)

desc: TUYAU

1шт.

13

140-01260C

PIPE(AM DP)

desc: TUYAU

1шт.

14

140-01261C

PIPE(BK CR)

desc: TUYAU

1шт.

15

140-01262C

PIPE(BK DP)

desc: TUYAU

1шт.

16

140-01263C

PIPE(OPT IN)

desc: TUYAU

1шт.

17

140-01264B

PIPE(OPT OUT)

desc: TUYAU

1шт.

18

124-00259C

CLAMP;PIPE

desc: FIXATION DE TUYAU

1шт.

19

S0561253

BOLT M12X1.75X75

desc: BOULON

2шт.

20

2124-1601A

CLAMP;PIPE

desc: FIXATION DE TUYAU

4шт.

21

2161-2250A

RUBBER

desc: CAOUTCHOUC

4шт.

22

124-00260

CLAMP;HOSE

desc: FIXATION DE TUYAU

4шт.

23

114-00528

SPACER

desc: ENTRETOISE

2шт.

24

S0509753

BOLT M8X1.25X55

desc: BOULON

2шт.

25

S5102503

WASHER;SPRING M8

desc: RONDELLE ELASTIQUE

2шт.

26

S5010513

WASHER;PLAIN M8

desc: RONDELLE PLATE

2шт.

27

191-01452

PLATE;CLAMP

desc: PLAQUE

1шт.

28

124-00147

CLAMP;HOSE

desc: FIXATION DE TUYAU

2шт.

29

114-00358

SPACER

desc: ENTRETOISE

2шт.

30

S0561253

BOLT M12X1.75X75

desc: BOULON

2шт.

37

S8000181

O-RING

desc: JOINT TORIQUE

1шт.

38

2181-1126D6

ADAPTER PFO1/2-PF1/2

desc: ADAPTEUR

1шт.

40

S8000141

O-RING

desc: JOINT TORIQUE

2шт.

42

2181-9078

FLANGE

desc: BRIDE

2шт.

43

120-00083

BOLT

desc: BOULON DE PLOT

4шт.

44

S5110601

WASHER;SPRING

desc: RONDELLE ELASTIQUE

4шт.

45

S0556453

BOLT M8X1.25X55

desc: BOULON

1шт.

46

S5010513

WASHER;PLAIN M8

desc: RONDELLE PLATE

1шт.

47

DS2018085

HOSE

desc: TUYAU FLEXIBLE

1шт.

48

2180-1026D19

O-RING

desc: JOINT TORIQUE

1шт.

49

S8030121

O-RING

desc: JOINT TORIQUE

2шт.

50

DS2013355

HOSE

desc: TUYAU FLEXIBLE

1шт.

55

DS2053782

HOSE PF1/2-1430L

desc: TUYAU FLEXIBLE

6шт.

56

DS2054250

HOSE PF1/2-1400L

desc: TUYAU FLEXIBLE

1шт.

57

2184-1036D271

HOSE PF3/8-1700L

desc: TUYAU FLEXIBLE

1шт.

61

2181-2627D1

ADAPTER

desc: ADAPTEUR

1шт.

62

S8000241

O-RING

desc: JOINT TORIQUE

1шт.

63

195-02134A

BRACKET

desc: SUPPORT

1шт.

64

2120-2196D2

BOLT;SET M10X1.5X25

desc: BOULON

2шт.

65

2181-1702D5

ELBOW PFO3/8-PF3/8

desc: COUDE

2шт.

68

2184-1036D40

HOSE PF3/8-1550L

desc: TUYAU FLEXIBLE

1шт.

77

124-00277A

CLAMP;PIPE

desc: FIXATION DE TUYAU

1шт.

81

S0559053

BOLT M10X1.5X75

desc: BOULON

2шт.

82

S5010513

WASHER;PLAIN M8

desc: RONDELLE PLATE

2шт.

84

DS2053783

HOSE PF1/2-1050L

desc: TUYAU FLEXIBLE

2шт.

87

161-00313

RUBBER

desc: CAOUTCHOUC

16шт.

Выбрано товаров: 50