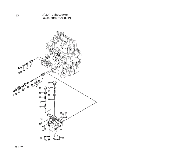
Запчасти Hitachi EX120-5 039 VALVE;CONTROL (2;10) 01 PUMP

Схема запчастей Hitachi EX120-5 - 039 VALVE;CONTROL (2;10) 01 PUMP
FIT
1:1
100%

Артикул

Название

Примечание

Количество

4366958

VALVE;CONTROL

1шт.

9

985099

* O-RING

2шт.

16

0669502

* PLUG

2шт.

16A

0669503

** PLUG

1шт.

16B

4506408

** O-RING

1шт.

20

4506424

* O-RING

1шт.

22

4506418

* O-RING

1шт.

29

4506412

* O-RING

1шт.

41

0669601

* SEAT;VALVE ASS'Y

1шт.

41A

0669602

** SEAT;VALVE

1шт.

41B

0669603

** VALVE;CHECK

1шт.

41C

0669604

** SPRING

1шт.

41D

0669605

** PLUG

1шт.

41E

4506408

** O-RING

1шт.

46

0669606

* SPRING

1шт.

47

0669607

* BUSHING

1шт.

48

0669608

* RING;BACK-UP

2шт.

50

0669609

* SPRING

4шт.

54

0669610

* VALVE;CHECK

4шт.

55

0669611

* SEAT;SPRING

4шт.

56

0669612

* PLATE

1шт.

57

0669613

* SPOOL

1шт.

58

0669614

* PLUG

2шт.

58A

0669615

** PLUG

1шт.

58B

957366

** O-RING

1шт.

59

0669616

* WASHER

1шт.

60

0669617

* SPRING

1шт.

61

0669618

* PLUG

1шт.

62

0669619

* SPOOL

1шт.

65

0669620

* SPRING

1шт.

66

0669621

* PLUG

1шт.

71

0411804

* BOLT;SOCKET

7шт.

75

0669622

* WASHER

1шт.

83

0669623

* FILTER

1шт.

84

0412407

* SCREW

1шт.

88

0669624

* O-RING

5шт.

89

0669625

* RING;BACK-UP

5шт.

178

0411912

* BOLT;SOCKET

6шт.

Выбрано товаров: 38