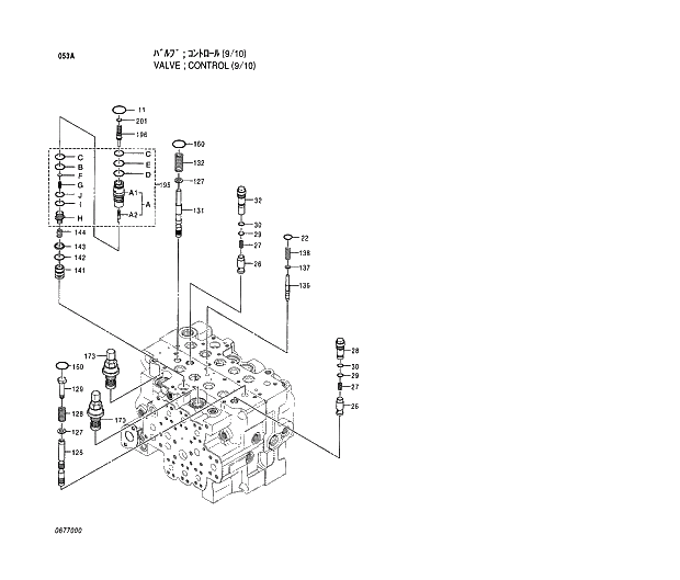
Запчасти Hitachi EX120-5 053 VALVE;CONTROL (9;10) 03 VALVE

Схема запчастей Hitachi EX120-5 - 053 VALVE;CONTROL (9;10) 03 VALVE
FIT
1:1
100%

Артикул

Название

Примечание

Количество

4366958

VALVE;CONTROL

1шт.

11

0309402

* O-RING

1шт.

22

4506418

* O-RING

1шт.

26

0669901

* VALVE;CHECK

2шт.

27

0309413

* SPRING

2шт.

28

0669902

* PLUG

1шт.

29

4506412

* O-RING

2шт.

30

0309416

* RING;BACK-UP

2шт.

32

0670301

* PLUG

1шт.

126

0670302

* SPOOL

1шт.

127

0670303

* WASHER

2шт.

128

0670304

* SPRING

1шт.

129

0670305

* BOLT

1шт.

131

0670306

* SPOOL

1шт.

132

0670307

* SPRING

1шт.

136

0670308

* SPOOL

1шт.

137

0670309

* WASHER

1шт.

138

0670310

* SPRING

1шт.

141

0670101

* VALVE;HOLDING

1шт.

142

0412210

* O-RING

1шт.

143

0412211

* RING;BACK-UP

1шт.

144

0412212

* SPRING

1шт.

160

0393902

* O-RING

2шт.

170

4372684

* VALVE;RELIEF

1шт.

173

4372683

* VALVE;RELIEF

1шт.

195

4372678

* BODY

1шт.

195A

0670311

** BODY ASS'Y

1шт.

195A1

+++++++

*** BODY

1шт.

195A2

+++++++

*** SPOOL

1шт.

195B

0670103

** RING;BACK-UP

1шт.

195C

4506420

** O-RING

2шт.

195D

4509181

** O-RING

1шт.

195E

0670104

** RING;BACK-UP

1шт.

195F

0670105

** WASHER

1шт.

195G

0670106

** SPRING

1шт.

195H

0670107

** PLUG

1шт.

195I

4509180

** O-RING

1шт.

195J

4297661

** RING;BACK-UP

1шт.

196

0670312

* SCREW

1шт.

201

4506409

* O-RING

1шт.

Выбрано товаров: 40