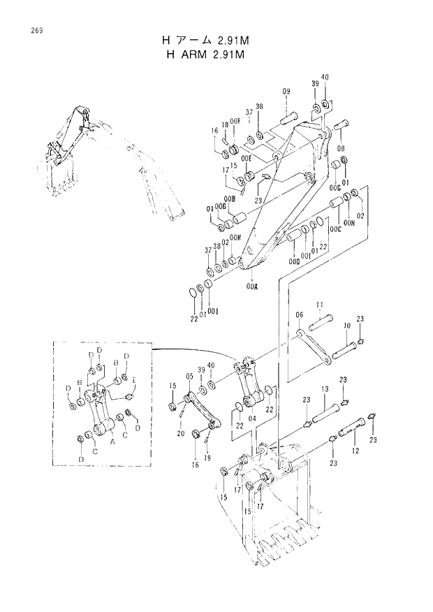
Запчасти Hitachi EX200H-3 269 H ARM (2.91M). 03FRONT

Схема запчастей Hitachi EX200H-3 - 269 H ARM (2.91M). 03FRONT
FIT
1:1
100%

Артикул

Название

Примечание

Количество

00A

6014617

* ARM

1шт.

00A-I

7029450

ARM ASS'Y

1шт.

00B

4123816

* SPACER

1шт.

00C

4123814

* SPACER

1шт.

00D

4123815

* SPACER

1шт.

00E

4197035

* STOPPER

1шт.

00F

4197034

* STOPPER

1шт.

00G

3036976

* BUSHING

Y -78366

2шт.

00G

3068597

* BUSHING

078367 -

2шт.

00H

4196106

* BUSHING

2шт.

00I

4249850

* BUSHING

2шт.

01

4067902

SEAL;DUST

4шт.

02

4084578

SEAL;DUST

2шт.

04

8049857

LINK ASS'Y

1шт.

04A

1016063

* LINK

1шт.

04B

3048327

* BUSHING

2шт.

04C

4249848

* BUSHING

2шт.

04D

4067902

* SEAL;DUST

6шт.

04E

J75481

* FITTING;GREASE

2шт.

05

8061523

LINK

1шт.

06

8061525

LINK

1шт.

08

3048360

PIN

1шт.

09

3036970

PIN

1шт.

10

3036971

PIN

1шт.

11

3036973

PIN

1шт.

12

3041200

PIN

1шт.

13

3041201

PIN

1шт.

15

4098712

RING

4шт.

16

4098716

RING

2шт.

17

4098713

PIN

3шт.

18

4098717

PIN

1шт.

19

4106307

PIN

1шт.

20

4109669

PIN

1шт.

22

4089028

O-RING

4шт.

23

J75481

FITTING;GREASE

7шт.

37

4097354

SHIM 1.2

2шт.

38

4097355

SHIM 2.3

2шт.

39

4114817

SHIM 1.0

2шт.

40

4114816

SHIM 2.3

2шт.

Выбрано товаров: 39