Запчасти Hitachi EX210H-5 275 TROPICAL COVER SELECT 01 UPPERSTRUCTURE

Схема запчастей Hitachi EX210H-5 - 275 TROPICAL COVER SELECT 01 UPPERSTRUCTURE
FIT
1:1
100%

Артикул

Название

Примечание

Количество

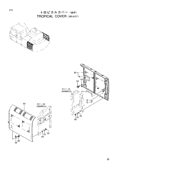
00

5004828

DOOR

1шт.

02

5004829

DOOR

1шт.

02A

4361637

* DOOR LOCK<for service parts>

1шт.

02A

4361763

* LOCK<for assembly of machine>

I

1шт.

04

A590110

WASHER;PLANE

8шт.

05

A590910

WASHER;SPRING

8шт.

06

J950010

NUT

8шт.

08

4175254

STOPPER

2шт.

09

J020614

BOLT;SEMS

4шт.

11

4341788

STAY

1шт.

12

A590108

WASHER;PLANE

1шт.

13

4022697

PIN;LOCK

1шт.

Выбрано товаров: 12