Качественные детали и логистика
Оригинальные и аналоговые запчасти с доставкой по России, Казахстану и Беларуси
©2022 PartSell ООО "Система" ИНН 2463123282 ОГРН 1212400004838
Центральный офис: г. Красноярск, Академика Киренского, д.87, пом.4
Телефон: 8 (800) 777-65-74 Email: zakaz@partsell.ru
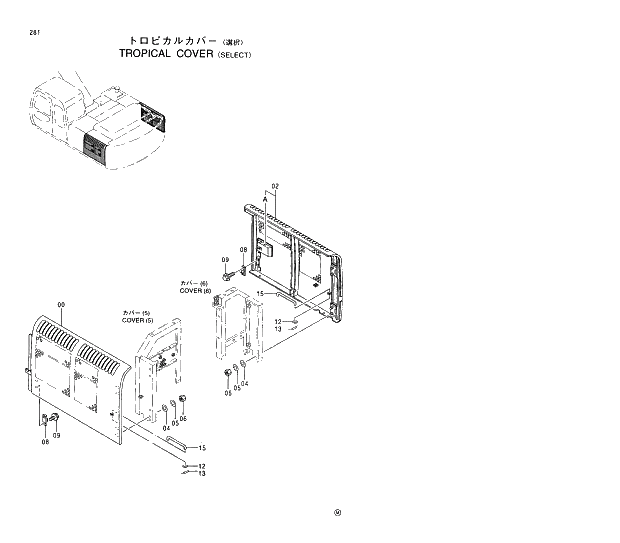
281 TROPICAL COVER SELECT
№
Артикул
Название
Примечание
Количество
00
5004630
DOOR
1шт.
02
5004633
02A
4361637
* DOOR LOCK<for service parts>
4361763
* DOOR LOCK<for assembly of machine>
I
04
A590110
WASHER;PLANE
8шт.
05
A590910
WASHER;SPRING
06
J950010
NUT
08
4175254
STOPPER
2шт.
09
J020614
BOLT;SEMS
4шт.
12
A590108
13
4022697
PIN;LOCK
15
4385171
STAY
Выбрано товаров: 0