Запчасти Hitachi ZX280LCN 001 FRAME UPPERSTRUCTURE

Схема запчастей Hitachi ZX280LCN - 001 FRAME UPPERSTRUCTURE
FIT
1:1
100%

Артикул

Название

Примечание

Количество

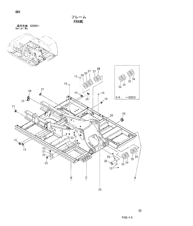
00

5007118

FRAME;MAIN

1шт.

00A

W

* PIPE

1шт.

00B

W

* PIPE

1шт.

00C

W

* STEP

1шт.

01

4255799

COVER

1шт.

02

4161735

PACKING

1шт.

03

J021025

BOLT;SEMS

0

2шт.

03

D

BOLT;SEMS

T D03/05 -

2шт.

@111

05

4191977

BUSHING;RUBBER

1шт.

08

4208279

BUSHING;RUBBER

1шт.

13

J950020

NUT

4шт.

15

4355382

PIN;KNOCK

3шт.

18

4200176

BUSHING;RUBBER

1шт.

19

4255530

BUSHING;RUBBER

3шт.

21

4509404

BUSHING;RUBBER

1шт.

22

4345810

BUSHING;RUBBER

1шт.

23

4257181

BUSHING;RUBBER

1шт.

25

4435127

PIN;STOPPER

2шт.

26

4430658

BUSHING;RUBBER

1шт.

27

R

PLATE;THRUST 1.0mm

2шт.

28

R

PLATE;THRUST 2.0mm

2шт.

30

R

PLATE;THRUST 1.5mm

1шт.

31

4389040

BUSHING;RUBBER

1шт.

32

3075546

PIN

2шт.

33

431578

CORK

2шт.

34

R

PLATE;THRUST 1.0mm

Y -20012

4шт.

34

R

PLATE;THRUST 1.0mm

020013 -

4шт.

35

R

PLATE;THRUST 2.0mm

Y -20012

4шт.

35

R

PLATE;THRUST 2.0mm

020013 -

4шт.

Выбрано товаров: 30