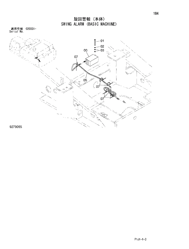
Запчасти Hitachi ZX450-3 184_SWING ALARM (BASIC MACHINE) (020001 -). 01 UPPERSTRUCTURE

Схема запчастей Hitachi ZX450-3 - 184_SWING ALARM (BASIC MACHINE) (020001 -). 01 UPPERSTRUCTURE
FIT
1:1
100%

Артикул

Название

Примечание

Количество

0

4179752

BUZZER

1шт.

1

J900800

BOLT

2шт.

2

A590908

WASHER;SPRING

2шт.

3

A590108

WASHER;PLANE

4шт.

5

3110545

HARNESS;WIRE

1шт.

7

4055312

CLIP;BAND

6шт.

Выбрано товаров: 6