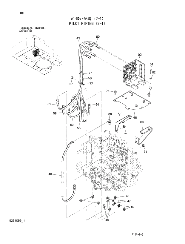
Запчасти Hitachi ZX470R-3 101_PILOT PIPING (2-1) (020001 -). 01 UPPERSTRUCTURE

Схема запчастей Hitachi ZX470R-3 - 101_PILOT PIPING (2-1) (020001 -). 01 UPPERSTRUCTURE
FIT
1:1
100%

Артикул

Название

Примечание

Количество

0

4634207

VALVE;SHUTTLE

T

1шт.

@111

0

4718276

VALVE;SHUTTLE

1шт.

1

J781040

BOLT;SOCKET

4шт.

2

A590110

WASHER;PLANE

4шт.

8

4208913

ELBOW;S

1шт.

08A

4509180

* O-RING

1шт.

46

A852133

ADAPTER;S

7шт.

46A

4509180

* O-RING

1шт.

47

A852433

TEE;S

2шт.

47A

4509180

* O-RING

1шт.

48

4642214

HOSE

1шт.

49

4634365

HOSE

1шт.

50

4634368

HOSE

1шт.

51

4634370

HOSE

1шт.

52

4634371

HOSE

1шт.

53

4634374

HOSE

1шт.

54

4634376

HOSE

1шт.

56

4190291

CLIP

1шт.

57

J271025

BOLT;SEMS

1шт.

57A

J901025

* BOLT

1шт.

57B

J222010

* WASHER

1шт.

59

4442429

HOSE

2шт.

68

8103066

PLATE

1шт.

69

8103064

BRACKET

1шт.

70

8103065

BRACKET

1шт.

71

J271230

BOLT;SEMS

10шт.

71A

J901230

* BOLT

1шт.

71B

J222012

* WASHER

1шт.

77

4055312

CLIP;BAND

2шт.

Выбрано товаров: 30