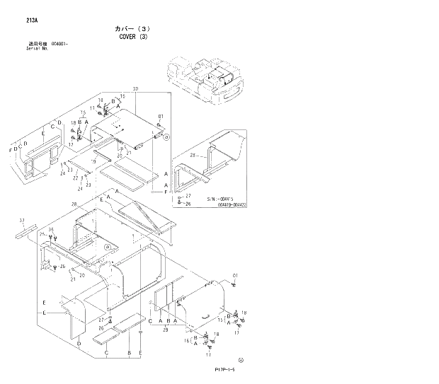
Запчасти Hitachi ZX650H 213 COVER (3) 01 UPPERSTRUCTURE

Схема запчастей Hitachi ZX650H - 213 COVER (3) 01 UPPERSTRUCTURE
FIT
1:1
100%

Артикул

Название

Примечание

Количество

01

J011025

BOLT;SEMS

0

12шт.

01

J271025

BOLT;SEMS

T D03/05 -

12шт.

@111

15

4361438

CATCH

2шт.

15A

3074568

* CATCH

1шт.

15B

3021131

* ANCHOR

1шт.

16

4231750

CATCH

2шт.

16A

3044290

* CATCH

1шт.

16B

3021131

* ANCHOR

1шт.

17

J020825

BOLT;SEMS

0

8шт.

17

J260825

BOLT;SEMS

T D03/05 -

8шт.

@222

18

J460825

SCREW;SEMS

8шт.

19

9756164

STAY

1шт.

20

A590116

WASHER;PLANE

5шт.

21

4022701

PIN;LOCK

2шт.

22

4344047

CYL.

1шт.

23

A590108

WASHER;PLANE

2шт.

24

4022697

PIN;LOCK

2шт.

25

J021255

BOLT;SEMS

0

8шт.

25

J271255

BOLT;SEMS

T D03/05 -

8шт.

@333

26

J011240

BOLT;SEMS

-4128

8шт.

26

J281235

BOLT;SEMS

8шт.

26

J281235

BOLT;SEMS

9шт.

26A

J901235

* BOLT

004129 -

1шт.

26B

4249324

* WASHER

004129 -

1шт.

27

4249324

WASHER

-4128

8шт.

28

6020817

COVER

T

1шт.

@444

@555

28

6021724

COVER

T

1шт.

@666

@777

@888

@999

28

6024682

COVER

1шт.

28A

4469655

* GLASSWOOL

2шт.

28B

4471861

* GLASSWOOL

1шт.

28C

4471855

* GLASSWOOL

1шт.

28D

4471843

* GLASSWOOL

1шт.

28E

4156886

* WASHER

22шт.

29

8087281

COVER

1шт.

29A

4469657

* GLASSWOOL

2шт.

29B

4469660

* GLASSWOOL

1шт.

29C

4156886

* WASHER

10шт.

30

6020827

COVER

1шт.

30A

4469755

* RUBBER

2шт.

30B

4469756

* RUBBER

1шт.

30C

4469757

* RUBBER

2шт.

30D

4469758

* RUBBER

2шт.

30E

4469759

* RUBBER

1шт.

30F

4156886

* WASHER

27шт.

36

J011225

BOLT;SEMS

0

4шт.

36

J271225

BOLT;SEMS

T D03/05 -

4шт.

@101010

37

4655180

SUPPORT

1шт.

Выбрано товаров: 57