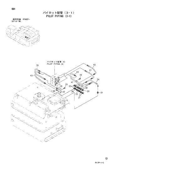
Запчасти Hitachi ZX650H 081 PILOT PIPING (3-1) 01 UPPERSTRUCTURE

Схема запчастей Hitachi ZX650H - 081 PILOT PIPING (3-1) 01 UPPERSTRUCTURE
FIT
1:1
100%

Артикул

Название

Примечание

Количество

01

A852122

ADAPTER;S

1шт.

01A

957366

* O-RING

1шт.

24

4452041

HOSE (A)

1шт.

27

3090109

BLOCK

1шт.

28

A852123

ADAPTER;S

2шт.

28A

957366

* O-RING

1шт.

29

J011060

BOLT;SEMS

0

2шт.

29

J271060

BOLT;SEMS

T D03/05 -

2шт.

@111

31

A852333

ELBOW;S

4шт.

31A

4509180

* O-RING

1шт.

32

A852133

ADAPTER;S

2шт.

32A

4509180

* O-RING

1шт.

33

A852122

ADAPTER;S

6шт.

33A

957366

* O-RING

1шт.

34

A885002

PLUG

2шт.

34A

957366

* O-RING

1шт.

39

4454901

HOSE (SA)

1шт.

40

4455439

HOSE (SB)

1шт.

41

4455440

HOSE (SP)

1шт.

42

4455441

HOSE (SM)

1шт.

43

4455442

HOSE (DF)

1шт.

47

4190253

CLIP

1шт.

49

J011025

BOLT;SEMS

0

1шт.

49

J271025

BOLT;SEMS

T D03/05 -

1шт.

@222

Выбрано товаров: 26