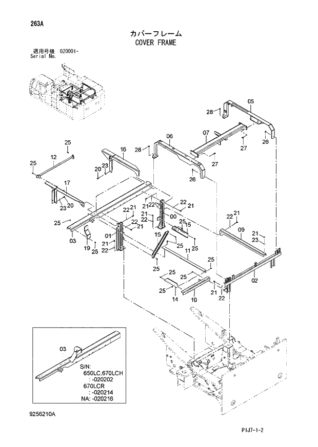
Запчасти Hitachi ZX650LC-3 263 COVER FRAME (020001 -). 01 UPPERSTRUCTURE

Схема запчастей Hitachi ZX650LC-3 - 263 COVER FRAME (020001 -). 01 UPPERSTRUCTURE
FIT
1:1
100%

Артикул

Название

Примечание

Количество

0

8102734

FRAME

1шт.

1

8102735

FRAME

1шт.

2

7049525

BEAM

1шт.

3

7049522

BEAM

T

1шт.

@111

@222

@333

3

7053237

BEAM

1шт.

5

7049099

SUPPORT

1шт.

6

7048995

SUPPORT

1шт.

7

7048820

BEAM

1шт.

9

8102737

BEAM

1шт.

10

8102738

BEAM

1шт.

11

8102739

BEAM

1шт.

12

8105507

BEAM

1шт.

14

4644699

BRACE

1шт.

15

4645303

BRACE

2шт.

16

8102732

SUPPORT

1шт.

17

8102733

SUPPORT

1шт.

19

9765278

BRACKET

1шт.

20

J921445

BOLT

2шт.

21

J921440

BOLT

20шт.

22

J222014

WASHER

18шт.

23

4086894

WASHER

4шт.

25

J271235

BOLT;SEMS

28шт.

25A

J901235

* BOLT

1шт.

25B

J222012

* WASHER

1шт.

26

J281230

BOLT;SEMS

4шт.

26A

J901230

* BOLT

1шт.

26B

4249324

* WASHER

1шт.

27

J281245

BOLT;SEMS

8шт.

27A

J901245

* BOLT

1шт.

27B

4249324

* WASHER

1шт.

28

J281235

BOLT;SEMS

4шт.

28A

J901235

* BOLT

1шт.

28B

4249324

* WASHER

1шт.

Выбрано товаров: 0