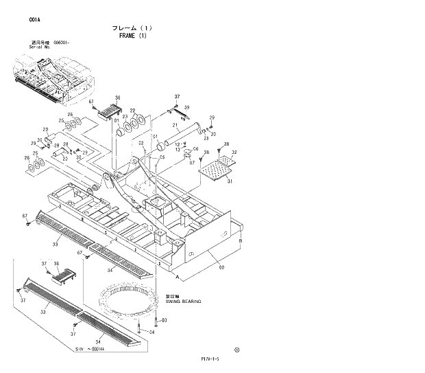
Запчасти Hitachi ZX800 001 FRAME (1) 01 UPPERSTRUCTURE

Схема запчастей Hitachi ZX800 - 001 FRAME (1) 01 UPPERSTRUCTURE
FIT
1:1
100%

Артикул

Название

Примечание

Количество

00

5007552

FRAME;MAIN

1шт.

00A

4449359

* PIPE (L)

1шт.

00B

4449356

* PIPE (R)

1шт.

01

4190010

BUSHING

2шт.

02

4293389

PIN;KNOCK

2шт.

03

J833314

BOLT

36шт.

04

J833319

BOLT

4шт.

05

427154

CORK

10шт.

06

4261282

PLATE

1шт.

07

4261283

PACKING

1шт.

12

J901018

BOLT

I 0

4шт.

12

J901020

BOLT

D03/05 -

4шт.

13

A590910

WASHER;SPRING

4шт.

20

8067792

PIN

2шт.

21

8067790

PIN

1шт.

22

4165444

SHIM 2.3mm

2шт.

23

4191279

SHIM 1.0mm

1шт.

25

4219932

SHIM 1.6mm

4шт.

26

4219933

SHIM 1.0mm

2шт.

28

4122729

PLATE

3шт.

29

J912045

BOLT

6шт.

30

A590920

WASHER;SPRING

6шт.

31

7041015

STEP

1шт.

32

3092870

STEP

1шт.

33

6020843

STEP

T -6144

1шт.

@111

@222

33

6021944

STEP

006145 -

1шт.

34

6017693

STEP

T -6144

1шт.

@333

@444

34

6021931

STEP

006145 -

1шт.

36

7042862

STEP

T -6140

1шт.

@555

36

7044510

STEP

006141 -

1шт.

37

J021225

BOLT;SEMS

-6140

20шт.

37

J021225

BOLT;SEMS

006141 - 006144

16шт.

37

J021225

BOLT;SEMS

006145 - D03/04

4шт.

37

J271225

BOLT;SEMS

T D03/05 -

4шт.

@666

38

J031230

BOLT;SEMS

0

11шт.

38

J281225

BOLT;SEMS

T D03/05 -

11шт.

@777

39

8088866

HANDRAIL

1шт.

67

J031225

BOLT;SEMS

006141 - 006144

4шт.

67

J031225

BOLT;SEMS

006145 - D03/04

16шт.

67

J281225

BOLT;SEMS

T D03/05 -

16шт.

@888

Выбрано товаров: 48