Запчасти Hyundai HB90 SCREEN GROUP

Схема запчастей Hyundai HB90 - SCREEN GROUP
FIT
1:1
100%

Артикул

Название

Примечание

Количество

S037-102556

S037-102556-Bolt-W/Washer

S037-102556

S037-102556-Bolt-W/Washer

S037-102056

S037-102056-Bolt-W/Washer

S037-102056

S037-102056-Bolt-W/Washer

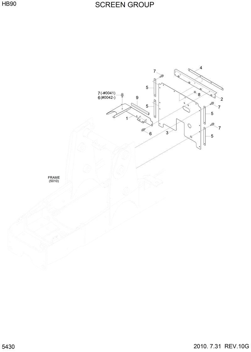
73U2-60021

73U2-60021-Angle-Screen

1

73U2-60010

73U2-60010-Cover Wa-Screen

2

73U2-60020

73U2-60020-Angle-Screen

3

73U2-60031

73U2-60031-Screen-Rubber

4

73U2-60040

73U2-60040-Plate

5

73U2-60050

73U2-60050-Plate

8

S285-10100B

S285-10100B-Nut-Flanged

9

S772-003500

S772-003500-Weather Strip

Выбрано товаров: 12