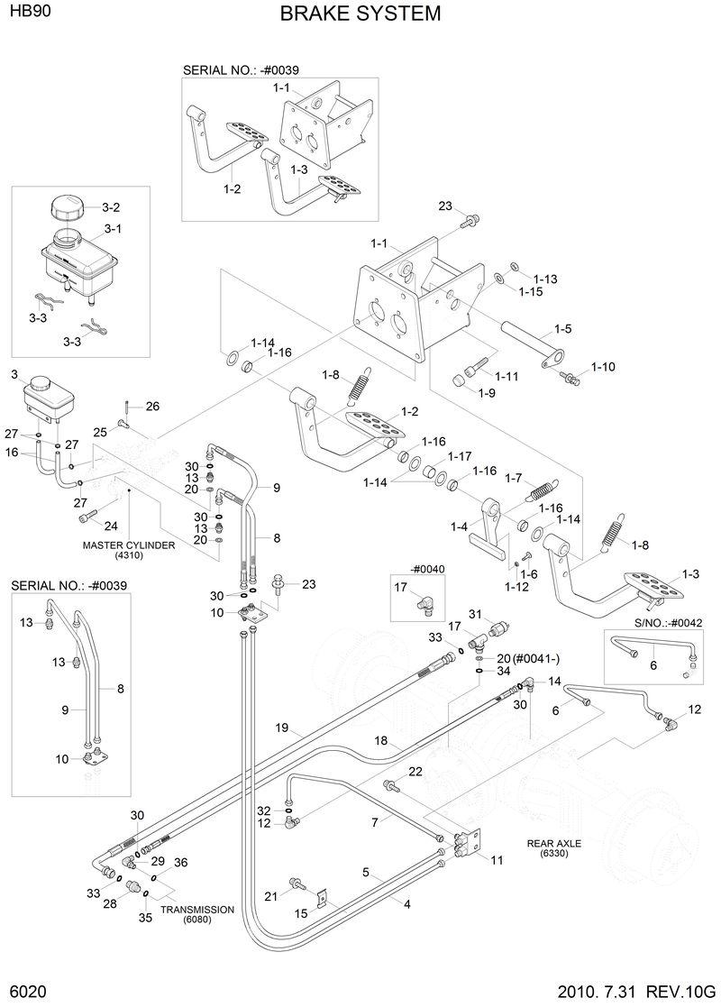
Запчасти Hyundai HB90 BRAKE SYSTEM

Схема запчастей Hyundai HB90 - BRAKE SYSTEM
FIT
1:1
100%

Артикул

Название

Примечание

Количество

81U2-50022

81U2-50022-Brake Pedal Assy

S621-011001

S621-011001-O-Ring

P392-120000

P392-120000-Washer-Copper

81U2-50062

81U2-50062-. Plate Wa

P392-120000

P392-120000-Washer-Copper

81U2-50052

81U2-50052-. Brake Pedal

81U2-50540

81U2-50540-Tee

81U2-50392

81U2-50392-. Brake Pedal

81U2-50460

81U2-50460-Connector-Orfs

S621-011001

S621-011001-O-Ring

81U2-50171

81U2-50171-Connector Assy

P930-043008

P930-043008-Hose Assy-Orfs 0x90

P930-043007

P930-043007-Hose Assy-Orfs 0x90

81U2-50253

81U2-50253-Tube Assy

1

81U2-50021

81U2-50021-Brake Pedal Assy

1-1

81U2-50061

81U2-50061-. Plate Wa

1-10

S035-082026

S035-082026-. Bolt-W/Washer

1-11

S107-080356

S107-080356-. Bolt-Socket

1-12

S205-061006

S205-061006-. Nut-Hex

1-13

S205-081006

S205-081006-. Nut-Hex

1-14

S391-020035

S391-020035-. Shim-Round(1.0t)

1-15

S441-080006

S441-080006-. Washer-Hardened

1-16

S731-020010

S731-020010-. Bushing-Du

1-17

S731-020020

S731-020020-. Bushing-Du

1-2

81U2-50051

81U2-50051-. Brake Pedal

1-3

81U2-50391

81U2-50391-. Brake Pedal

1-4

81U2-50041

81U2-50041-. Link Wa

1-5

81U2-50080

81U2-50080-. Pin Wa

1-6

81U2-50100

81U2-50100-. Stopper

1-7

81U2-50111

81U2-50111-. Spring

1-8

81U2-50091

81U2-50091-. Spring

1-9

CAP-RUBBER

CAP-RUBBER-. Cap-Rubber

10

81U2-50170

81U2-50170-Connector Assy

11

81U2-50210

81U2-50210-Connector Wa

12

81U2-50121

81U2-50121-Elbow-90

13

81U2-50420

81U2-50420-Connector

14

81U2-50160

81U2-50160-Elbow-90,Orfs

15

81U2-50270

81U2-50270-Clamp

16

81U3-50200

81U3-50200-Hose

17

31LB-40360

31LB-40360-Elbow-90

18

P910-042021

P910-042021-Hose Assy-Orfs 0x0

19

P930-082016

P930-082016-Hose Assy-Orfs 0x90

21

S035-082556

S035-082556-Bolt-W/Washer

22

S037-101556

S037-101556-Bolt-W/Washer

23

S037-102556

S037-102556-Bolt-W/Washer

24

S107-080256

S107-080256-Bolt-Socket

25

S491-100302

S491-100302-Pin-Clevis

26

S501-100002

S501-100002-Pin-Self Locking

27

S571-160002

S571-160002-Clamp-Hose,Wire Type

28

X500-310003

X500-310003-Connector-Orfs

29

X520-310001

X520-310001-Elbow-90,Orfs

3

81U2-50300

81U2-50300-Reservoir Tank Assy

3-1

ZTAK-00002

ZTAK-00002-. Tank

3-2

ZTAK-00001

ZTAK-00001-. Cap

3-3

ZTAK-00003

ZTAK-00003-. Clip

31

81U2-50550

81U2-50550-Switch-Pressure

32

S611-009001

S611-009001-O-Ring

33

S621-014001

S621-014001-O-Ring

34

S611-019001

S611-019001-O-Ring

35

S611-016001

S611-016001-O-Ring

36

S611-012001

S611-012001-O-Ring

4

81U2-50141

81U2-50141-Tube Assy

5

81U2-50241

81U2-50241-Tube Assy

6

81U2-50252

81U2-50252-Tube Assy

7

81U2-50262

81U2-50262-Tube Assy

8

81U2-50281

81U2-50281-Tube Assy

9

81U2-50291

81U2-50291-Tube Assy

Выбрано товаров: 67