Запчасти Hyundai R27Z-9 PAGE 7400 BUCKET CONTROL GROUP РАБОЧЕЕ ОБОРУДОВАНИЕ

Схема запчастей Hyundai R27Z-9 - PAGE 7400 BUCKET CONTROL GROUP РАБОЧЕЕ ОБОРУДОВАНИЕ
FIT
1:1
100%

Артикул

Название

Примечание

Количество

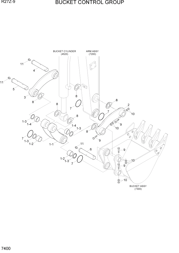
1

61MK-40012

CONTROL ROD ASSY

1шт.

1-1

61MK-40102

CONTROL ROD WA

1шт.

1-2

61MK-15500

BUSHING

2шт.

1-3

Y020-035011

SEAL-DUST,DLI,KPU

1шт.

1-4

61MK-15600

BUSHING

2шт.

2

61MK-40021

CONTROL LINK WA

1шт.

3

61MK-40031

CONTROL LINK WA

1шт.

4

61MK-01500

PIN

1шт.

5

61MK-01510

PIN

1шт.

6

61MK-01521

PIN

2шт.

7

61MK-30500

O-RING

4шт.

8

61MJ-08300

SHIM(1.0T)

9шт.

9

S017-100756

BOLT-HEX

4шт.

10

S207-101002

NUT-HEX

8шт.

11

S651-810002

NIPPLE-GREASE

4шт.

Выбрано товаров: 15