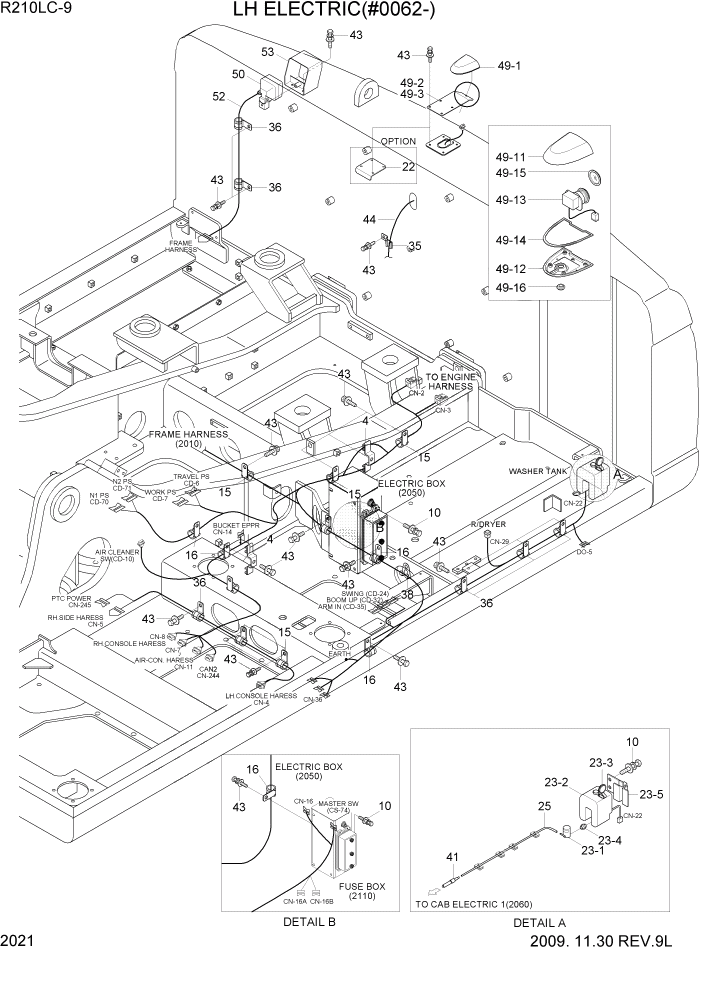
Запчасти Hyundai R210LC9 PAGE 2021 LH ELECTRIC(#0062-) ЭЛЕКТРИЧЕСКАЯ СИСТЕМА

Схема запчастей Hyundai R210LC9 - PAGE 2021 LH ELECTRIC(#0062-) ЭЛЕКТРИЧЕСКАЯ СИСТЕМА
FIT
1:1
100%

Артикул

Название

Примечание

Количество

*

@

LH-ELECTRIC

NOT #0062

1шт.

*

@

LH-ELECTRIC

NOT #0062

1шт.

4

21N4-01130

PLATE-CLIP

2шт.

10

S035-062026

BOLT-W/WASHER

6шт.

15

31L7-10200

CLAMP-TUBE

6шт.

16

31L7-10230

CLAMP

11шт.

22

21Q6-60030

PLATE

OPTION

1шт.

23

21EG-30630

WASHER TANK ASSY

1шт.

23-1

21EG-10130

PUMP-MOTOR

1шт.

23-2

21EG-10140

TANK

1шт.

23-3

24L3-30660

CAP

1шт.

23-4

24L3-30670

RUBBER-BUSHING

1шт.

23-5

24L3-30710

PLATE

1шт.

25

21EM-30581

HOSE-RUBBER

1шт.

35

25D1-10640

CLIP ASSY

1шт.

36

31L7-10190

CLAMP-TUBE

8шт.

38

21E9-00170

CLIP-HARNESS

8шт.

41

21EM-30570

CONNECTOR-TUBE

1шт.

43

S037-101526

BOLT-W/WASHER

9шт.

44

21Q6-11141

HARNESS-CAMERA

STD #0093

1шт.

44

21Q6-11142

HARNESS-CAMERA

STD #0094

1шт.

49

21Q6-60100

REAR VIEW CAMERA KIT

STD

1шт.

49-1

21AB-30031

CAMERA ASSY-REAR

STD

1шт.

49-11

21AB-40100

DOME-HOUSING

STD

1шт.

49-12

21AB-40200

BASE-HOUSING

STD

1шт.

49-13

21AB-40300

CAMERA & PCB ASSY

STD

1шт.

49-14

21AB-40400

SEAL

STD

1шт.

49-15

21AB-40500

WINDOW

STD

1шт.

49-16

21AB-40600

GROMMET

STD

1шт.

49-2

21AB-50010

BRACKET CAMERA

STD #0093

1шт.

49-2

21AB-50011

BRACKET-CAMERA

STD #0094

1шт.

49-3

S141-050102

SCREW-FLAT HD

NOT SHOWN

2шт.

50

21QB-60700

WORK LAMP ASSY

OPTION #0120

1шт.

52

21Q8-11140

HARNESS-EXTENSION

OPTION #0120

1шт.

53

21Q4-47020

GUARD-BACK LIGHT

OPTION #0120

1шт.

Выбрано товаров: 35