Качественные детали и логистика
Оригинальные и аналоговые запчасти с доставкой по России, Казахстану и Беларуси
©2022 PartSell ООО "Система" ИНН 2463123282 ОГРН 1212400004838
Центральный офис: г. Красноярск, Академика Киренского, д.87, пом.4
Телефон: 8 (800) 777-65-74 Email: zakaz@partsell.ru
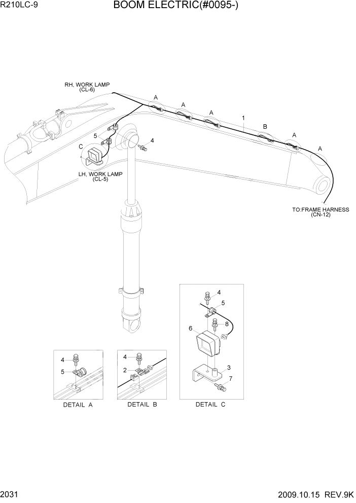
PAGE 2031 BOOM ELECTRIC(#0095-)
№
Артикул
Название
Примечание
Количество
1
21Q6-10040
HARNESS-BOOM WIRE
1шт.
2
25D1-10640
CLIP ASSY
3
21QB-20240
BRACKET-LIGHT
2шт.
4
S037-101526
BOLT-W/WASHER
9шт.
5
31L7-10350
CLAMP
11шт.
6
21QB-60700
WORK LAMP ASSY
6-1
S866-240650
BULB
NOT SHOWN
7
S037-122526
8
S037-102026
Выбрано товаров: 0