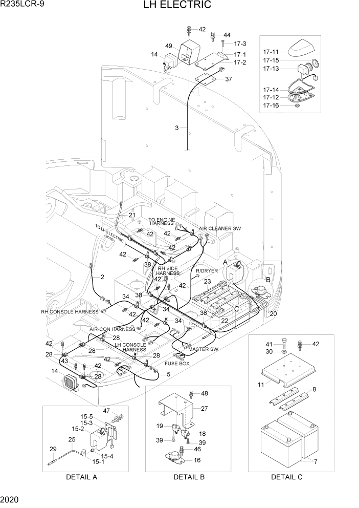
Запчасти Hyundai R235LCR9 PAGE 2020 LH ELECTRIC ЭЛЕКТРИЧЕСКАЯ СИСТЕМА

Схема запчастей Hyundai R235LCR9 - PAGE 2020 LH ELECTRIC ЭЛЕКТРИЧЕСКАЯ СИСТЕМА
FIT
1:1
100%

Артикул

Название

Примечание

Количество

2

21Q6-52200

HARNESS-BREAKER

1шт.

3

21Q6-20010

HARNESS-CAMERA

1шт.

5

21Q8-11110

HARNESS-TWO WAY

1шт.

7

21E6-20270

BATTERY

2шт.

8

21Q4-60400

BAR-BATTERY

2шт.

11

21Q6-60301

COVER ASSY-BATTERY

1шт.

14

21QB-60700

WORK LAMP ASSY

2шт.

14-1

S866-240650

BULB

NOT SHOWN

1шт.

15

21EG-30630

WASHER TANK ASSY

1шт.

15-1

21EG-10130

PUMP-MOTOR

1шт.

15-2

21EG-10140

TANK

1шт.

15-3

24L3-30660

CAP

1шт.

15-4

24L3-30670

RUBBER-BUSHING

1шт.

15-5

24L3-30710

PLATE

1шт.

16

21E5-0003

RELAY-BATTERY

1шт.

17

21Q6-60400

REAR VIEW CAMERA KIT

1шт.

17-1

21AB-30031

CAMERA ASSY-REAR

1шт.

17-11

21AB-40100

DOME-HOUSING

2шт.

17-12

21AB-40200

BASE-HOUSING

2шт.

17-13

21AB-40300

CAMERA & PCB ASSY

2шт.

17-14

21AB-40400

SEAL

2шт.

17-15

21AB-40500

WINDOW

2шт.

17-16

21AB-40600

GROMMET

2шт.

17-2

21AB-50040

BRACKET WA

1шт.

17-3

S141-050102

SCREW-FLAT HD

2шт.

18

21M9-01171

CIRCUIT-BREAKER,60A

1шт.

19

21Q4-01161

CIRCUIT-BREAKER,30A

1шт.

20

21Q6-20520

CABLE(BATT-BATT RY)

1шт.

21

21E2-60031

CABLE(BATT RY-STARTER)

1шт.

22

21EC-40320

CABLE(BATT-EARTH)

1шт.

23

21Q6-01400

CABLE(BATT-BATT)

1шт.

25

21EM-30581

HOSE-RUBBER

1шт.

27

21Q6-14400

COVER-BATT RELAY

1шт.

28

S593-000902

CLIP-HARNESS

8шт.

29

21EM-30570

CONNECTOR-TUBE

1шт.

30

S403-10500B

WASHER-PLAIN

2шт.

34

S593-001302

CLIP-HARNESS

12шт.

35

21N4-01130

PLATE-CLIP

3шт.

37

21Q6-60500

PLATE

1шт.

38

31L7-10220

CLAMP-TUBE

3шт.

39

S141-040206

SCREW-FLAT HD

4шт.

41

S017-102406

BOLT-HEX

2шт.

42

S037-102026

BOLT-W/WASHER

33шт.

43

S037-102526

BOLT-W/WASHER

1шт.

44

S037-103026

BOLT-W/WASHER

4шт.

46

S035-083026

BOLT-W/WASHER

2шт.

47

S035-062026

BOLT-W/WASHER

6шт.

48

S035-082026

BOLT-W/WASHER

2шт.

49

21Q4-47020

GUARD-BACK LIGHT

1шт.

Выбрано товаров: 49