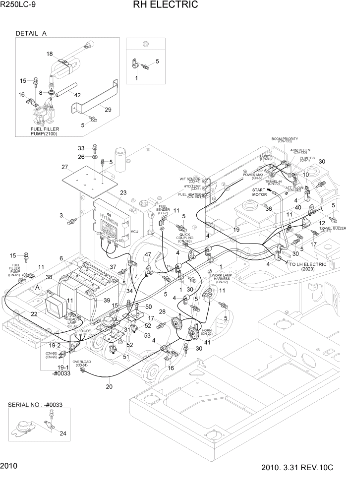
Запчасти Hyundai R250LC9 PAGE 2010 RH ELECTRIC ЭЛЕКТРИЧЕСКАЯ СИСТЕМА

Схема запчастей Hyundai R250LC9 - PAGE 2010 RH ELECTRIC ЭЛЕКТРИЧЕСКАЯ СИСТЕМА
FIT
1:1
100%

Артикул

Название

Примечание

Количество

1

31L7-10200

CLAMP-TUBE

12шт.

3

S035-082526

BOLT-W/WASHER

4шт.

4

31L7-10190

CLAMP-TUBE

10шт.

5

S037-101526

BOLT-W/WASHER

35шт.

6

21Q4-60400

BAR-BATTERY

2шт.

7

31L7-10230

CLAMP

1шт.

8

S520-035000

CLAMP-HOSE

1шт.

10

21N4-01130

PLATE-CLIP

2шт.

11

25D1-10640

CLIP ASSY

5шт.

12

21N4-46800

BUZZER-BACK

1шт.

15

S035-083026

BOLT-W/WASHER

4шт.

16

25D1-10650

CLIP ASSY

2шт.

17

S035-081526

BOLT-W/WASHER

4шт.

18

E127-3158

BAND-FUEL PUMP

1шт.

19

21Q7-10105

HARNESS-FRAME

#0007

1шт.

19

21Q7-10106

HARNESS-FRAME

#0008 - #0020

1шт.

19

21Q7-10107

HARNESS-FRAME

#0021 - #0033

1шт.

19

21Q7-10108

HARNESS-FRAME

#0034

1шт.

19-1

21N4-01310

LINK-FUSIBLE(30A)

#0033

1шт.

19-2

21N4-01320

LINK-FUSIBLE(60A)

#0033

1шт.

20

21Q6-11150

HARNESS-OVERLOAD

1шт.

22

21N6-20211

WORK LAMP ASSY

#0007

1шт.

22

21QB-60700

WORK LAMP ASSY

#0008

1шт.

22

S866-240650

BULB

NOT SHOWN

1шт.

23

21Q7-32101

MCU(MACHINE CNTL UNIT)

#0036

2шт.

23

21Q7-32103

MCU(MACHINE CNTL UNIT)

#0037

2шт.

24

21E7-0612

PLATE-CONNECTOR

#0033

2шт.

26

S403-10500B

WASHER-PLAIN

2шт.

27

21Q6-60300

COVER ASSY-BATTERY

#0006

1шт.

27

21Q6-60301

COVER ASSY-BATTERY

#0007

1шт.

28

21Q8-10050

HORN-LOW

1шт.

29

21QB-20080

PLATE-CLAMP

1шт.

30

S037-102026

BOLT-W/WASHER

4шт.

31

21E5-0003

RELAY-BATTERY

1шт.

33

S017-102656

BOLT-HEX

2шт.

34

21E6-20270

BATTERY

2шт.

36

21N6-21200

CABLE(BATT RY-STARTER)

1шт.

37

21N4-01400

CABLE(BATT-BATT)

1шт.

38

21EC-40320

CABLE(BATT-EARTH)

1шт.

39

21E2-60220

CABLE(BATT-BATT RY)

1шт.

40

21E2-60220

CABLE(BATT-BATT RY)

1шт.

41

21Q8-10060

HORN-HIGH

1шт.

42

21Q6-21610

HOSE-OUTLET

1шт.

47

31L7-10350

CLAMP

2шт.

50

S141-040206

SCREW-FLAT HD

#0034

4шт.

51

21Q4-01160

CIRCUIT-BREAKER-30A

#0034

1шт.

52

21Q8-22300

PLATE-CIRCUIT BREAKER

#0034

2шт.

53

21M9-01170

CIRCUIT-BREAKER-60A

#0034

1шт.

47

31L7-10350

CLAMP

2шт.

Выбрано товаров: 49