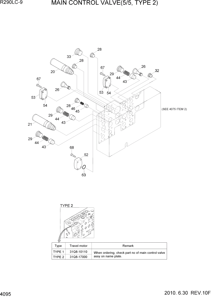
Запчасти Hyundai R290LC9 PAGE 4095 MAIN CONTROL VALVE(5/5, TYPE 2) ГИДРАВЛИЧЕСКИЕ КОМПОНЕНТЫ

Схема запчастей Hyundai R290LC9 - PAGE 4095 MAIN CONTROL VALVE(5/5, TYPE 2) ГИДРАВЛИЧЕСКИЕ КОМПОНЕНТЫ
FIT
1:1
100%

Артикул

Название

Примечание

Количество

*

@

MAIN CONTROL VALVE

NOT #0500

1шт.

20

31Q8-17860

LOGIC VALVE-SWING

1шт.

21

31Q8-17880

LOGIC VALVE-OPTION

1шт.

26

31N8-17450

PLUG-PARALLEL BLOCK

3шт.

28

31N8-17520

PLUG-LOAD CHECK

3шт.

29

31N8-17510

PLUG-LOAD CHECK

3шт.

32

31N8-17500

PLUG

1шт.

33

31N8-17540

PLUG KIT

1шт.

43

31N8-18190

POPPET 1-L/C

4шт.

44

31N8-18200

SPRING 1-L/C

4шт.

45

31N8-18220

POPPET 2-L/C

1шт.

46

31N8-18230

SPRING 2-L/C

1шт.

52

31N8-18970

FLANGE-PORT PLUG

2шт.

53

31N8-18980

COVER 1

7шт.

54

31N8-18990

GASKET 1

7шт.

63

31N8-19640

O-RING

2шт.

67

S017-100156

BOLT-HEX

24шт.

68

S107-100354

BOLT-SOCKET

8шт.

Выбрано товаров: 18