Запчасти Hyundai R320LC9 PAGE 3100 UPPER HYDRAULIC PIPING(BASE) ГИДРАВЛИЧЕСКАЯ СИСТЕМА

Схема запчастей Hyundai R320LC9 - PAGE 3100 UPPER HYDRAULIC PIPING(BASE) ГИДРАВЛИЧЕСКАЯ СИСТЕМА
FIT
1:1
100%

Артикул

Название

Примечание

Количество

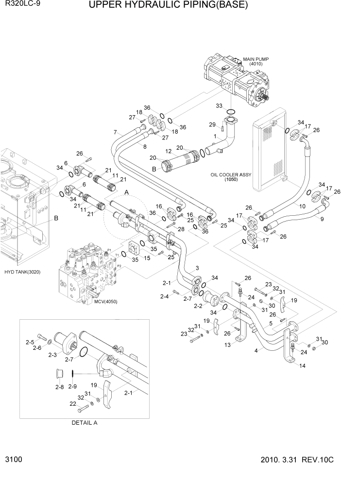
1

31Q9-11021

PIPE ASSY

1шт.

2

31Q9-11032

PIPE SUB ASSY-RETURN

1шт.

2-1

31Q9-11042

PIPE ASSY

1шт.

2-2

31Q6-11110

CHECK VALVE-RETURN

1.5 BAR

1шт.

2-3

31ER-11121

CHECK VALVE

3.0 BAR

1шт.

2-4

S109-120406

BOLT-SOCKET

4шт.

2-5

S109-120506

BOLT-SOCKET

2шт.

2-6

S403-122006

WASHER-PLAIN

2шт.

2-7

Y172-003004

O-RING

2шт.

2-8

X710-100106

CAP-HYD,ORFS

1шт.

2-9

S621-021001

O-RING

1шт.

3

31Q9-11052

PIPE ASSY

1шт.

4

31Q9-11410

PIPE WA-RETURN

1шт.

5

31Q9-11420

PIPE WA-RETURN

1шт.

6

31Q6-11021

PIPE WA

2шт.

7

31Q9-11120

HOSE ASSY-FLG(0X90),SXH

1шт.

8

31Q9-11130

HOSE ASSY-FLG(0X90),SXH

1шт.

9

31Q9-11430

HOSE ASSY-FLG

1шт.

10

31Q9-11440

HOSE ASSY-FLG

#0007

1шт.

10

31Q9-11441

HOSE ASSY-FLG

#0008

1шт.

11

31N8-13090

HOSE-RUBBER

2шт.

12

P760-102040

HOSE-RUBBER

1шт.

13

31Q9-11450

BRACKET

1шт.

14

31QB-11150

BRACKET

1шт.

15

31Q6-11030

FLANGE

1шт.

16

P173-160104

FLANGE-HYD,SPLIT

4шт.

17

P173-240107

FLANGE-HYD,SPLIT

8шт.

18

P174-160115

FLANGE-HYD,SPLIT

4шт.

19

31Q6-11140

CLAMP-PIPE

4шт.

20

31N6-11190

CLAMP-HOSE,WIRE TYPE

4шт.

21

S572-640006

CLAMP-HOSE,WIRE TYPE

8шт.

22

S017-120606

BOLT-HEX

2шт.

23

S017-121006

BOLT-HEX

2шт.

24

S037-123526

BOLT-W/WASHER

4шт.

25

S109-100306

BOLT-SOCKET

8шт.

26

S109-120306

BOLT-SOCKET

36шт.

27

S109-120406

BOLT-SOCKET

8шт.

28

S109-120706

BOLT-SOCKET

4шт.

29

S109-16040D

BOLT-SOCKET

4шт.

30

S205-12100B

NUT-HEX

2шт.

31

S403-12200B

WASHER-PLAIN

6шт.

32

S411-120006

WASHER-SPRING

4шт.

33

S631-085001

O-RING

1шт.

34

Y172-003004

O-RING

8шт.

35

Y172-006004

O-RING

2шт.

36

Y171-024004

O-RING

4шт.

Выбрано товаров: 46