Запчасти Hyundai R320LC9 PAGE 3210 PILOT HYDRAULIC PIPING(CONTROL 2) ГИДРАВЛИЧЕСКАЯ СИСТЕМА

Схема запчастей Hyundai R320LC9 - PAGE 3210 PILOT HYDRAULIC PIPING(CONTROL 2) ГИДРАВЛИЧЕСКАЯ СИСТЕМА
FIT
1:1
100%

Артикул

Название

Примечание

Количество

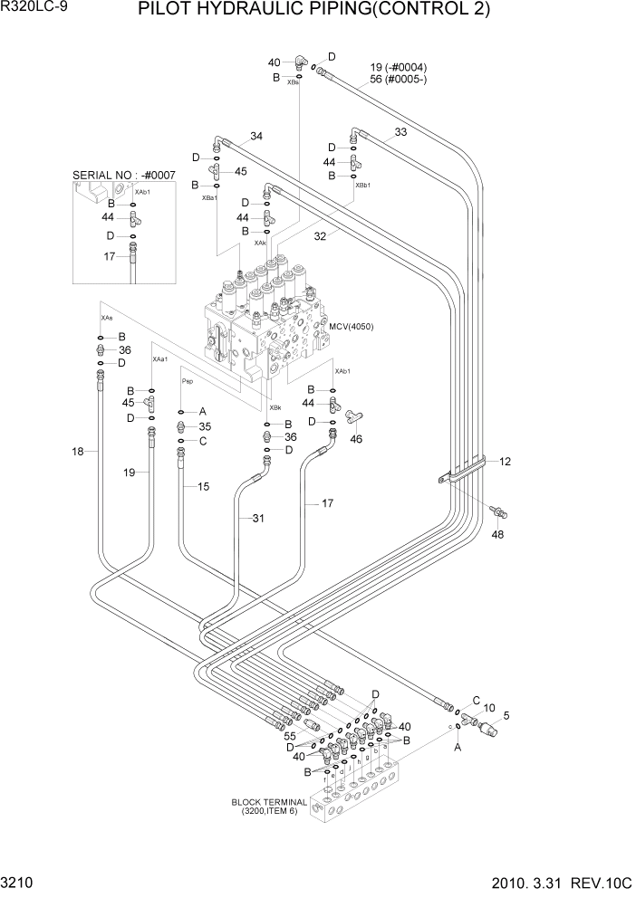
5

31Q8-40520

SENSOR-PRESSURE

SWING

1шт.

10

31NA-22310

TEE-BRANCH TYPE

1шт.

12

31L7-10270

CLAMP-TUBE

1шт.

15

X400-042034

HOSE ASSY-SYNFLEX,ORFS

#0004

1шт.

15

X400-042032

HOSE ASSY-SYNFLEX,ORFS

#0005

1шт.

17

X400-062033

HOSE ASSY-SYNFLEX,ORFS

#0004

1шт.

17

X400-062031

HOSE ASSY-SYNFLEX,ORFS

#0005 - #0007

1шт.

17

X420-062031

HOSE ASSY-ORFS 0X90

#0008

1шт.

18

X400-062034

HOSE ASSY-SYNFLEX,ORFS

#0004

1шт.

18

X400-062032

HOSE ASSY-SYNFLEX,ORFS

#0005

1шт.

19

X400-062036

HOSE ASSY-SYNFLEX,ORFS

#0004

2шт.

19

X400-062036

HOSE ASSY-SYNFLEX,ORFS

#0005

1шт.

31

X420-062033

HOSE ASSY-ORFS 0X90

1шт.

32

X420-062036

HOSE ASSY-ORFS 0X90

1шт.

33

X420-062037

HOSE ASSY-ORFS 0X90

1шт.

34

X420-062040

HOSE ASSY-ORFS 0X90

1шт.

35

X500-110001

CONNECTOR-ORFS

1шт.

36

X500-110002

CONNECTOR-ORFS

2шт.

40

X520-110002

ELBOW-90,ORFS

9шт.

44

X820-065152

TEE-R/TYPE,ORFS

3шт.

45

X820-065252

TEE-R/TYPE,ORFS

2шт.

46

X840-525251

TEE-R/TYPE,SWIVEL,ORFS

1шт.

48

S037-102026

BOLT-W/WASHER

1шт.

55

31ND-22700

VALVE-SHOCKLESS

1шт.

56

X400-062033

HOSE ASSY-SYNFLEX,ORFS

#0005

1шт.

A

S631-011004

O-RING

2шт.

B

S631-014004

O-RING

16шт.

C

S621-011001

O-RING

2шт.

D

S621-012001

O-RING

16шт.

Выбрано товаров: 29