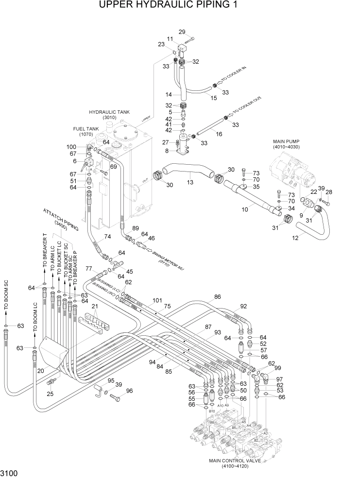
Запчасти Hyundai R35Z-7A PAGE 3100 UPPER HYDRAULIC PIPING 1 ГИДРАВЛИЧЕСКАЯ СИСТЕМА

Схема запчастей Hyundai R35Z-7A - PAGE 3100 UPPER HYDRAULIC PIPING 1 ГИДРАВЛИЧЕСКАЯ СИСТЕМА
FIT
1:1
100%

Артикул

Название

Примечание

Количество

5

31M5-52121

VALVE-CHECK

1шт.

6

31MH-10160

VALVE-3 WAY

1шт.

8

31MH-10181

RETURN BLOCK

1шт.

9

31MH-10190

PIPE ASSY

1шт.

10

31MH-10200

PIPE-SUCTION

1шт.

11

31MH-10212

PIPE-RETURN

1шт.

12

31MH-10220

HOSE-SUCTION

1шт.

13

31MH-10231

HOSE-SUCTION

1шт.

14

P760-052037

HOSE-RUBBER

1шт.

15

31MH-10241

HOSE-RUBBER

1шт.

16

31MH-10270

HOSE-RUBBER

1шт.

20

31MH-10281

COVER-SWING POST

1шт.

21

31MH-10670

CLAMP-RUBBER

STD

1шт.

21

31MH-10292

CLAMP-RUBBER

OPT-Q/CLAMP

1шт.

22

S631-045001

O-RING

1шт.

23

S632-035001

O-RING

1шт.

25

S037-102526

BOLT-W/WASHER

2шт.

27

S037-102026

BOLT-W/WASHER

2шт.

28

S109-120356

BOLT-SOCKET

4шт.

29

S109-100506

BOLT-SOCKET

4шт.

30

S572-630006

CLAMP-HOSE,WIRE TYPE

4шт.

31

S572-570006

CLAMP-HOSE,WIRE TYPE

4шт.

32

S572-460006

CLAMP-HOSE,WIRE TYPE

4шт.

33

S572-250006

CLAMP-HOSE,WIRE TYPE

8шт.

34

31MH-10500

CLAMP-1 HOLE

1шт.

35

31MH-10510

CLAMP-1 HOLE

1шт.

39

S411-120006

WASHER-SPRING

6шт.

41

P000-110016

CONNECTOR

1шт.

42

S631-029004

O-RING

2шт.

45

31MH-10320

TEE-BULKHEAD

1шт.

46

31MH-10330

CONNECTOR-BULKHEAD

1шт.

50

X500-110002

CONNECTOR-ORFS

3шт.

51

X500-110003

CONNECTOR-ORFS

1шт.

52

31MH-10710

CONNECTOR

1шт.

53

X500-110013

CONNECTOR-ORFS

1шт.

56

31N8-40150

CONNECTOR-LONG,ORFS

1шт.

57

X511-106534

CONNECTOR-LONG,ORFS

1шт.

62

S621-011001

O-RING

5шт.

63

S621-012001

O-RING(SEAL LOCK TYPE)

10шт.

64

S621-014001

O-RING(SEAL LOCK TYPE)

10шт.

66

S631-014004

O-RING

10шт.

67

S631-018004

O-RING

2шт.

69

S035-062026

BOLT-W/WASHER

2шт.

70

S403-12200B

WASHER-PLAIN

2шт.

73

S017-120706

BOLT-HEX

2шт.

74

31MH-10440

HOSE ASSY-ORFS 0X45

1шт.

75

P910-045031

HOSE ASSY-ORFS 0X0

1шт.

77

P910-085029

HOSE ASSY-ORFS 0X0

1шт.

84

P930-065053

HOSE ASSY-ORFS 0X90

1шт.

85

P930-065055

HOSE ASSY-ORFS 0X90

1шт.

86

P930-085060

HOSE ASSY-ORFS 0X90

1шт.

87

P930-065058

HOSE ASSY-ORFS 0X90

1шт.

89

P930-082014

HOSE ASSY-ORFS 0X90

1шт.

92

P930-085056

HOSE ASSY-ORFS 0X90

1шт.

93

31MH-10470

HOSE ASSY-ORFS 0X90

1шт.

94

31MH-10480

HOSE ASSY-ORFS 0X90

1шт.

95

31MH-10520

GUIDE-HOSE

2шт.

96

S017-120606

BOLT-HEX

2шт.

97

X850-515100

ELBOW-90,SWIVEL,ORFS

1шт.

99

X520-110012

ELBOW-90,ORFS

1шт.

100

X520-110003

ELBOW-90,ORFS

1шт.

101

P920-045036

HOSE ASSY-ORFS 0X45

1шт.

Выбрано товаров: 62